Цена
110 000 $
Комиссия риелтора: коммисия риелтора не указана
Телефоны:
- +38 (096) 568‑42‑73
Отправитель:
Елена
Будинок для сімї у лісовій частині Бучі
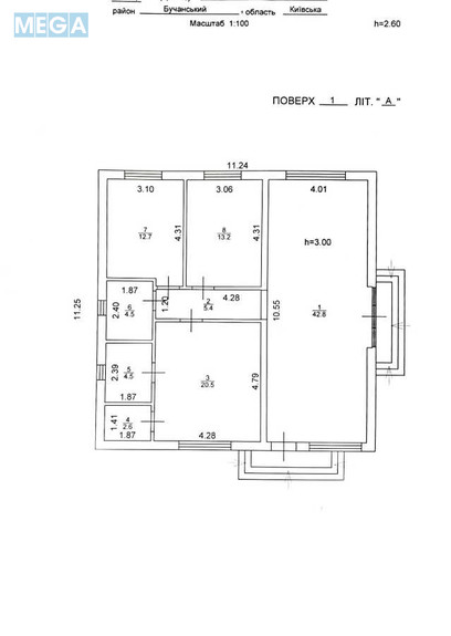
Площа будинку 103 кв.м. Планування передбачає 3 спальні, серед яких майстер-спальня з власним гардеробом і ванною кімнатою. Простора кухня-вітальня з трьома великими вікнами та боковим виходом у двір на терасу. Окремий санвузол та зручний коридор до спальної зони.
Будинок побудований з керамотерму, утеплений пінопластом, фасад декорований поліфасадом. Дах з металочерепиці, утеплений мінеральною ватою.
Комунікації: вода свердловина, каналізація септик, газ встановлений двоконтурний котел у вартості, електрика.
Ділянка 3,5 сотки, огороджена парканом. Встановлені розпашні ворота та хвіртка. Доріжки та відмостка викладені плиткою. Будинок розташований у глибині від дороги, завдяки чому у дворі просторо та приватно. Є місце для зони відпочинку, газону, саду або басейну.
Адреса: м. Буча, вул. Михайловського. Гарні сусіди, поруч школа, приватний дитячий садок, ресторан, сфера послуг. Зручний виїзд на Варшавську трасу.
Площа будинку 103 кв.м. Планування передбачає 3 спальні, серед яких майстер-спальня з власним гардеробом і ванною кімнатою. Простора кухня-вітальня з трьома великими вікнами та боковим виходом у двір на терасу. Окремий санвузол та зручний коридор до спальної зони.
Будинок побудований з керамотерму, утеплений пінопластом, фасад декорований поліфасадом. Дах з металочерепиці, утеплений мінеральною ватою.
Комунікації: вода свердловина, каналізація септик, газ встановлений двоконтурний котел у вартості, електрика.
Ділянка 3,5 сотки, огороджена парканом. Встановлені розпашні ворота та хвіртка. Доріжки та відмостка викладені плиткою. Будинок розташований у глибині від дороги, завдяки чому у дворі просторо та приватно. Є місце для зони відпочинку, газону, саду або басейну.
Адреса: м. Буча, вул. Михайловського. Гарні сусіди, поруч школа, приватний дитячий садок, ресторан, сфера послуг. Зручний виїзд на Варшавську трасу.
| Поверхів | 1 |
| Кімнат | 4 |
| Площа будинку | 103 кв.м |
| Площа ділянки | 3 сотки |
| Матеріал будинку | кирпич |






