Цена
115 000 $
Комиссия риелтора: коммисия риелтора не указана
Телефоны:
- +38 (096) 568‑42‑73
Отправитель:
Елена
Дуплекс у центрі Бучі Побудований! Монолітний дах 4 спальні 2,6 сотки
Адреса: вул. Іннели Огнєвої, 12
Ціна: 115 000 $
Без комісії Мінімальне оформлення Пряма пропозиція від забудовника
Чому цей будинок вигідна покупка?
Побудований повністю без ризиків і очікування.
Заходьте на ремонт одразу після купівлі.
Надійна конструкція:
монолітний фундамент
бетонні плити перекриття між поверхами
бетонні плити в перекритті даху (рідкість для дуплексів)
фасад утеплений мінватою
Власна ділянка 2,6 сотки приватність як у котеджі.
Місце під авто, зони відпочинку, озеленення, тераса.
4 окремі спальні комфорт для великої сім’ї.
Спальня на першому поверсі + 3 на другому.
Великий санвузол на другому поверсі (5,8 кв.м) + санвузол на першому.
Центральні комунікації: вода, каналізація, електрика.
Газове опалення економія на рахунках.
Житлові тарифи.
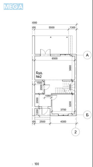
Характеристики:
Площа 126,45 кв.м
Кухня-вітальня 25,22 кв.м
Тераса 17 кв.м
Паркан по периметру, відкатні ворота, тротуарна плитка, парковка
Останній в продажу з 8! Центр міста + готовий будинок = найвигідніша покупка в Бучі зараз.
Адреса: вул. Іннели Огнєвої, 12
Ціна: 115 000 $
Без комісії Мінімальне оформлення Пряма пропозиція від забудовника
Чому цей будинок вигідна покупка?
Побудований повністю без ризиків і очікування.
Заходьте на ремонт одразу після купівлі.
Надійна конструкція:
монолітний фундамент
бетонні плити перекриття між поверхами
бетонні плити в перекритті даху (рідкість для дуплексів)
фасад утеплений мінватою
Власна ділянка 2,6 сотки приватність як у котеджі.
Місце під авто, зони відпочинку, озеленення, тераса.
4 окремі спальні комфорт для великої сім’ї.
Спальня на першому поверсі + 3 на другому.
Великий санвузол на другому поверсі (5,8 кв.м) + санвузол на першому.
Центральні комунікації: вода, каналізація, електрика.
Газове опалення економія на рахунках.
Житлові тарифи.
Характеристики:
Площа 126,45 кв.м
Кухня-вітальня 25,22 кв.м
Тераса 17 кв.м
Паркан по периметру, відкатні ворота, тротуарна плитка, парковка
Останній в продажу з 8! Центр міста + готовий будинок = найвигідніша покупка в Бучі зараз.
| Поверхів | 2 |
| Кімнат | 5 |
| Площа будинку | 127 кв.м |
| Площа ділянки | 2 сотки |
| Матеріал будинку | монолитно-блочный |




