Объявление №4058108

Добавлено 16.04.2024
www.megamakler.com.ua
Продаж комерційної нерухомості, 181,50 кв.м, под офис
Харків, Основ'янський (Червонозаводський) р-н, Університетська вул., 35/2
Цена продажи 133 000 $
Комиссия риелтора: коммисия риелтора не указана
Телефоны:
  • +38 (067) 372‑41‑18
  • +38 (067) 214‑69‑17
  • +38 (067) 372‑41‑18
  • +38 (050) 379‑52‑57
Отправитель: Олена
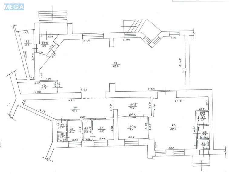
продаж нежитлового приміщення: м.Харків, вул.Університетська, 35/2.

Приміщення розташоване в 9-поверховому житлового будинку, на перетині вул.Університетська та вул.Кооперативна.
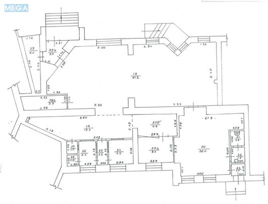
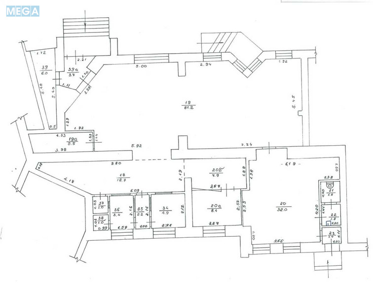
Загальна площа 181,5 кв.м. (1-й поверх).

Приміщення має два виходи: фасадний (на вул.Кооперативна) та запасний (у двір житлового будинку).
Вікна виходять на вул.Кооперативна та у двір.
Приміщення обладнані системою відеоспостереження, пожежно-тривожної сигналізації, кондиціонерами.
Планування приміщення дозволяє використовувати його в якості офісних або торгівельних приміщень.
Електропотужність 20 кВт.
Опалення централізоване, є теплова рамка та окремий лічильник для 4 нежитлових приміщень на 1 поверсі будівлі. Лічильник в приміщенні іншого власника.
Електропостачання, водопостачання, опалення в наявності.

Власник - юр.особа. Вартість із ПДВ.
Тип пропозиції только продажа
Призначення об’єкта офіс
Площа 181.5 кв.м
  • Продаж комерційної нерухомості, 181,50&nbsp;кв.м, под офис, <a class="location-link" href="/kharkov/" title="Недвижимость Харків">Харків</a>, <a class="location-link" href="/kharkov/chervonozavodskij/" title="Недвижимость Основ'янський (Червонозаводський) район">Основ'янський (Червонозаводський) р-н</a>, Університетська вул., 35/2 (изображение 1)
  • Продаж комерційної нерухомості, 181,50&nbsp;кв.м, под офис, <a class="location-link" href="/kharkov/" title="Недвижимость Харків">Харків</a>, <a class="location-link" href="/kharkov/chervonozavodskij/" title="Недвижимость Основ'янський (Червонозаводський) район">Основ'янський (Червонозаводський) р-н</a>, Університетська вул., 35/2 (изображение 2)
  • Продаж комерційної нерухомості, 181,50&nbsp;кв.м, под офис, <a class="location-link" href="/kharkov/" title="Недвижимость Харків">Харків</a>, <a class="location-link" href="/kharkov/chervonozavodskij/" title="Недвижимость Основ'янський (Червонозаводський) район">Основ'янський (Червонозаводський) р-н</a>, Університетська вул., 35/2 (изображение 3)
  • Продаж комерційної нерухомості, 181,50&nbsp;кв.м, под офис, <a class="location-link" href="/kharkov/" title="Недвижимость Харків">Харків</a>, <a class="location-link" href="/kharkov/chervonozavodskij/" title="Недвижимость Основ'янський (Червонозаводський) район">Основ'янський (Червонозаводський) р-н</a>, Університетська вул., 35/2 (изображение 4)
  • Продаж комерційної нерухомості, 181,50&nbsp;кв.м, под офис, <a class="location-link" href="/kharkov/" title="Недвижимость Харків">Харків</a>, <a class="location-link" href="/kharkov/chervonozavodskij/" title="Недвижимость Основ'янський (Червонозаводський) район">Основ'янський (Червонозаводський) р-н</a>, Університетська вул., 35/2 (изображение 5)
  • Продаж комерційної нерухомості, 181,50&nbsp;кв.м, под офис, <a class="location-link" href="/kharkov/" title="Недвижимость Харків">Харків</a>, <a class="location-link" href="/kharkov/chervonozavodskij/" title="Недвижимость Основ'янський (Червонозаводський) район">Основ'янський (Червонозаводський) р-н</a>, Університетська вул., 35/2 (изображение 6)
  • Продаж комерційної нерухомості, 181,50&nbsp;кв.м, под офис, <a class="location-link" href="/kharkov/" title="Недвижимость Харків">Харків</a>, <a class="location-link" href="/kharkov/chervonozavodskij/" title="Недвижимость Основ'янський (Червонозаводський) район">Основ'янський (Червонозаводський) р-н</a>, Університетська вул., 35/2 (изображение 7)
  • Продаж комерційної нерухомості, 181,50&nbsp;кв.м, под офис, <a class="location-link" href="/kharkov/" title="Недвижимость Харків">Харків</a>, <a class="location-link" href="/kharkov/chervonozavodskij/" title="Недвижимость Основ'янський (Червонозаводський) район">Основ'янський (Червонозаводський) р-н</a>, Університетська вул., 35/2 (изображение 8)
  • Продаж комерційної нерухомості, 181,50&nbsp;кв.м, под офис, <a class="location-link" href="/kharkov/" title="Недвижимость Харків">Харків</a>, <a class="location-link" href="/kharkov/chervonozavodskij/" title="Недвижимость Основ'янський (Червонозаводський) район">Основ'янський (Червонозаводський) р-н</a>, Університетська вул., 35/2 (изображение 9)
  • Продаж комерційної нерухомості, 181,50&nbsp;кв.м, под офис, <a class="location-link" href="/kharkov/" title="Недвижимость Харків">Харків</a>, <a class="location-link" href="/kharkov/chervonozavodskij/" title="Недвижимость Основ'янський (Червонозаводський) район">Основ'янський (Червонозаводський) р-н</a>, Університетська вул., 35/2 (изображение 10)
  • Продаж комерційної нерухомості, 181,50&nbsp;кв.м, под офис, <a class="location-link" href="/kharkov/" title="Недвижимость Харків">Харків</a>, <a class="location-link" href="/kharkov/chervonozavodskij/" title="Недвижимость Основ'янський (Червонозаводський) район">Основ'янський (Червонозаводський) р-н</a>, Університетська вул., 35/2 (изображение 11)
  • Продаж комерційної нерухомості, 181,50&nbsp;кв.м, под офис, <a class="location-link" href="/kharkov/" title="Недвижимость Харків">Харків</a>, <a class="location-link" href="/kharkov/chervonozavodskij/" title="Недвижимость Основ'янський (Червонозаводський) район">Основ'янський (Червонозаводський) р-н</a>, Університетська вул., 35/2 (изображение 12)
  • Продаж комерційної нерухомості, 181,50&nbsp;кв.м, под офис, <a class="location-link" href="/kharkov/" title="Недвижимость Харків">Харків</a>, <a class="location-link" href="/kharkov/chervonozavodskij/" title="Недвижимость Основ'янський (Червонозаводський) район">Основ'янський (Червонозаводський) р-н</a>, Університетська вул., 35/2 (изображение 13)
  • Продаж комерційної нерухомості, 181,50&nbsp;кв.м, под офис, <a class="location-link" href="/kharkov/" title="Недвижимость Харків">Харків</a>, <a class="location-link" href="/kharkov/chervonozavodskij/" title="Недвижимость Основ'янський (Червонозаводський) район">Основ'янський (Червонозаводський) р-н</a>, Університетська вул., 35/2 (изображение 14)
  • Продаж комерційної нерухомості, 181,50&nbsp;кв.м, под офис, <a class="location-link" href="/kharkov/" title="Недвижимость Харків">Харків</a>, <a class="location-link" href="/kharkov/chervonozavodskij/" title="Недвижимость Основ'янський (Червонозаводський) район">Основ'янський (Червонозаводський) р-н</a>, Університетська вул., 35/2 (изображение 15)
  • Продаж комерційної нерухомості, 181,50&nbsp;кв.м, под офис, <a class="location-link" href="/kharkov/" title="Недвижимость Харків">Харків</a>, <a class="location-link" href="/kharkov/chervonozavodskij/" title="Недвижимость Основ'янський (Червонозаводський) район">Основ'янський (Червонозаводський) р-н</a>, Університетська вул., 35/2 (изображение 16)
  • Продаж комерційної нерухомості, 181,50&nbsp;кв.м, под офис, <a class="location-link" href="/kharkov/" title="Недвижимость Харків">Харків</a>, <a class="location-link" href="/kharkov/chervonozavodskij/" title="Недвижимость Основ'янський (Червонозаводський) район">Основ'янський (Червонозаводський) р-н</a>, Університетська вул., 35/2 (изображение 17)
  • Продаж комерційної нерухомості, 181,50&nbsp;кв.м, под офис, <a class="location-link" href="/kharkov/" title="Недвижимость Харків">Харків</a>, <a class="location-link" href="/kharkov/chervonozavodskij/" title="Недвижимость Основ'янський (Червонозаводський) район">Основ'янський (Червонозаводський) р-н</a>, Університетська вул., 35/2 (изображение 18)
  • Продаж комерційної нерухомості, 181,50&nbsp;кв.м, под офис, <a class="location-link" href="/kharkov/" title="Недвижимость Харків">Харків</a>, <a class="location-link" href="/kharkov/chervonozavodskij/" title="Недвижимость Основ'янський (Червонозаводський) район">Основ'янський (Червонозаводський) р-н</a>, Університетська вул., 35/2 (изображение 19)
  • Продаж комерційної нерухомості, 181,50&nbsp;кв.м, под офис, <a class="location-link" href="/kharkov/" title="Недвижимость Харків">Харків</a>, <a class="location-link" href="/kharkov/chervonozavodskij/" title="Недвижимость Основ'янський (Червонозаводський) район">Основ'янський (Червонозаводський) р-н</a>, Університетська вул., 35/2 (изображение 20)
  • Продаж комерційної нерухомості, 181,50&nbsp;кв.м, под офис, <a class="location-link" href="/kharkov/" title="Недвижимость Харків">Харків</a>, <a class="location-link" href="/kharkov/chervonozavodskij/" title="Недвижимость Основ'янський (Червонозаводський) район">Основ'янський (Червонозаводський) р-н</a>, Університетська вул., 35/2 (изображение 21)
  • Продаж комерційної нерухомості, 181,50&nbsp;кв.м, под офис, <a class="location-link" href="/kharkov/" title="Недвижимость Харків">Харків</a>, <a class="location-link" href="/kharkov/chervonozavodskij/" title="Недвижимость Основ'янський (Червонозаводський) район">Основ'янський (Червонозаводський) р-н</a>, Університетська вул., 35/2 (изображение 22)
  • Продаж комерційної нерухомості, 181,50&nbsp;кв.м, под офис, <a class="location-link" href="/kharkov/" title="Недвижимость Харків">Харків</a>, <a class="location-link" href="/kharkov/chervonozavodskij/" title="Недвижимость Основ'янський (Червонозаводський) район">Основ'янський (Червонозаводський) р-н</a>, Університетська вул., 35/2 (изображение 23)