Цена продажи
44 000 $
Комиссия риелтора: коммисия риелтора не указана
Телефоны:
- +38 (067) 372‑41‑18
- +38 (067) 214‑69‑17
- +38 (067) 372‑41‑18
- +38 (050) 379‑52‑57
Отправитель:
Олена
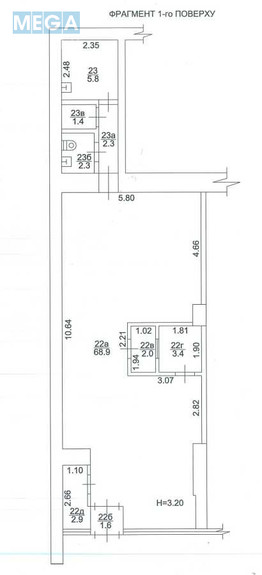
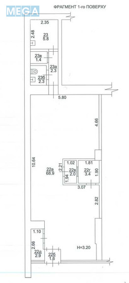
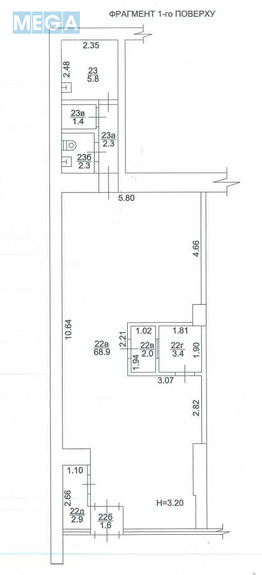
продаж нежитлового приміщення: м.Харків, пр.Ювілейний, 54.
Приміщення розташоване в будівлі кінотеатру Кіноленд (к/т не працює).
Загальна площа 90,6 кв.м. (1-й поверх).
Приміщення має один окремий вхід (з пр.Ювілейний).
Приміщення обладнане системою відеоспостереження, пожежно-тривожною сигналізацією.
Планування приміщення дозволяє використовувати його в якості офісних або торгівельних приміщень.
Електропотужність 10 кВт.
Опалення централізоване, є теплова рамка та окремий лічильник на всю будівлю кінотеатру.
Всі комунікації залежать від кінотеатру. Від початку воєнного стану в Україні кінотеатр припинив оплату за опалення, водопостачання, е/е.
Власник - юр.особа. Вартість із ПДВ.
Приміщення розташоване в будівлі кінотеатру Кіноленд (к/т не працює).
Загальна площа 90,6 кв.м. (1-й поверх).
Приміщення має один окремий вхід (з пр.Ювілейний).
Приміщення обладнане системою відеоспостереження, пожежно-тривожною сигналізацією.
Планування приміщення дозволяє використовувати його в якості офісних або торгівельних приміщень.
Електропотужність 10 кВт.
Опалення централізоване, є теплова рамка та окремий лічильник на всю будівлю кінотеатру.
Всі комунікації залежать від кінотеатру. Від початку воєнного стану в Україні кінотеатр припинив оплату за опалення, водопостачання, е/е.
Власник - юр.особа. Вартість із ПДВ.
| Тип пропозиції | только продажа |
| Призначення об’єкта | офіс |
| Площа | 90.6 кв.м |




