Продаж комерційної нерухомості, 136,20 кв.м, под офис
Харків, Холодногорский (Ленинский) р-н, Павлова Академіка, 160
Харків, Холодногорский (Ленинский) р-н, Павлова Академіка, 160
Цена продажи
66 000 $
Комиссия риелтора: коммисия риелтора не указана
Телефоны:
- +38 (067) 372‑41‑18
- +38 (067) 214‑69‑17
- +38 (067) 372‑41‑18
- +38 (050) 379‑52‑57
Отправитель:
Олена
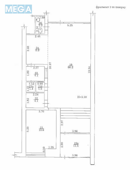
продаж вбудованого нежитлового приміщення: Харків, вул.Павлова Академіка, 160. Загальна площа 136,2 кв.м.
Приміщення розташоване в 350 метрах від ст.метро Героїв Праці, на 1-му поверсі 3-поверхової будівлі кінотеатру Познань, всередині різний рівень підлоги (сходинки). Приміщення має окремий вхід, зі сходами, зорієнтований на червону лінію вулиці Павлова Академіка, та запасний вихід до приміщень кінотеатру. Приміщення потребує поточного ремонту (є сліди грибка), обладнане системами електропостачання, водопостачання та водовідведення, опалення (від котельні кінотеатру), однак, всі вони підключені через мережі будівлі кінотеатру та не обслуговуються. Облаштовані пожежна та охоронна сигналізація. Власник - юр.особа. Вартість із ПДВ.
Приміщення розташоване в 350 метрах від ст.метро Героїв Праці, на 1-му поверсі 3-поверхової будівлі кінотеатру Познань, всередині різний рівень підлоги (сходинки). Приміщення має окремий вхід, зі сходами, зорієнтований на червону лінію вулиці Павлова Академіка, та запасний вихід до приміщень кінотеатру. Приміщення потребує поточного ремонту (є сліди грибка), обладнане системами електропостачання, водопостачання та водовідведення, опалення (від котельні кінотеатру), однак, всі вони підключені через мережі будівлі кінотеатру та не обслуговуються. Облаштовані пожежна та охоронна сигналізація. Власник - юр.особа. Вартість із ПДВ.
| Тип пропозиції | только продажа |
| Призначення об’єкта | офіс |
| Площа | 136.2 кв.м |
