Объявление №4069672

Добавлено 17.02.2025
www.megamakler.com.ua
Оренда комерційної нерухомості, 1 кв.м
Харків, Слобідський (Комінтернівський) р-н, проспект Байрона, 23а
Цена аренды 304 грн./мес. за все
Комиссия риелтора: коммисия риелтора не указана
Телефоны:
  • +38 (044) 594‑11‑09
Отправитель: АБ "УКРГАЗБАНК"
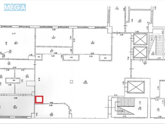
as995910.АБ УКРГАЗБАНК оголошує про передачу нерухомого майна в оренду на аукціоні, а саме щодо укладання договору оренди (тимчасового платного користування) Частина нежитлового приміщення №49, площею 1,0 кв. м, що знаходяться на першому поверсі нежитлової будівлі літ. А-8, загальною площею 7 744,80 кв.м, за адресою: м. Харків, проспект Байрона (стара назва - проспект Героїв Сталінграда), буд. 23-А. (для розміщення банкомату), відповідно до Схеми меж оренди.
Стартова орендна плата, грн./міс - 304,00 грн (триста чотири грн 00 коп.), з ПДВ
Детальніше з умовами укладання договору оренди можна ознайомитись за посиланням:
Тип пропозиції только аренда
Площа 1 кв.м
  • Оренда комерційної нерухомості, 1&nbsp;кв.м, <a class="location-link" href="/kharkov/" title="Недвижимость Харків">Харків</a>, <a class="location-link" href="/kharkov/kominternovskij/" title="Недвижимость Слобідський (Комінтернівський) район">Слобідський (Комінтернівський) р-н</a>, проспект Байрона, 23а (изображение 1)
  • Оренда комерційної нерухомості, 1&nbsp;кв.м, <a class="location-link" href="/kharkov/" title="Недвижимость Харків">Харків</a>, <a class="location-link" href="/kharkov/kominternovskij/" title="Недвижимость Слобідський (Комінтернівський) район">Слобідський (Комінтернівський) р-н</a>, проспект Байрона, 23а (изображение 2)
  • Оренда комерційної нерухомості, 1&nbsp;кв.м, <a class="location-link" href="/kharkov/" title="Недвижимость Харків">Харків</a>, <a class="location-link" href="/kharkov/kominternovskij/" title="Недвижимость Слобідський (Комінтернівський) район">Слобідський (Комінтернівський) р-н</a>, проспект Байрона, 23а (изображение 3)
  • Оренда комерційної нерухомості, 1&nbsp;кв.м, <a class="location-link" href="/kharkov/" title="Недвижимость Харків">Харків</a>, <a class="location-link" href="/kharkov/kominternovskij/" title="Недвижимость Слобідський (Комінтернівський) район">Слобідський (Комінтернівський) р-н</a>, проспект Байрона, 23а (изображение 4)