Объявление №4069674

Добавлено 17.02.2025
www.megamakler.com.ua
Оренда комерційної нерухомості, 14,30 кв.м, под офис
Харків, Слобідський (Комінтернівський) р-н, проспект Байрона, 23а
Цена аренды 687 грн./мес. за все
Комиссия риелтора: коммисия риелтора не указана
Телефоны:
  • +38 (044) 594‑11‑09
Отправитель: АБ "УКРГАЗБАНК"
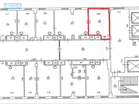
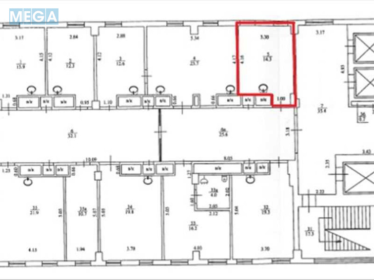
as995896. АБ УКРГАЗБАНК оголошує про передачу нерухомого майна в оренду на аукціоні, а саме щодо укладання договору оренди (тимчасового платного користування) нежитлового приміщення №5, загальною площею 14,3 кв.м, що знаходяться на сьомому поверсі нежитлової будівлі літ. А-8 за адресою м. Харків, проспект Байрона (стара назва - проспект Героїв Сталінграда) буд. 23-А, відповідно до Схеми меж оренди.
Стартова орендна плата, грн./міс - 687,26 грн. (шістсот вісімдесят сім грн 26 коп.), з ПДВ
Детальніше з умовами укладання договору оренди можна ознайомитись за посиланням:
Тип пропозиції только аренда
Призначення об’єкта офіс
Площа 14.3 кв.м
  • Оренда комерційної нерухомості, 14,30&nbsp;кв.м, под офис, <a class="location-link" href="/kharkov/" title="Недвижимость Харків">Харків</a>, <a class="location-link" href="/kharkov/kominternovskij/" title="Недвижимость Слобідський (Комінтернівський) район">Слобідський (Комінтернівський) р-н</a>, проспект Байрона, 23а (изображение 1)
  • Оренда комерційної нерухомості, 14,30&nbsp;кв.м, под офис, <a class="location-link" href="/kharkov/" title="Недвижимость Харків">Харків</a>, <a class="location-link" href="/kharkov/kominternovskij/" title="Недвижимость Слобідський (Комінтернівський) район">Слобідський (Комінтернівський) р-н</a>, проспект Байрона, 23а (изображение 2)
  • Оренда комерційної нерухомості, 14,30&nbsp;кв.м, под офис, <a class="location-link" href="/kharkov/" title="Недвижимость Харків">Харків</a>, <a class="location-link" href="/kharkov/kominternovskij/" title="Недвижимость Слобідський (Комінтернівський) район">Слобідський (Комінтернівський) р-н</a>, проспект Байрона, 23а (изображение 3)
  • Оренда комерційної нерухомості, 14,30&nbsp;кв.м, под офис, <a class="location-link" href="/kharkov/" title="Недвижимость Харків">Харків</a>, <a class="location-link" href="/kharkov/kominternovskij/" title="Недвижимость Слобідський (Комінтернівський) район">Слобідський (Комінтернівський) р-н</a>, проспект Байрона, 23а (изображение 4)