Объявление №4078740

Добавлено 15.10.2025
www.megamakler.com.ua
Оренда окремої будівлі/побудови, 21,40 кв.м
Харків, Шевченківський (Дзержинський) р-н, Шатилова дача, 4
Цена аренды 850 грн./мес. за все
Комиссия риелтора: коммисия риелтора не указана
Телефоны:
  • +38 (044) 594‑11‑09
Отправитель: АБ "УКРГАЗБАНК"
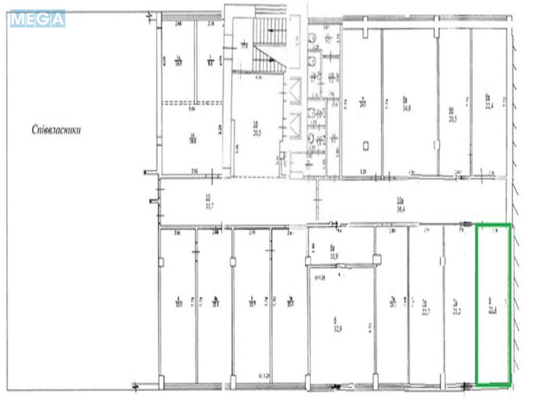
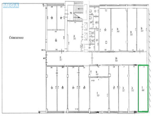
as1006202. АБ УКРГАЗБАНК оголошує про передачу нерухомого майна в оренду на аукціоні, а саме щодо укладання договору оренди (тимчасового платного користування) нежитлового приміщення №8 (кабінет), загальною площею 21,4 кв.м, що знаходиться на сьомому поверсі нежитлової будівлі літ. А-8, за адресою: м. Харків, вул. Шатилова дача, 4, відповідно до Схеми меж оренди.
Стартова орендна плата, грн./міс - 850,65 грн., з ПДВ
Детальніше з умовами укладання договору оренди можна ознайомитись за посиланням:
Тип пропозиції только аренда
Тип об’єкта окрема будівля/будівля
Площа 21.4 кв.м
  • Оренда окремої будівлі/побудови, 21,40&nbsp;кв.м, <a class="location-link" href="/kharkov/" title="Недвижимость Харків">Харків</a>, <a class="location-link" href="/kharkov/dzerzhinskij/" title="Недвижимость Шевченківський (Дзержинський) район">Шевченківський (Дзержинський) р-н</a>, Шатилова дача, 4 (изображение 1)
  • Оренда окремої будівлі/побудови, 21,40&nbsp;кв.м, <a class="location-link" href="/kharkov/" title="Недвижимость Харків">Харків</a>, <a class="location-link" href="/kharkov/dzerzhinskij/" title="Недвижимость Шевченківський (Дзержинський) район">Шевченківський (Дзержинський) р-н</a>, Шатилова дача, 4 (изображение 2)
  • Оренда окремої будівлі/побудови, 21,40&nbsp;кв.м, <a class="location-link" href="/kharkov/" title="Недвижимость Харків">Харків</a>, <a class="location-link" href="/kharkov/dzerzhinskij/" title="Недвижимость Шевченківський (Дзержинський) район">Шевченківський (Дзержинський) р-н</a>, Шатилова дача, 4 (изображение 3)