Цена аренды
12 $/мес. за кв. м
Комиссия риелтора: коммисия риелтора не указана
Телефоны:
- +38 (068) 979‑15‑21
Отправитель:
Тетяна
Оренда офісу(аренда офиса)ВІД ВЛАСНИКА, ВЛАСНИЙ ДИЗЕЛЬ ГЕНЕРАТОР, АВТОНОМНЕ ОПАЛЕННЯ, УКРИТТЯ, сучасні інженерні системи, 5 провайдерів інтернету на вибір.
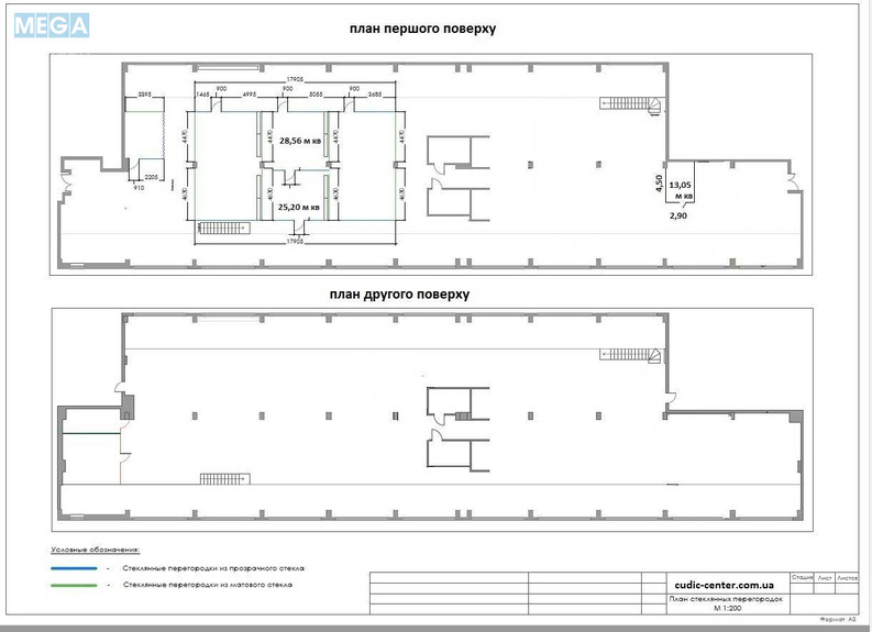
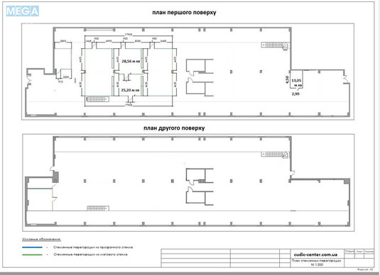
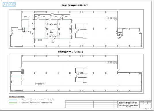
Дворівневе офісне приміщення в Бізнес-Центрі Cubic-Center по вул. Шолуденка 3, на 1-му поверсі площею 1712 м2 в гарному стані, кабінети з скляними перегородками, open space, власні с/в із встановленим сантехнічним обладнанням, 4 (чотири) міні кухні з меблями. Приміщення здається без меблів, але є можливість обладнати приміщення меблями (оренда меблів за домовленістю, в залежності від комплектації).
Планування:
Площа: 1-й поверх + 2-й рівень = 1712,00 кв.м. (відповідно 1000,00 м кв + 712,00 м кв). Є можливість розділити/здавати це приміщення, як 2 окремих, а саме:
Офіс 1= 937,4 м2, офіс 2= 739,2 м2 (За потреби планування і фото надішлю додатково)
За потреби планування і фото надішлю додатково.
Оренда: еквівалент 12$/м2 з ОРЕХ,(курс НБУ), додатково тільки електроенергія.
Коефіцієнт загальних приміщень не застосовується!
Будівля розташована в 100 м. від пр. Берестейського, 10 хв. пішки від ст. метро Політехнічний інститут і 12 хв. пішки від ст. метро Лук’янівська, ст. метро Вокзальна
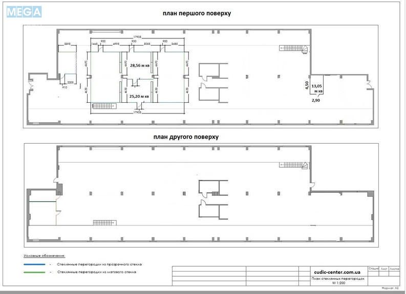
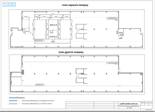
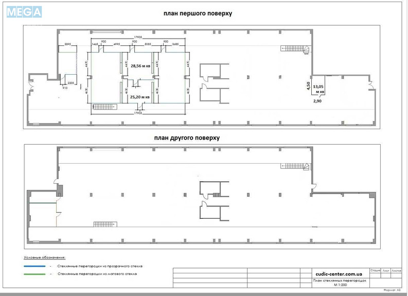
Дворівневе офісне приміщення в Бізнес-Центрі Cubic-Center по вул. Шолуденка 3, на 1-му поверсі площею 1712 м2 в гарному стані, кабінети з скляними перегородками, open space, власні с/в із встановленим сантехнічним обладнанням, 4 (чотири) міні кухні з меблями. Приміщення здається без меблів, але є можливість обладнати приміщення меблями (оренда меблів за домовленістю, в залежності від комплектації).
Планування:
Площа: 1-й поверх + 2-й рівень = 1712,00 кв.м. (відповідно 1000,00 м кв + 712,00 м кв). Є можливість розділити/здавати це приміщення, як 2 окремих, а саме:
Офіс 1= 937,4 м2, офіс 2= 739,2 м2 (За потреби планування і фото надішлю додатково)
За потреби планування і фото надішлю додатково.
Оренда: еквівалент 12$/м2 з ОРЕХ,(курс НБУ), додатково тільки електроенергія.
Коефіцієнт загальних приміщень не застосовується!
Будівля розташована в 100 м. від пр. Берестейського, 10 хв. пішки від ст. метро Політехнічний інститут і 12 хв. пішки від ст. метро Лук’янівська, ст. метро Вокзальна
| Тип пропозиції | только аренда |
| Призначення об’єкта | офіс |
| Площа | 1700 кв.м |


