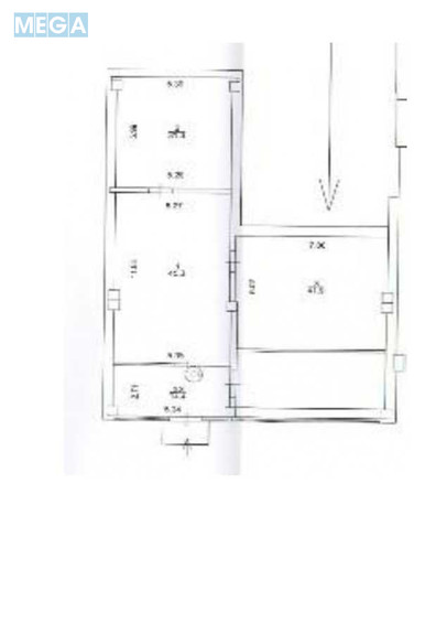
Продаж комерційної нерухомості, 118,50 кв.м, под офис
Київ, Дарницький р-н, Александра Мишуги ул., 10
Київ, Дарницький р-н, Александра Мишуги ул., 10
Цена продажи
177 800 $
Комиссия риелтора: коммисия риелтора не указана
Телефоны:
- +38 (096) 050‑66‑50
Отправитель:
Владелец
ПРОДАМ нежитл.приміщ. S=118,5 м2, ст.м.Позняки, БЦ Паралель
Пропозиція від Власника: ПРОДАМ своє нежитлове приміщення загал. площею = 118,5 m2. Орендний бізнес. Приміщення розташоване на 1-му поверсі Бізнес центра Паралель. Свій генератор! Великі вітринні вікна з фасаду. БЦ розташований на території нового, зданого і заселеного ЖК, з високою щільністю населення. Ст.м .Позняки 50 м. Поруч офіси, банки, термінали банкомати, супермаркети, поштові відділення. Кав’ярні, кафе, міні-ресторани. Школи, садочки, дитячі спортивні та розвиваючи клуби. Драйвове місце для Вашого бізнесу. Приміщення належить до комерційної нерухомості. Краще за все використовувати як торгову площу, салон краси, дитячий клуб / школу, офіс. На даний час приміщення винаймають орендарі. Офіс ІТ технологій. Кондиціювання, Відеоспостереження, Охорона, Пожежна сигналізація, Серверна кімната, кабельна мережа інтернету. Світле та просторе приміщення, з дорогим, якісним ремонтом. Висота стелі 2.8 m. Ел/енергія без перебою, БЦ має свій генератор. БЦ збудован та здан в експлуатацію у 2016р.
Вартість 1500 $ / m?. Загальна вартість = 177800 $. Запрошую до співпраці ріелторів.
Власник юридична особа. Контактний тел.:0
Пропозиція від Власника: ПРОДАМ своє нежитлове приміщення загал. площею = 118,5 m2. Орендний бізнес. Приміщення розташоване на 1-му поверсі Бізнес центра Паралель. Свій генератор! Великі вітринні вікна з фасаду. БЦ розташований на території нового, зданого і заселеного ЖК, з високою щільністю населення. Ст.м .Позняки 50 м. Поруч офіси, банки, термінали банкомати, супермаркети, поштові відділення. Кав’ярні, кафе, міні-ресторани. Школи, садочки, дитячі спортивні та розвиваючи клуби. Драйвове місце для Вашого бізнесу. Приміщення належить до комерційної нерухомості. Краще за все використовувати як торгову площу, салон краси, дитячий клуб / школу, офіс. На даний час приміщення винаймають орендарі. Офіс ІТ технологій. Кондиціювання, Відеоспостереження, Охорона, Пожежна сигналізація, Серверна кімната, кабельна мережа інтернету. Світле та просторе приміщення, з дорогим, якісним ремонтом. Висота стелі 2.8 m. Ел/енергія без перебою, БЦ має свій генератор. БЦ збудован та здан в експлуатацію у 2016р.
Вартість 1500 $ / m?. Загальна вартість = 177800 $. Запрошую до співпраці ріелторів.
Власник юридична особа. Контактний тел.:0
| Тип пропозиції | только продажа |
| Призначення об’єкта | офіс |
| Площа | 118.5 кв.м |










