Продаж комерційної нерухомості, 165 кв.м, под магазин
Київ, Голосіївський р-н, Михайла Максимовича вул., 26
Київ, Голосіївський р-н, Михайла Максимовича вул., 26
Цена продажи
500 000 $
Комиссия риелтора: коммисия риелтора не указана
Телефоны:
- +38 (093) 507‑46‑89
- +38 (063) 673‑94‑47
Отправитель:
Станіслав
Супер-фасад, вивіска на Головну площі де прогулюється увесь комплекс, сусід продуктовий маркет комплексу "Зелена Лавка".
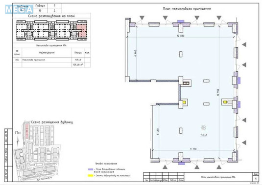
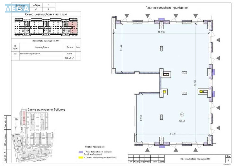
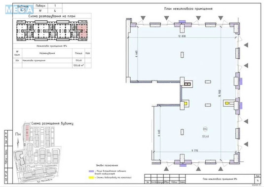
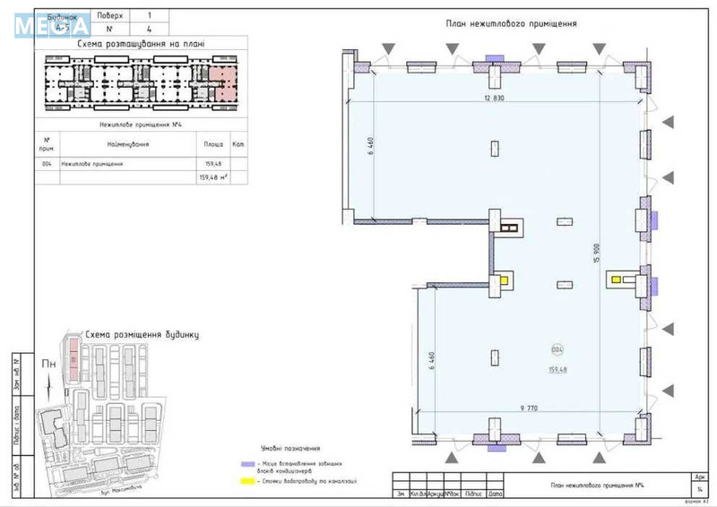
Приміщення 165 кв.м, 5-ть окремих входів, 1-й поверх, великі вітрині вікна, місце під вивіску, висота стелі Н=4,20 метра, потужність 40 кВт електроенергія. Лічильники на воду, тепло, електроенергія.
-ЖК "Нова Англія" це місто в місті на 4600 квартир, підземний та наземний паркінг, велика школа "ЄВРОПЕЙСЬКИЙ КОЛЕГІУМ", дитячий садок, якісні дитячі майданчики, дитячі гуртки, спортивний майданчик, тенісний корт, качалка, міні-футбол, салони, клініки, сімейний лікарь, майданчик для собак, кафе, ресторан, маркети. Метро "Васильківська" 10-15 хвилин пішки.
Агенство Нерухомості у "Новій Англії", ключі в офісі оперативний показ.
Приміщення 165 кв.м, 5-ть окремих входів, 1-й поверх, великі вітрині вікна, місце під вивіску, висота стелі Н=4,20 метра, потужність 40 кВт електроенергія. Лічильники на воду, тепло, електроенергія.
-ЖК "Нова Англія" це місто в місті на 4600 квартир, підземний та наземний паркінг, велика школа "ЄВРОПЕЙСЬКИЙ КОЛЕГІУМ", дитячий садок, якісні дитячі майданчики, дитячі гуртки, спортивний майданчик, тенісний корт, качалка, міні-футбол, салони, клініки, сімейний лікарь, майданчик для собак, кафе, ресторан, маркети. Метро "Васильківська" 10-15 хвилин пішки.
Агенство Нерухомості у "Новій Англії", ключі в офісі оперативний показ.
| Тип пропозиції | только продажа |
| Призначення об’єкта | магазин |
| Площа | 165 кв.м |

