Цена аренды
12 $/мес. за кв. м
Комиссия риелтора: коммисия риелтора не указана
Телефоны:
- +38 (050) 442‑01‑03
Отправитель:
Роман
Вул. Протасів Яр 10.
Метро Олімпійська - 12 хвилин пішки.
Солом’янський район.
Поруч з ЖК Альпійське містечко.
Фасадна 6-поверхова безпечна монолітно-каркасна будівля зі сховищем, автономною газовою котельнею та великою терасою на даху під заклад.
Респектабельна будівля 2024 року побудови, зі скляним фасадом, ідеально розташована в червоних лініях, на повороті до житлового комплексу Альпійське містечко, чудово оглядається з транспортної артерії міста, вулиці Протасів Яр, яка з’єднує центр міста та Солом’янку - може стати візитівкою Вашої компанії.
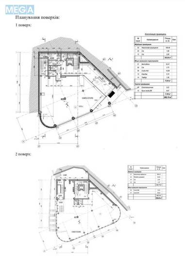
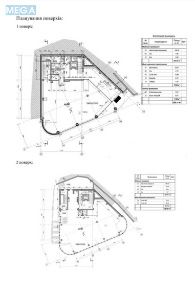
Пропонується в оренду 1800 кв.м. (частина будівлі). Можлива оренда поповерхово, кожен поверх має площу 350кв.м.
Висота стелі 3.5-4.5м.
Сучасна торгово-офісна будівля має раціональні планувальні рішення: передбачено 3 входи, забезпечено автономність кожного з поверхів, які мають вільне планування open space, можливе дроблення на блоки по 170кв.м.
Найбезпечніша в сучасних реаліях монолітно-каркасна технологія будівництва окремо розташованого об’єкта, передбачено сховище, оснащення сучасною інженерією: канальна система вентиляції та кондиціонування, власна котельня на газу, ліфт преміум-класу, алюмінієві віконні конструкції Guardian, склопакети наповнені аргоном.
Міські мережі центрального водопостачання та каналізації.
Власна фасадна парковка на 20 місць, є можливість безперешкодного паркування поруч, на узбіччі вулиці Протасів яр, до 70 автомобілів.
Підходить для таких видів діяльності: торговельно-офісне представництво, коворкінг, медична клініка, лабораторія, заклад освіти, навчальний центр, кафе, ресторан з видовою терасою, творчий простір, високотехнологічне виробництво.
Ціна від 12у.о./кв.м. Власник.
Метро Олімпійська - 12 хвилин пішки.
Солом’янський район.
Поруч з ЖК Альпійське містечко.
Фасадна 6-поверхова безпечна монолітно-каркасна будівля зі сховищем, автономною газовою котельнею та великою терасою на даху під заклад.
Респектабельна будівля 2024 року побудови, зі скляним фасадом, ідеально розташована в червоних лініях, на повороті до житлового комплексу Альпійське містечко, чудово оглядається з транспортної артерії міста, вулиці Протасів Яр, яка з’єднує центр міста та Солом’янку - може стати візитівкою Вашої компанії.
Пропонується в оренду 1800 кв.м. (частина будівлі). Можлива оренда поповерхово, кожен поверх має площу 350кв.м.
Висота стелі 3.5-4.5м.
Сучасна торгово-офісна будівля має раціональні планувальні рішення: передбачено 3 входи, забезпечено автономність кожного з поверхів, які мають вільне планування open space, можливе дроблення на блоки по 170кв.м.
Найбезпечніша в сучасних реаліях монолітно-каркасна технологія будівництва окремо розташованого об’єкта, передбачено сховище, оснащення сучасною інженерією: канальна система вентиляції та кондиціонування, власна котельня на газу, ліфт преміум-класу, алюмінієві віконні конструкції Guardian, склопакети наповнені аргоном.
Міські мережі центрального водопостачання та каналізації.
Власна фасадна парковка на 20 місць, є можливість безперешкодного паркування поруч, на узбіччі вулиці Протасів яр, до 70 автомобілів.
Підходить для таких видів діяльності: торговельно-офісне представництво, коворкінг, медична клініка, лабораторія, заклад освіти, навчальний центр, кафе, ресторан з видовою терасою, творчий простір, високотехнологічне виробництво.
Ціна від 12у.о./кв.м. Власник.
| Тип пропозиції | только аренда |
| Тип об’єкта | окрема будівля/будівля |
| Площа | 350 кв.м |


