Продаж 5 кімнатної квартири (126/85/18), 3 пов. 5 пов. будинку
Київ, Шевченківський р-н, Січових Стрільців вул., 58/2
Київ, Шевченківський р-н, Січових Стрільців вул., 58/2
Цена
235 000 $
Комиссия риелтора: коммисия риелтора не указана
Телефоны:
- +38 (093) 223‑94‑49
Отправитель:
Світлана
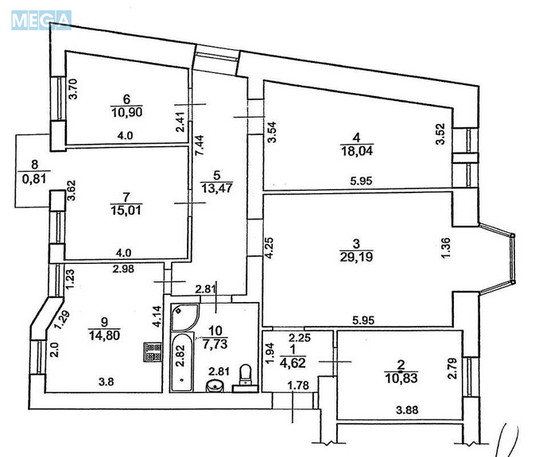
Без комісії для покупця! Продаж 5-кімнатної квартири. Шевченківський район, центр, вул. Січових Стрільців (Артема) буд. 58/2, на розі з вул. Пимоненка, 126 кв. м., 3-й поверх 5-ти поверхового дореволюційного будинку, ліфт, фасадний вхід у підїзд. Квартира двостороння, світла, з великими вікнами та високими стелями. Робився повний капремонт квартири. Висота стелі 3,20, залізобетонні перекриття. Квартира у відмінному житловому стані. Кімнати всі окремі, кухня 15 кв.м., вітальня з еркером 30 кв. м. +4 спальні (15+11+18+11) кв.м., санвузол 8 кв.м. На підлозі паркет і кахель, стіни-світле фарбування. Відмінна інфраструктура, у пішій доступності ресторани, магазини, зупинки громадського транспорту, Покровський монастир, Пейзажна алея, метро Лукянівська. Без опікунського та складнощів. Без комісії. Співпрацюємо з ріелторами без дубляжу нашого рекламного оголошення та фото. Ціна 235000 у.о.
| Кімнат | 5 кімнат |
| Площа (загальна/житлова/кухня) | 126/85/18 кв. м |
| Поверх | 3 поверх |
| Поверховість будинку | 5 поверхів |

