Продаж 2 кімнатної квартири (87/43/18), 21 пов. 24 пов. будинку
Київ, Шевченківський р-н, Багговутівська вул., 25
Київ, Шевченківський р-н, Багговутівська вул., 25
Цена
95 000 $
Комиссия риелтора: коммисия риелтора не указана
Телефоны:
- +38 (050) 368‑17‑92
Отправитель:
Анатолій
Пропонуємо Вашій увазі двокімнатну квартиру у ЖК Багговутівський.
Татарка історична місцевість столиці, яка розташована у Шевченківському районі
вул. Загорівська,25
Сучасний будинок класу Комфорт.
Монолітно-каркасний. Стіни - цегла.
Двадцять чотири поверха
Атрибути бізнес-класу у будинку:
Власна котельня. В квартирі встановлені та підключені радіатори. Лічильник на тепло (лічильники на воду та електрику зрозуміло також).
Підземний паркінг.
Сучасні швидкісні ліфти. Спускаются прямо у паркінг.
Чипований доступ до підїзду, до ліфту, та до паркінгу.
Вхідні двері у квартиру протиударні та вогнетривкі, оскільки виконані з якісного металу. Можна не міняти.
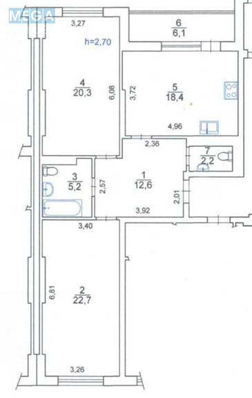
Велика двокімнатна квартира. Після будівельників. У цієї двокімнатної квартирі сама велика загальна площа, відповідно і площа кухні, серед двокімнатних квартир у ЖК Багговутівський.
21 поверх.
Загальна площа. 87,5 м2. Житлова 43 м2. Площа кухні 18,4 м2.
Планування. Вікна виходять на дві протилежні сторони.
Вікно однієї з двох житлових кімнат - панорамне.
З кухні вихід на велику лоджію - 6,1 м2.
Два санвузли.
Зверніть увагу на розташування отворів міжкімнатних дверей. Вони дозволяють планувати цікаві рішення по меблюванню квартири.
Панорама. Для тих хто цінує. З вікна можно побачити куполи Андріївської церкви на Андріївському узвозі
На поверсі є єдина кладова. 3,6 м2 Вона у власности. Продаж розглянемо окремо.
Потрібно паркомісце? Є у власності. Питання розглянемо окремо.
.
Інфраструктура. Поряд ТРЦ Променада, Сільпо, SportLife, мед. заклади, дитячі садки, школи та парки у пішій доступності. Відмінна транспортна розвязка, зупинки громадського транспорту.
Квартира у власності. Документам більше 3 років. Держпрограми розглядаємо. Представник власника без комісії для покупця. Відео по запиту. Консультації. Перегляди. Дзвоніть.
Татарка історична місцевість столиці, яка розташована у Шевченківському районі
вул. Загорівська,25
Сучасний будинок класу Комфорт.
Монолітно-каркасний. Стіни - цегла.
Двадцять чотири поверха
Атрибути бізнес-класу у будинку:
Власна котельня. В квартирі встановлені та підключені радіатори. Лічильник на тепло (лічильники на воду та електрику зрозуміло також).
Підземний паркінг.
Сучасні швидкісні ліфти. Спускаются прямо у паркінг.
Чипований доступ до підїзду, до ліфту, та до паркінгу.
Вхідні двері у квартиру протиударні та вогнетривкі, оскільки виконані з якісного металу. Можна не міняти.
Велика двокімнатна квартира. Після будівельників. У цієї двокімнатної квартирі сама велика загальна площа, відповідно і площа кухні, серед двокімнатних квартир у ЖК Багговутівський.
21 поверх.
Загальна площа. 87,5 м2. Житлова 43 м2. Площа кухні 18,4 м2.
Планування. Вікна виходять на дві протилежні сторони.
Вікно однієї з двох житлових кімнат - панорамне.
З кухні вихід на велику лоджію - 6,1 м2.
Два санвузли.
Зверніть увагу на розташування отворів міжкімнатних дверей. Вони дозволяють планувати цікаві рішення по меблюванню квартири.
Панорама. Для тих хто цінує. З вікна можно побачити куполи Андріївської церкви на Андріївському узвозі
На поверсі є єдина кладова. 3,6 м2 Вона у власности. Продаж розглянемо окремо.
Потрібно паркомісце? Є у власності. Питання розглянемо окремо.
.
Інфраструктура. Поряд ТРЦ Променада, Сільпо, SportLife, мед. заклади, дитячі садки, школи та парки у пішій доступності. Відмінна транспортна розвязка, зупинки громадського транспорту.
Квартира у власності. Документам більше 3 років. Держпрограми розглядаємо. Представник власника без комісії для покупця. Відео по запиту. Консультації. Перегляди. Дзвоніть.
| Кімнат | 2 кімнати |
| Площа (загальна/житлова/кухня) | 87/43/18 кв. м |
| Поверх | 21 поверх |
| Поверховість будинку | 24 поверха |






