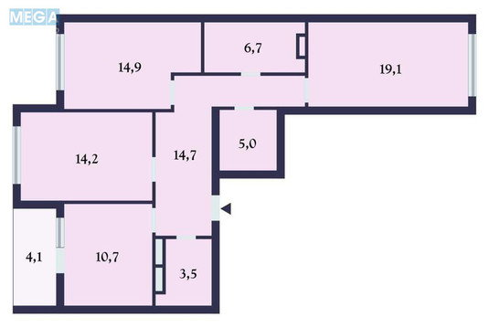
Продаж 3 кімнатної квартири (93/50/11), 2 пов. 16 пов. будинку
Київ, Подільський р-н, Тираспольская ул., 52
Київ, Подільський р-н, Тираспольская ул., 52
Цена
130 000 $
Комиссия риелтора: коммисия риелтора не указана
Телефоны:
- +38 (050) 198‑50‑81
Отправитель:
Люция
продаж без комісії від власника.
Київ. Тираспольська, 52. Подільський р-н. ЖК Місто Квітів
3 кімнатна квартира 93 м2, 2/16 поверх ;
після будівельників (зроблена сантехніка та електрика);
у квартирі: кухня, вітальня, 2 окремі спальні, 2 с/в, гардероб, балкон;
лічильники на світло, воду, тепло;
Забудовник МЖК Оболонь, будинок зданий, заселений ;
чудова інфраструктура: дитячі майданчики, школи, садочки, салони краси, магазини, аптеки, кафе, фітнес, торгівельний центр, медичні заклади, зручна транспортна розв’язка, на території комплексу 4х-поверховий паркінг;
у пішій доступності Дендропарк, Сирецький парк;
Метро Сирець 15 хв через парк, Метро Нивки 15 хв транспортом;
Вартість
Київ. Тираспольська, 52. Подільський р-н. ЖК Місто Квітів
3 кімнатна квартира 93 м2, 2/16 поверх ;
після будівельників (зроблена сантехніка та електрика);
у квартирі: кухня, вітальня, 2 окремі спальні, 2 с/в, гардероб, балкон;
лічильники на світло, воду, тепло;
Забудовник МЖК Оболонь, будинок зданий, заселений ;
чудова інфраструктура: дитячі майданчики, школи, садочки, салони краси, магазини, аптеки, кафе, фітнес, торгівельний центр, медичні заклади, зручна транспортна розв’язка, на території комплексу 4х-поверховий паркінг;
у пішій доступності Дендропарк, Сирецький парк;
Метро Сирець 15 хв через парк, Метро Нивки 15 хв транспортом;
Вартість
| Кімнат | 3 кімнати |
| Площа (загальна/житлова/кухня) | 93/50/11 кв. м |
| Поверх | 2 поверх |
| Поверховість будинку | 16 поверхів |




