Объявление №4073591

Добавлено 30.05.2025
www.megamakler.com.ua
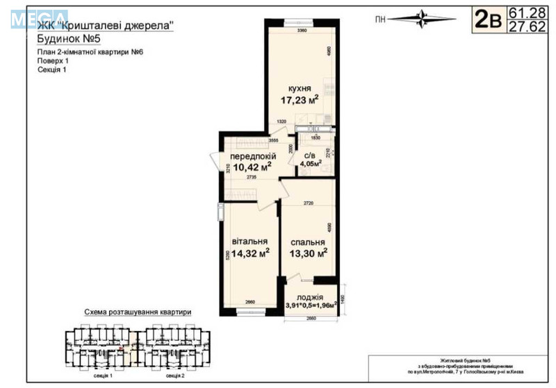
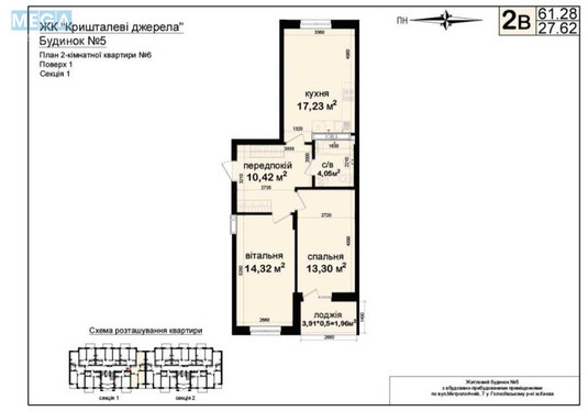
Продаж 2 кімнатної квартири (65/31/17), 8 пов. 10 пов. будинку
Київ, Голосіївський р-н, Метрологическая ул., 107Г
Цена 3 690 000 грн.
Комиссия риелтора: коммисия риелтора не указана
Телефоны:
  • +38 (095) 653‑89‑49
  • +38 (063) 983‑89‑79
Отправитель: Светлана
ЖК Крешталеві джерела,

ул. Метрологическая 107Г

Будинок заселений тепло.

Без світла є газ, вода,інтернет,тепло!

8/9 эт, 65м2. Двоссторонняя. Просторная двухкомнатная квартира с комфортной планировкой: кухня-гостинная , 2 спальні, балкон. Видовая . Квартира расположена в квартале комфорт-класса Феофания Park, входящего в состав жилого комплекса Кришталеві джерела. Дом введен в эксплуатацию. В квартире сделана стяжка пола, двухкамерные и панорамные евроокна, радиаторы, счётчики. Высота потолка 2.78 м. Дома Феофания-Park имеют закрытую охраняемую территорию с паркоместами. Окружающая природа, леса, источники позволяют приятно проводить время вне работы, где места для отдыха созданы наилучшим образом и пользуются большой популярностью. Территория оснащена детскими и спортивными площадками. Подъезды оснащены современной домофонной системой и лифтами. Круглосуточная охрана с пешим патрулем 24/7, территория дома ограждена, въезд через шлагбаум (действует пропускная система), коммуникации от города! В 10-ти минутах езды: ТРК "Магеллан", "Эпицентр", ТЦ "Аракс",

ВДНХ, ТРК "Art Mall", ТРЦ "Атмосфера.Удобная транспортная развязка, метро Теремки, Ипподром: 10-15 минут маршрутным транспортом (до 25 минут пешком) В 3х минутах ходьбы от дома парк Феофания)

Цена 3690000 грн

Оплата в гривні,переуступка.
Кімнат 2 кімнати
Площа (загальна/житлова/кухня) 65/31/17 кв. м
Поверх 8 поверх
Поверховість будинку 10 поверхів
  • Продаж 2 кімнатної квартири (65/31/17), 8 пов. 10 пов. будинку, <a class="location-link" href="/kiev/" title="Недвижимость Київ">Київ</a>, <a class="location-link" href="/kiev/goloseevskij/" title="Недвижимость Голосіївський район">Голосіївський р-н</a>, Метрологическая ул., 107Г (изображение 1)
  • Продаж 2 кімнатної квартири (65/31/17), 8 пов. 10 пов. будинку, <a class="location-link" href="/kiev/" title="Недвижимость Київ">Київ</a>, <a class="location-link" href="/kiev/goloseevskij/" title="Недвижимость Голосіївський район">Голосіївський р-н</a>, Метрологическая ул., 107Г (изображение 2)
  • Продаж 2 кімнатної квартири (65/31/17), 8 пов. 10 пов. будинку, <a class="location-link" href="/kiev/" title="Недвижимость Київ">Київ</a>, <a class="location-link" href="/kiev/goloseevskij/" title="Недвижимость Голосіївський район">Голосіївський р-н</a>, Метрологическая ул., 107Г (изображение 3)
  • Продаж 2 кімнатної квартири (65/31/17), 8 пов. 10 пов. будинку, <a class="location-link" href="/kiev/" title="Недвижимость Київ">Київ</a>, <a class="location-link" href="/kiev/goloseevskij/" title="Недвижимость Голосіївський район">Голосіївський р-н</a>, Метрологическая ул., 107Г (изображение 4)
  • Продаж 2 кімнатної квартири (65/31/17), 8 пов. 10 пов. будинку, <a class="location-link" href="/kiev/" title="Недвижимость Київ">Київ</a>, <a class="location-link" href="/kiev/goloseevskij/" title="Недвижимость Голосіївський район">Голосіївський р-н</a>, Метрологическая ул., 107Г (изображение 5)
  • Продаж 2 кімнатної квартири (65/31/17), 8 пов. 10 пов. будинку, <a class="location-link" href="/kiev/" title="Недвижимость Київ">Київ</a>, <a class="location-link" href="/kiev/goloseevskij/" title="Недвижимость Голосіївський район">Голосіївський р-н</a>, Метрологическая ул., 107Г (изображение 6)
  • Продаж 2 кімнатної квартири (65/31/17), 8 пов. 10 пов. будинку, <a class="location-link" href="/kiev/" title="Недвижимость Київ">Київ</a>, <a class="location-link" href="/kiev/goloseevskij/" title="Недвижимость Голосіївський район">Голосіївський р-н</a>, Метрологическая ул., 107Г (изображение 7)
  • Продаж 2 кімнатної квартири (65/31/17), 8 пов. 10 пов. будинку, <a class="location-link" href="/kiev/" title="Недвижимость Київ">Київ</a>, <a class="location-link" href="/kiev/goloseevskij/" title="Недвижимость Голосіївський район">Голосіївський р-н</a>, Метрологическая ул., 107Г (изображение 8)
  • Продаж 2 кімнатної квартири (65/31/17), 8 пов. 10 пов. будинку, <a class="location-link" href="/kiev/" title="Недвижимость Київ">Київ</a>, <a class="location-link" href="/kiev/goloseevskij/" title="Недвижимость Голосіївський район">Голосіївський р-н</a>, Метрологическая ул., 107Г (изображение 9)
  • Продаж 2 кімнатної квартири (65/31/17), 8 пов. 10 пов. будинку, <a class="location-link" href="/kiev/" title="Недвижимость Київ">Київ</a>, <a class="location-link" href="/kiev/goloseevskij/" title="Недвижимость Голосіївський район">Голосіївський р-н</a>, Метрологическая ул., 107Г (изображение 10)
  • Продаж 2 кімнатної квартири (65/31/17), 8 пов. 10 пов. будинку, <a class="location-link" href="/kiev/" title="Недвижимость Київ">Київ</a>, <a class="location-link" href="/kiev/goloseevskij/" title="Недвижимость Голосіївський район">Голосіївський р-н</a>, Метрологическая ул., 107Г (изображение 11)
  • Продаж 2 кімнатної квартири (65/31/17), 8 пов. 10 пов. будинку, <a class="location-link" href="/kiev/" title="Недвижимость Київ">Київ</a>, <a class="location-link" href="/kiev/goloseevskij/" title="Недвижимость Голосіївський район">Голосіївський р-н</a>, Метрологическая ул., 107Г (изображение 12)