Объявление №4073970

Добавлено 11.06.2025
www.megamakler.com.ua
Продаж комерційної нерухомості, 30,70 кв.м, под магазин
Київ, Дарницький р-н, Михайла Драгоманова вул., 11
Цена продажи 124 000 $
Комиссия риелтора: коммисия риелтора не указана
Телефоны:
  • +38 (098) 444‑44‑40
Отправитель: Алексей Мурин
Без комісії для покупця!

Продається готовий орендний бізнес приміщення з орендарем магазином оптики за адресою: вул. Михайла Драгоманова 11.

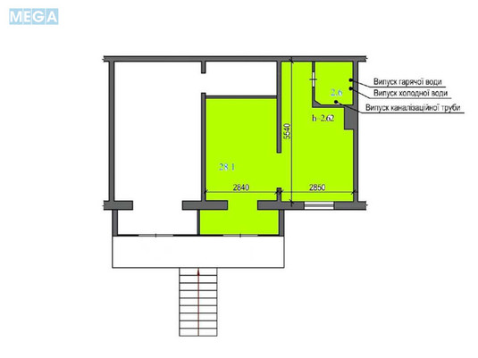
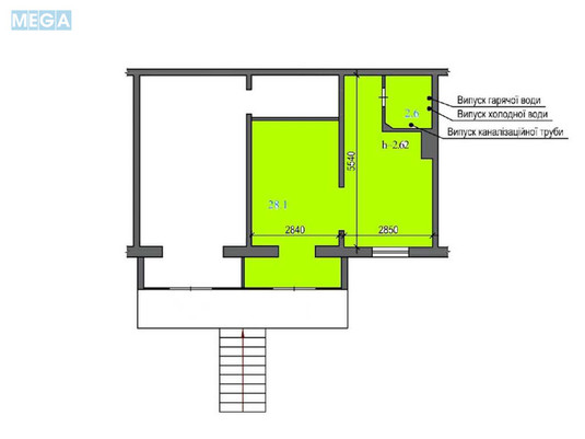
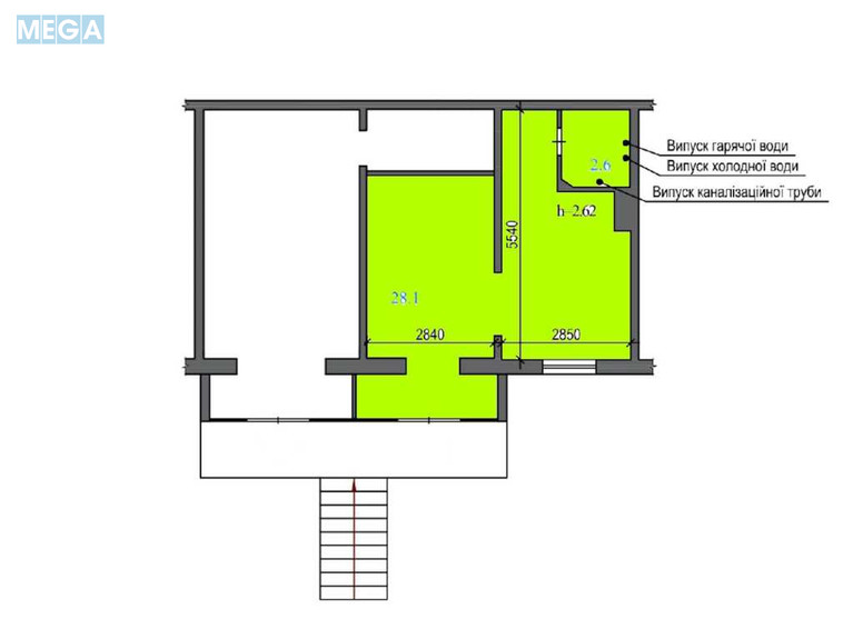
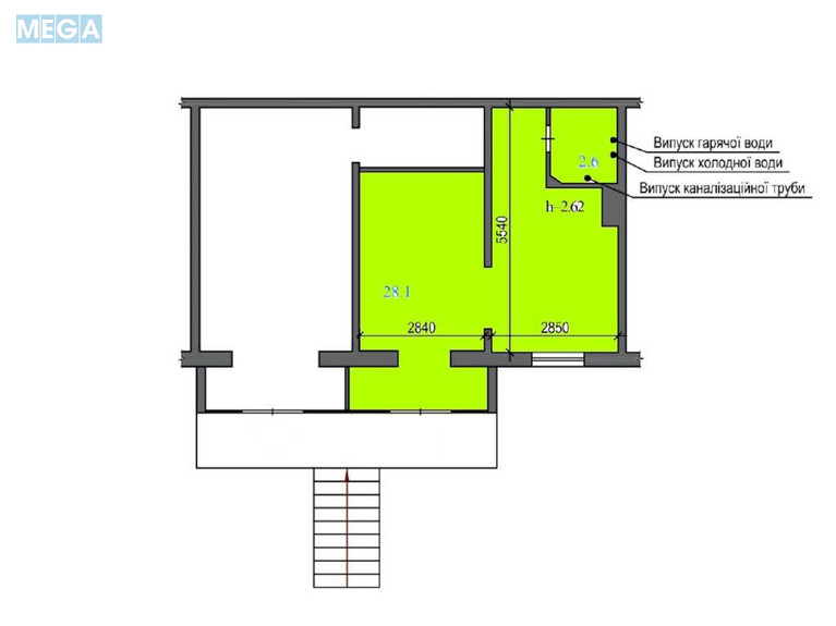
Площа приміщення становить 30,7 м#178;, ціна продажу $124,000. Розташоване на першому поверсі з фасадним виходом і окремим входом, наразі здане в оренду магазину оптики, який займається продажем окулярів, лінз та аксесуарів. Договір оренди діючий, орендар стабільний, з постійним потоком клієнтів. Висота стелі 2,62 м.

Активний житловий район з високим пішохідним трафіком. Поруч розташовані: аптеки (АНЦ, Діла), поштове відділення (Meest Express), магазини товарів для тварин (зоомаркет Milusik), кавярні (coffee bar), дитячі заклади (Даймонд Кідс, школа Perfect English) та ліцей №303. Зручний підхід для пішоходів, наявність зеленої зони та дитячого майданчика поруч.

Переваги обєкта:
Фасадне розташування з гарною видимістю
Вітринні вікна
Стабільний орендар, готовий орендний дохід
Район з активним житловим масивом і потенційними клієнтами
Готове приміщення без потреби додаткових вкладень

Це чудова можливість для інвесторів, які хочуть отримувати пасивний дохід зі стабільного бізнесу.

Не втрачайте шанс! Телефонуйте або пишіть вже сьогодні, щоб дізнатися всі деталі та домовитися про перегляд.

Ваша вигідна інвестиція в Києві!
Тип пропозиції только продажа
Призначення об’єкта магазин
Площа 30.7 кв.м
  • Продаж комерційної нерухомості, 30,70&nbsp;кв.м, под магазин, <a class="location-link" href="/kiev/" title="Недвижимость Київ">Київ</a>, <a class="location-link" href="/kiev/darnickij/" title="Недвижимость Дарницький район">Дарницький р-н</a>, Михайла Драгоманова вул., 11 (изображение 1)
  • Продаж комерційної нерухомості, 30,70&nbsp;кв.м, под магазин, <a class="location-link" href="/kiev/" title="Недвижимость Київ">Київ</a>, <a class="location-link" href="/kiev/darnickij/" title="Недвижимость Дарницький район">Дарницький р-н</a>, Михайла Драгоманова вул., 11 (изображение 2)
  • Продаж комерційної нерухомості, 30,70&nbsp;кв.м, под магазин, <a class="location-link" href="/kiev/" title="Недвижимость Київ">Київ</a>, <a class="location-link" href="/kiev/darnickij/" title="Недвижимость Дарницький район">Дарницький р-н</a>, Михайла Драгоманова вул., 11 (изображение 3)
  • Продаж комерційної нерухомості, 30,70&nbsp;кв.м, под магазин, <a class="location-link" href="/kiev/" title="Недвижимость Київ">Київ</a>, <a class="location-link" href="/kiev/darnickij/" title="Недвижимость Дарницький район">Дарницький р-н</a>, Михайла Драгоманова вул., 11 (изображение 4)
  • Продаж комерційної нерухомості, 30,70&nbsp;кв.м, под магазин, <a class="location-link" href="/kiev/" title="Недвижимость Київ">Київ</a>, <a class="location-link" href="/kiev/darnickij/" title="Недвижимость Дарницький район">Дарницький р-н</a>, Михайла Драгоманова вул., 11 (изображение 5)