Продаж комерційної нерухомості, 27 кв.м, под магазин
Київ, Дарницький р-н, Михайла Драгоманова вул., 11
Київ, Дарницький р-н, Михайла Драгоманова вул., 11
Цена продажи
110 000 $
Комиссия риелтора: коммисия риелтора не указана
Телефоны:
- +38 (098) 444‑44‑40
Отправитель:
Алексей Мурин
Без комісії для покупця!
Продається готовий орендний бізнес приміщення з орендарем Meest Express за адресою: вул. Михайла Драгоманова 11.
Основні характеристики:
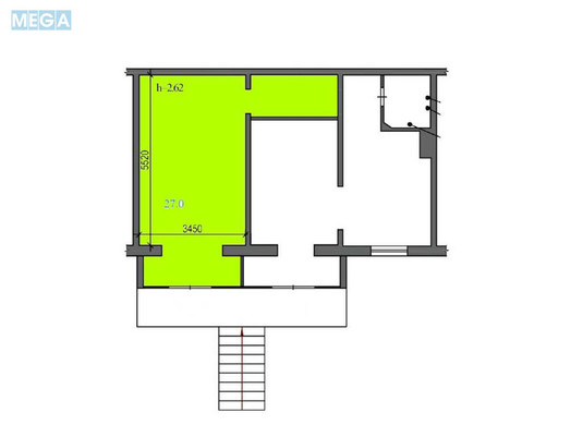
Площа приміщення становить 27 м#178;, ціна продажу $110,000. Розташоване на першому поверсі з фасадним виходом і окремим входом, воно наразі здане в оренду компанії Meest Express, що використовує простір під поштове відділення. Договір оренди діючий, із гарантованою стабільною орендною платою. Висота стелі 2,62 м.
Приміщення розташоване в активному житловому масиві поряд із густонаселеними багатоповерхівками. Поруч аптеки (АНЦ, Діла), оптики (Baldinini), магазини товарів для тварин (зоомаркет Milusik), кавярні (coffee bar), дитячі заклади (Даймонд Кідс, школа Perfect English) та ліцей №303. Є зручний підхід пішоходів та потенційних клієнтів, поруч велика зелена зона та дитячий майданчик.
Фасадне розташування
Вітринні вікна, яскравий вхід
Стабільний орендар
Готовий орендний дохід із першого дня
Район із високим пішохідним трафіком
Ідеально підходить для інвесторів, які шукають готовий пасивний дохід без додаткових вкладень у ремонт чи пошук орендаря.
Не втрачайте шанс! Телефонуйте або пишіть вже сьогодні, щоб дізнатися всі деталі та домовитися про перегляд.
Зробіть крок до своєї надійної інвестиції в Києві!
Продається готовий орендний бізнес приміщення з орендарем Meest Express за адресою: вул. Михайла Драгоманова 11.
Основні характеристики:
Площа приміщення становить 27 м#178;, ціна продажу $110,000. Розташоване на першому поверсі з фасадним виходом і окремим входом, воно наразі здане в оренду компанії Meest Express, що використовує простір під поштове відділення. Договір оренди діючий, із гарантованою стабільною орендною платою. Висота стелі 2,62 м.
Приміщення розташоване в активному житловому масиві поряд із густонаселеними багатоповерхівками. Поруч аптеки (АНЦ, Діла), оптики (Baldinini), магазини товарів для тварин (зоомаркет Milusik), кавярні (coffee bar), дитячі заклади (Даймонд Кідс, школа Perfect English) та ліцей №303. Є зручний підхід пішоходів та потенційних клієнтів, поруч велика зелена зона та дитячий майданчик.
Фасадне розташування
Вітринні вікна, яскравий вхід
Стабільний орендар
Готовий орендний дохід із першого дня
Район із високим пішохідним трафіком
Ідеально підходить для інвесторів, які шукають готовий пасивний дохід без додаткових вкладень у ремонт чи пошук орендаря.
Не втрачайте шанс! Телефонуйте або пишіть вже сьогодні, щоб дізнатися всі деталі та домовитися про перегляд.
Зробіть крок до своєї надійної інвестиції в Києві!
| Тип пропозиції | только продажа |
| Призначення об’єкта | магазин |
| Площа | 27 кв.м |

