Цена
108 000 $
Комиссия риелтора: коммисия риелтора не указана
Телефоны:
- +38 (067) 788‑01‑71
Отправитель:
Алла
Продається двоповерховий цегляний будинок 2007 рік побудови, Осокорки, поруч Дніпро.
Розташований на Садовій 80, загальна площа 115кв.м., будинок теплий , побудований з ракушняка, утеплення мінватою та обліцовочна цегла.
На першому поверсі : кухня, санвузол, камінна зала.
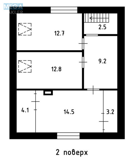
На другому поверсі: три кімнати.
Також є підвальне приміщення 60кв.м. , утеплене , сухе, можливо використовувати як сховище, погріб.
На ділянці 6 соток є окремо побудована сауна, автонавіс на 2-3 автомобіля.
Плодоносячий сад: яблука, груша, черешня, персики, алича, вишня, багато квітів.
Газ по вулиці в будинок не заведений.
Гарне місце для поживання та відпочинку, 50 метрів до пляжу на Дніпрі.
Розвинена інфраструктура: зупинка транспорту, магазин.
108000у.е.
Розташований на Садовій 80, загальна площа 115кв.м., будинок теплий , побудований з ракушняка, утеплення мінватою та обліцовочна цегла.
На першому поверсі : кухня, санвузол, камінна зала.
На другому поверсі: три кімнати.
Також є підвальне приміщення 60кв.м. , утеплене , сухе, можливо використовувати як сховище, погріб.
На ділянці 6 соток є окремо побудована сауна, автонавіс на 2-3 автомобіля.
Плодоносячий сад: яблука, груша, черешня, персики, алича, вишня, багато квітів.
Газ по вулиці в будинок не заведений.
Гарне місце для поживання та відпочинку, 50 метрів до пляжу на Дніпрі.
Розвинена інфраструктура: зупинка транспорту, магазин.
108000у.е.
| Поверхів | 2 |
| Кімнат | 4 |
| Площа будинку | 115 кв.м |
| Площа ділянки | 6 соток |
| Матеріал будинку | кирпич |













