Продаж 1 кімнатної квартири (41/16/12), 8 пов. 10 пов. будинку
Київ, Голосіївський р-н, Метрологическая ул., 107
Київ, Голосіївський р-н, Метрологическая ул., 107
Цена
60 000 $
Комиссия риелтора: коммисия риелтора не указана
Телефоны:
- +38 (095) 653‑89‑49
- +38 (063) 983‑89‑79
Отправитель:
Светлана
ВИДОВА!
Євідновлення! БЕЗ комісії!
ЖК Кришталеві Джерела,
1к. квартира 41 м2, парк Феофанія.
Голосіївський район,
вул. Метрологічна, 107.
8 поверх 10 поверхового будинку.
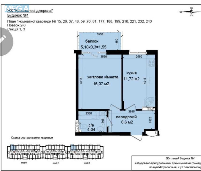
Загальна площа квартири - 41м2 .
Вікна виходять на вул. Метрологічна,
на ЗАХІД.
Стан після забудовника, без ремонту.
Балкон з кімнати, стяжка підлоги, радіатори, лічильники газовий, на електрику та на воду. Лічильник на тепло за додаткову плату (8000 грн).
7 квартир на поверсі.
Будинок введений в експлуатацію в 2 кварталі 2022 року, надано поштову адресу. Вже проживають сусіди.
Найближчі будинки у житловому комплексі до парку Феофанія.
Монолітно-каркасна технологія будівництва, газоблок, утеплювач пінопласт 10см та мінеральна вата, панорамні вікна, ліфти від європейського виробника, підвищена звуко та теплоізоляція зовнішніх стін.
Висота стелі 2,75м.
Закрита від сторонніх територія комплексу, охорона. Власна котельна. Перший нежитловий поверх під комерційні приміщення.
Ціна 60 000 у е.
Без коміс.
Оформлення на покупця.
Євідновлення! БЕЗ комісії!
ЖК Кришталеві Джерела,
1к. квартира 41 м2, парк Феофанія.
Голосіївський район,
вул. Метрологічна, 107.
8 поверх 10 поверхового будинку.
Загальна площа квартири - 41м2 .
Вікна виходять на вул. Метрологічна,
на ЗАХІД.
Стан після забудовника, без ремонту.
Балкон з кімнати, стяжка підлоги, радіатори, лічильники газовий, на електрику та на воду. Лічильник на тепло за додаткову плату (8000 грн).
7 квартир на поверсі.
Будинок введений в експлуатацію в 2 кварталі 2022 року, надано поштову адресу. Вже проживають сусіди.
Найближчі будинки у житловому комплексі до парку Феофанія.
Монолітно-каркасна технологія будівництва, газоблок, утеплювач пінопласт 10см та мінеральна вата, панорамні вікна, ліфти від європейського виробника, підвищена звуко та теплоізоляція зовнішніх стін.
Висота стелі 2,75м.
Закрита від сторонніх територія комплексу, охорона. Власна котельна. Перший нежитловий поверх під комерційні приміщення.
Ціна 60 000 у е.
Без коміс.
Оформлення на покупця.
| Кімнат | 1 кімната |
| Площа (загальна/житлова/кухня) | 41/16/12 кв. м |
| Поверх | 8 поверх |
| Поверховість будинку | 10 поверхів |




