Продаж комерційної нерухомості, 1 158 кв.м, под офис
Київ, Дарницький р-н, Александра Мишуги ул., 10
Київ, Дарницький р-н, Александра Мишуги ул., 10
Цена продажи
1 331 700 $
Комиссия риелтора: коммисия риелтора не указана
Телефоны:
- +38 (096) 050‑66‑50
Отправитель:
Владелец
ПРОДАМ нежитлові приміщення (офіси / студії / магазини) в Торгово офісному центрі Паралель. ТОЦ розташований у Дарницькому р-ні, ст.м.Позняки 70 м! Житловий масив Позняки. Мікрорайон із великою щільністю населення. Прохідне місце. Вітрини на фасад
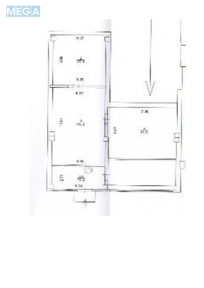
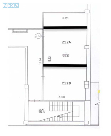
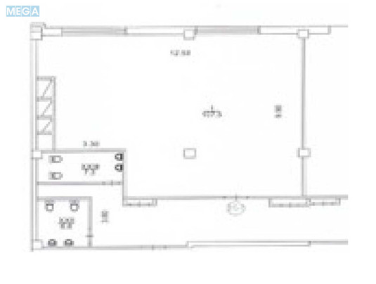
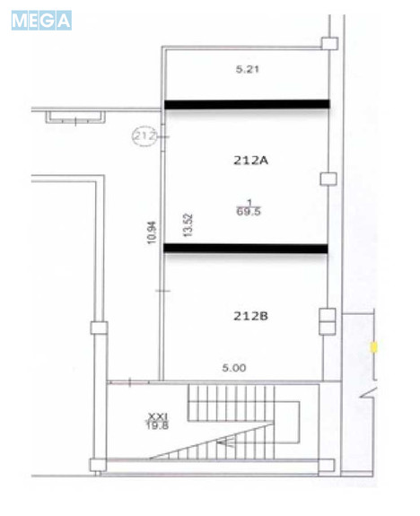
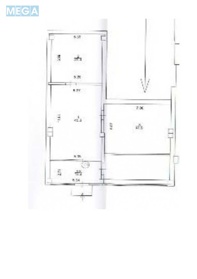
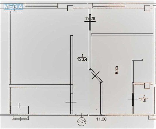
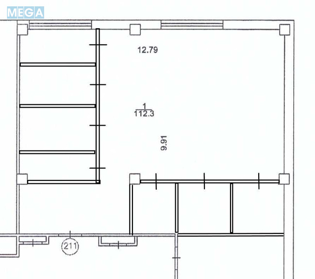
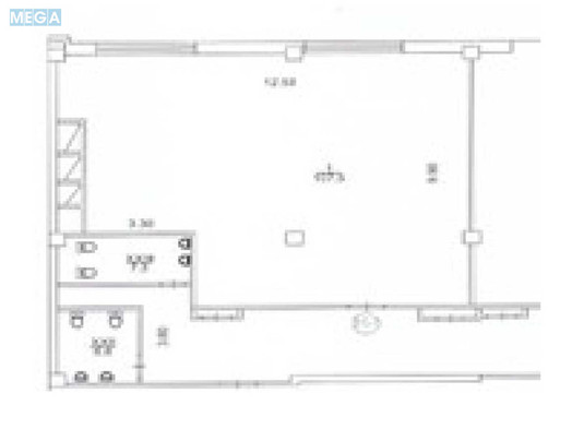
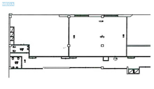
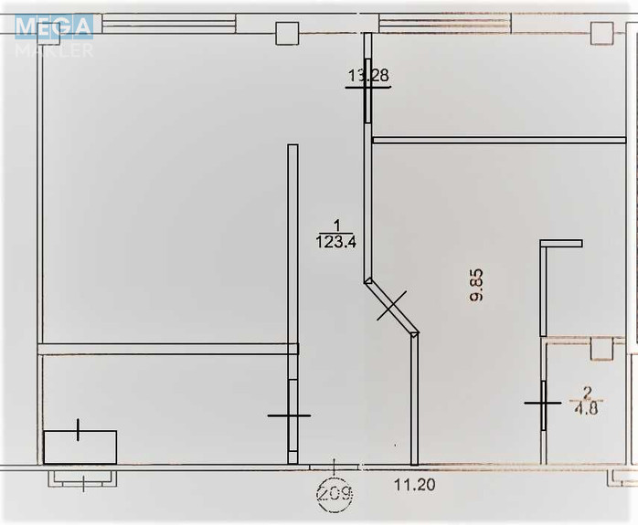
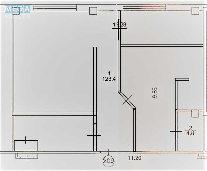
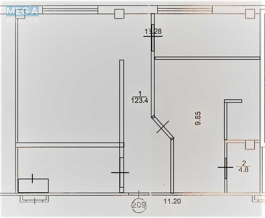
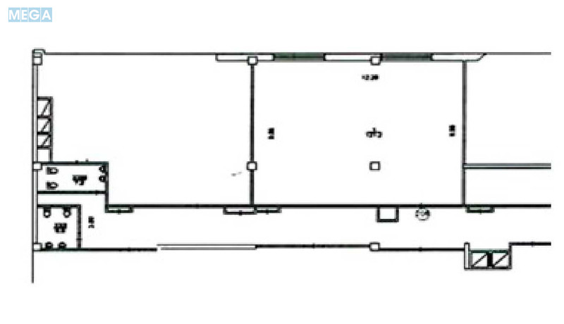
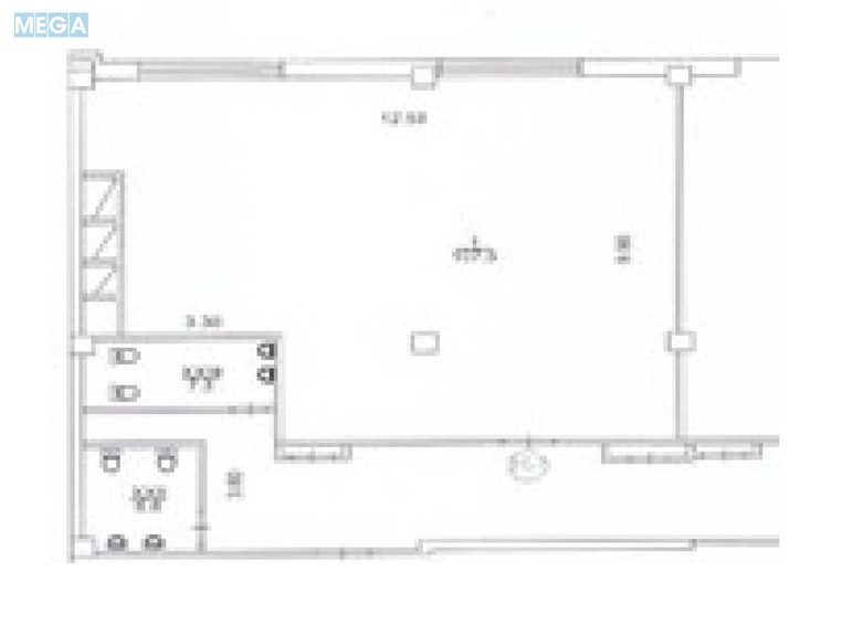
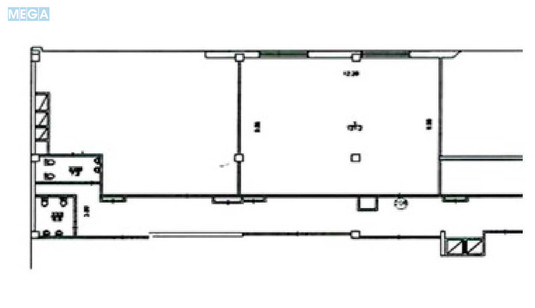
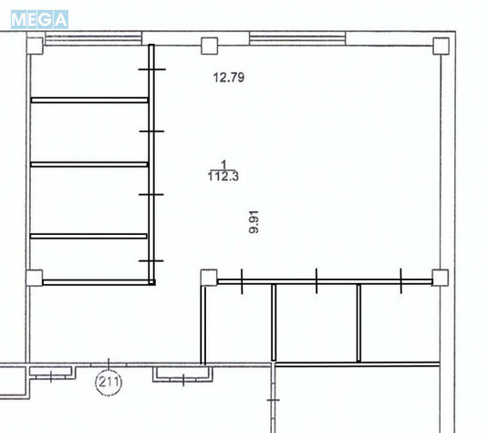
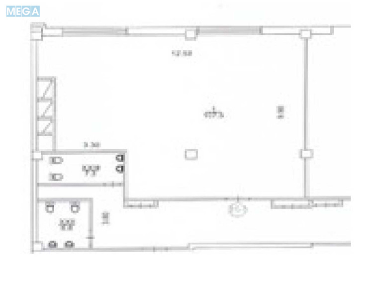
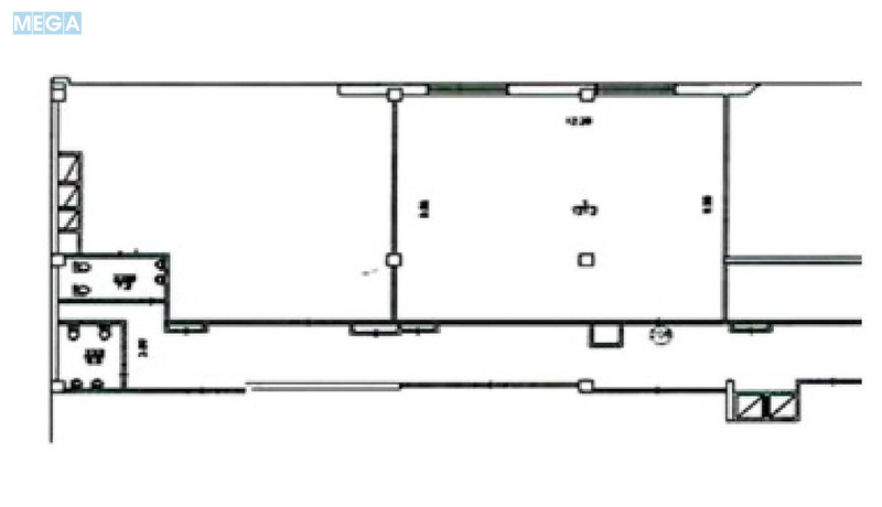
Загальна площа всіх приміщень 1158 м2, займають 1-ший та 2-гий поверхи / 4-х поверхового торгово - офісного центру. 10 приміщень на 2му поверсі площею від 51,5 м2 до 142,3 м2, 1 приміщення на 1-му поверсі площею 118,5 м2. Планування кабінетно коридорне. Сан/вузли по 2 М/Ж на кожному крилі 2-го поверху
Приміщення підключені до генератора великої потужності
Загальний вхід ч/з контрольний пункт охорони, ведеться відеоспостереження всього ТОЦ. Пожежна сигналізація, серверна кімната, кабельна мережа інтернет
На даний час всі приміщення займають орендатори. Кожне приміщення має свій ексклюзивний дизайнерський ремонт та пристосоване під свою сферу діяльності, бізнесу. А саме: салон краси, спорт зал, танцювальний зал, стоматологічна клініка, кулінарна студія, гуртки, школи, шоу-руми, офіси. У всіх приміщеннях зроблен якісний сучасний ремонт. Оснащені кондиціонерами, вентиляцією. Кожне приміщення опалюється окремо, електричними котлами опалення. Висота стелі 2,8 м.
Поруч: ТРЦ Піраміда, супермаркети, бутики, кафе, ресторани, відділення банків та пошти.
Підземний паркінг на -1му поверсі БЦ.
Вартість - 1150 usd / m2. Загальна вартість = 1.331.700 usd
Власник юридична особа, без комісії. Запрошую до співпраці ріелторів
Інформація за тел.:50
Загальна площа всіх приміщень 1158 м2, займають 1-ший та 2-гий поверхи / 4-х поверхового торгово - офісного центру. 10 приміщень на 2му поверсі площею від 51,5 м2 до 142,3 м2, 1 приміщення на 1-му поверсі площею 118,5 м2. Планування кабінетно коридорне. Сан/вузли по 2 М/Ж на кожному крилі 2-го поверху
Приміщення підключені до генератора великої потужності
Загальний вхід ч/з контрольний пункт охорони, ведеться відеоспостереження всього ТОЦ. Пожежна сигналізація, серверна кімната, кабельна мережа інтернет
На даний час всі приміщення займають орендатори. Кожне приміщення має свій ексклюзивний дизайнерський ремонт та пристосоване під свою сферу діяльності, бізнесу. А саме: салон краси, спорт зал, танцювальний зал, стоматологічна клініка, кулінарна студія, гуртки, школи, шоу-руми, офіси. У всіх приміщеннях зроблен якісний сучасний ремонт. Оснащені кондиціонерами, вентиляцією. Кожне приміщення опалюється окремо, електричними котлами опалення. Висота стелі 2,8 м.
Поруч: ТРЦ Піраміда, супермаркети, бутики, кафе, ресторани, відділення банків та пошти.
Підземний паркінг на -1му поверсі БЦ.
Вартість - 1150 usd / m2. Загальна вартість = 1.331.700 usd
Власник юридична особа, без комісії. Запрошую до співпраці ріелторів
Інформація за тел.:50
| Тип пропозиції | только продажа |
| Призначення об’єкта | офіс |
| Площа | 1158 кв.м |





