Объявление №4076842

Добавлено 26.08.2025
www.megamakler.com.ua
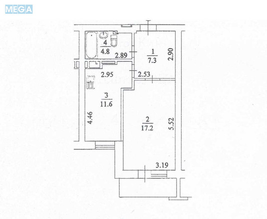
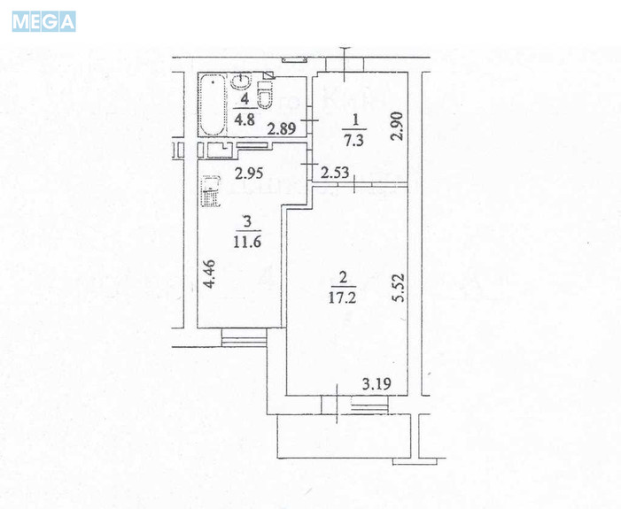
Продаж 1 кімнатної квартири (42/17/11), 4 пов. 9 пов. будинку
Київ, Солом'янський р-н, Любомира Гузара просп., 20А
Цена 68 000 $
Комиссия риелтора: 3
Телефоны:
  • +38 (097) 692‑80‑00
Отправитель: Тетяна
1 кімн. НАУ проспект Любомира Гузара, 20-А (Космонавта Комарова). Поверх 4/9 монолітно-каркасного будинку, 42.2/17,2/11,6, ламінат, санвузол суміжний, теплолічильник, холодильник, бойлер, пральна машинка, варильна поверхня, витяжка, мебльована. Поряд швидкісний трамвай, НАУ, КПІ, ринок, Медмістечко, супермаркети АТБ, Фора, парк Орлятко, Відрадний, Мамаєва Слобода, SportLife з басейном. Відмінна транспортна розвязка, метро Берестейська, Шулявська, Політехнічний інститут. Комісія.
Кімнат 1 кімната
Площа (загальна/житлова/кухня) 42/17/11 кв. м
Поверх 4 поверх
Поверховість будинку 9 поверхів
  • Продаж 1 кімнатної квартири (42/17/11), 4 пов. 9 пов. будинку, <a class="location-link" href="/kiev/" title="Недвижимость Київ">Київ</a>, <a class="location-link" href="/kiev/solomenskij/" title="Недвижимость Солом'янський район">Солом'янський р-н</a>, Любомира Гузара просп., 20А (изображение 1)
  • Продаж 1 кімнатної квартири (42/17/11), 4 пов. 9 пов. будинку, <a class="location-link" href="/kiev/" title="Недвижимость Київ">Київ</a>, <a class="location-link" href="/kiev/solomenskij/" title="Недвижимость Солом'янський район">Солом'янський р-н</a>, Любомира Гузара просп., 20А (изображение 2)
  • Продаж 1 кімнатної квартири (42/17/11), 4 пов. 9 пов. будинку, <a class="location-link" href="/kiev/" title="Недвижимость Київ">Київ</a>, <a class="location-link" href="/kiev/solomenskij/" title="Недвижимость Солом'янський район">Солом'янський р-н</a>, Любомира Гузара просп., 20А (изображение 3)
  • Продаж 1 кімнатної квартири (42/17/11), 4 пов. 9 пов. будинку, <a class="location-link" href="/kiev/" title="Недвижимость Київ">Київ</a>, <a class="location-link" href="/kiev/solomenskij/" title="Недвижимость Солом'янський район">Солом'янський р-н</a>, Любомира Гузара просп., 20А (изображение 4)
  • Продаж 1 кімнатної квартири (42/17/11), 4 пов. 9 пов. будинку, <a class="location-link" href="/kiev/" title="Недвижимость Київ">Київ</a>, <a class="location-link" href="/kiev/solomenskij/" title="Недвижимость Солом'янський район">Солом'янський р-н</a>, Любомира Гузара просп., 20А (изображение 5)
  • Продаж 1 кімнатної квартири (42/17/11), 4 пов. 9 пов. будинку, <a class="location-link" href="/kiev/" title="Недвижимость Київ">Київ</a>, <a class="location-link" href="/kiev/solomenskij/" title="Недвижимость Солом'янський район">Солом'янський р-н</a>, Любомира Гузара просп., 20А (изображение 6)
  • Продаж 1 кімнатної квартири (42/17/11), 4 пов. 9 пов. будинку, <a class="location-link" href="/kiev/" title="Недвижимость Київ">Київ</a>, <a class="location-link" href="/kiev/solomenskij/" title="Недвижимость Солом'янський район">Солом'янський р-н</a>, Любомира Гузара просп., 20А (изображение 7)
  • Продаж 1 кімнатної квартири (42/17/11), 4 пов. 9 пов. будинку, <a class="location-link" href="/kiev/" title="Недвижимость Київ">Київ</a>, <a class="location-link" href="/kiev/solomenskij/" title="Недвижимость Солом'янський район">Солом'янський р-н</a>, Любомира Гузара просп., 20А (изображение 8)
  • Продаж 1 кімнатної квартири (42/17/11), 4 пов. 9 пов. будинку, <a class="location-link" href="/kiev/" title="Недвижимость Київ">Київ</a>, <a class="location-link" href="/kiev/solomenskij/" title="Недвижимость Солом'янський район">Солом'янський р-н</a>, Любомира Гузара просп., 20А (изображение 9)
  • Продаж 1 кімнатної квартири (42/17/11), 4 пов. 9 пов. будинку, <a class="location-link" href="/kiev/" title="Недвижимость Київ">Київ</a>, <a class="location-link" href="/kiev/solomenskij/" title="Недвижимость Солом'янський район">Солом'янський р-н</a>, Любомира Гузара просп., 20А (изображение 10)
  • Продаж 1 кімнатної квартири (42/17/11), 4 пов. 9 пов. будинку, <a class="location-link" href="/kiev/" title="Недвижимость Київ">Київ</a>, <a class="location-link" href="/kiev/solomenskij/" title="Недвижимость Солом'янський район">Солом'янський р-н</a>, Любомира Гузара просп., 20А (изображение 11)
  • Продаж 1 кімнатної квартири (42/17/11), 4 пов. 9 пов. будинку, <a class="location-link" href="/kiev/" title="Недвижимость Київ">Київ</a>, <a class="location-link" href="/kiev/solomenskij/" title="Недвижимость Солом'янський район">Солом'янський р-н</a>, Любомира Гузара просп., 20А (изображение 12)
  • Продаж 1 кімнатної квартири (42/17/11), 4 пов. 9 пов. будинку, <a class="location-link" href="/kiev/" title="Недвижимость Київ">Київ</a>, <a class="location-link" href="/kiev/solomenskij/" title="Недвижимость Солом'янський район">Солом'янський р-н</a>, Любомира Гузара просп., 20А (изображение 13)
  • Продаж 1 кімнатної квартири (42/17/11), 4 пов. 9 пов. будинку, <a class="location-link" href="/kiev/" title="Недвижимость Київ">Київ</a>, <a class="location-link" href="/kiev/solomenskij/" title="Недвижимость Солом'янський район">Солом'янський р-н</a>, Любомира Гузара просп., 20А (изображение 14)
  • Продаж 1 кімнатної квартири (42/17/11), 4 пов. 9 пов. будинку, <a class="location-link" href="/kiev/" title="Недвижимость Київ">Київ</a>, <a class="location-link" href="/kiev/solomenskij/" title="Недвижимость Солом'янський район">Солом'янський р-н</a>, Любомира Гузара просп., 20А (изображение 15)
  • Продаж 1 кімнатної квартири (42/17/11), 4 пов. 9 пов. будинку, <a class="location-link" href="/kiev/" title="Недвижимость Київ">Київ</a>, <a class="location-link" href="/kiev/solomenskij/" title="Недвижимость Солом'янський район">Солом'янський р-н</a>, Любомира Гузара просп., 20А (изображение 16)