Цена аренды
25 000 грн./мес. за все
Комиссия риелтора: коммисия риелтора не указана
Телефоны:
- +38 (093) 507‑46‑89
- +38 (063) 673‑94‑47
Отправитель:
Станіслав
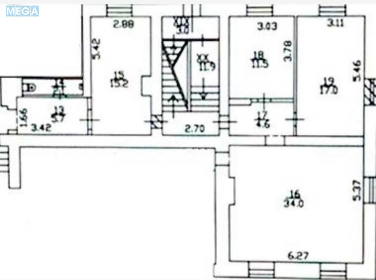
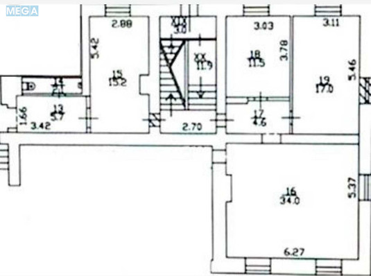
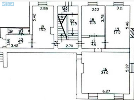
Приміщення 95 кв.м вулиця Освіти 10, перший поверх, вхід через підїзд. Займає весь 1 поверх. Фасадні вікна, зручно для розміщення вивіски. У дворі є місце для паркування авто. Таж є підвальне приміщення для розміщення складу. Зручна транспортна розвязка, поряд зупинка транспорту, Севастопольська площа 10 хвилин пішки. Перегляди за домовленістю.
| Тип пропозиції | только аренда |
| Призначення об’єкта | офіс |
| Площа | 90 кв.м |




