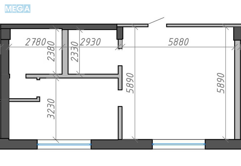
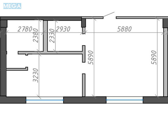
Оренда комерційної нерухомості, 70 кв.м, под склад
Київ, Дніпровський р-н, Евгения Сверстюка ул., 11б
Київ, Дніпровський р-н, Евгения Сверстюка ул., 11б
Цена аренды
12 600 грн./мес. за все
Комиссия риелтора: коммисия риелтора не указана
Телефоны:
- +38 (097) 399‑31‑26
Отправитель:
Леся
Є ГЕНЕРАТОР та УКРИТТЯ!
На території НОВА ПОШТА та ЕПІЦЕНТР.
ОРЕНДА ТЕХНІЧНОГО ПРИМІЩЕННЯ, СКЛАДУ- 70м2 на цокольному поверсі в БЦ Армарис.
УНІКАЛЬНА ЛОКАЦІЯ: 2 хвилини до метро, 20 хвилин на авто до центру міста, зручна транспортна розвязка.
ІНФРАСТРУКТУРА БІЗНЕС ЦЕНТРУ: Нова Пошта, ЕПІЦЕНТР, КредоБанк, клініка MyDerm, кондитерська MAYA CAKE, кімнати для переговорів та тренінгів, можливість зняти окреме робоче місце , smart-офіси, невеликі складські приміщення, кафе, фітнес- зал , спорт зони, салон краси та багато іншого.
ЗОВНІШНЯ ІНФРАСТРУКТУРА: McDonalds. NOVUS, Євразія, Пузата Хата, банки, нотаріуси, кафе, ресторани, піцерії, магазини, ринок, аптеки.
СЕРВІС-УПРАВЛІННЯ: безперебійне енерго- і водопостачання ( ПІДКЛЮЧЕНИЙ ПОТУЖНИЙ ГЕНЕРАТОР на весь Бізнес Центр) , інтернет- провайдери на вибір, паркомісця під охороною та відеонаглядом , клінінг, технічне обслуговування, цілодобовий пост охорони, системи контроля доступу , юридичні адреси з адмініструванням.
Додатково оплачуються комунальні та експлуатаційні послуги. БЕЗ ПДВ.
Леся
На території НОВА ПОШТА та ЕПІЦЕНТР.
ОРЕНДА ТЕХНІЧНОГО ПРИМІЩЕННЯ, СКЛАДУ- 70м2 на цокольному поверсі в БЦ Армарис.
УНІКАЛЬНА ЛОКАЦІЯ: 2 хвилини до метро, 20 хвилин на авто до центру міста, зручна транспортна розвязка.
ІНФРАСТРУКТУРА БІЗНЕС ЦЕНТРУ: Нова Пошта, ЕПІЦЕНТР, КредоБанк, клініка MyDerm, кондитерська MAYA CAKE, кімнати для переговорів та тренінгів, можливість зняти окреме робоче місце , smart-офіси, невеликі складські приміщення, кафе, фітнес- зал , спорт зони, салон краси та багато іншого.
ЗОВНІШНЯ ІНФРАСТРУКТУРА: McDonalds. NOVUS, Євразія, Пузата Хата, банки, нотаріуси, кафе, ресторани, піцерії, магазини, ринок, аптеки.
СЕРВІС-УПРАВЛІННЯ: безперебійне енерго- і водопостачання ( ПІДКЛЮЧЕНИЙ ПОТУЖНИЙ ГЕНЕРАТОР на весь Бізнес Центр) , інтернет- провайдери на вибір, паркомісця під охороною та відеонаглядом , клінінг, технічне обслуговування, цілодобовий пост охорони, системи контроля доступу , юридичні адреси з адмініструванням.
Додатково оплачуються комунальні та експлуатаційні послуги. БЕЗ ПДВ.
Леся
| Тип пропозиції | только аренда |
| Призначення об’єкта | склад |
| Площа | 70 кв.м |

