Объявление №4078139

Добавлено 29.09.2025
www.megamakler.com.ua
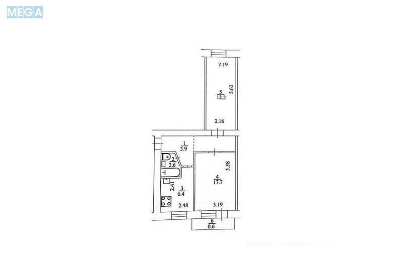
Продаж 2 кімнатної квартири (43,6/29,9/6,4), 4 пов. 5 пов. будинку
Київ, Шевченківський р-н, Довнар-Запольского ул., 10
Цена 48 000 $
Комиссия риелтора: коммисия риелтора не указана
Телефоны:
  • +38 (099) 764‑10‑02
Отправитель: Александр
Продаж квартири по вул. Довнар-Запольського, 10. 4 поверх п’ятиповерхівки. Не кутова, суха та тепла. Має роздільне планування. Кімнати 12,2, та 17,7 кв. м. Загальна площа 43,6 кв. м. Санвузол суміжний. На підлозі паркет. Встановлені склопакети. Балкон засклений та обшитий вагонкою. Встановлені лічильники на світло та воду. Система опалення централізована, є газ. Будинок цегляний. У затишному зеленому дворі є парковка для мешканців будинку. Поруч вся необхідна інфраструктура для комфортного життя. До метро Лукянівська 7 хвилин пішки, зупинка 3 видів транспорту поруч. Встановлені додаткові бронедвері. Проведене кабельне та цифрове ТБ, швидкісний інтернет. Квартира повністю звільнена від меблів та готова для ремонту. Ціна: 48 000 у. о. Продаж від власника. Представник без комісії Олександр.
Кімнат 2 кімнати
Площа (загальна/житлова/кухня) 43,6/29,9/6,4 кв. м
Поверх 4 поверх
Поверховість будинку 5 поверхів
  • Продаж 2 кімнатної квартири (43,6/29,9/6,4), 4 пов. 5 пов. будинку, <a class="location-link" href="/kiev/" title="Недвижимость Київ">Київ</a>, <a class="location-link" href="/kiev/shevchenkovskij/" title="Недвижимость Шевченківський район">Шевченківський р-н</a>, Довнар-Запольского ул., 10 (изображение 1)
  • Продаж 2 кімнатної квартири (43,6/29,9/6,4), 4 пов. 5 пов. будинку, <a class="location-link" href="/kiev/" title="Недвижимость Київ">Київ</a>, <a class="location-link" href="/kiev/shevchenkovskij/" title="Недвижимость Шевченківський район">Шевченківський р-н</a>, Довнар-Запольского ул., 10 (изображение 2)
  • Продаж 2 кімнатної квартири (43,6/29,9/6,4), 4 пов. 5 пов. будинку, <a class="location-link" href="/kiev/" title="Недвижимость Київ">Київ</a>, <a class="location-link" href="/kiev/shevchenkovskij/" title="Недвижимость Шевченківський район">Шевченківський р-н</a>, Довнар-Запольского ул., 10 (изображение 3)
  • Продаж 2 кімнатної квартири (43,6/29,9/6,4), 4 пов. 5 пов. будинку, <a class="location-link" href="/kiev/" title="Недвижимость Київ">Київ</a>, <a class="location-link" href="/kiev/shevchenkovskij/" title="Недвижимость Шевченківський район">Шевченківський р-н</a>, Довнар-Запольского ул., 10 (изображение 4)
  • Продаж 2 кімнатної квартири (43,6/29,9/6,4), 4 пов. 5 пов. будинку, <a class="location-link" href="/kiev/" title="Недвижимость Київ">Київ</a>, <a class="location-link" href="/kiev/shevchenkovskij/" title="Недвижимость Шевченківський район">Шевченківський р-н</a>, Довнар-Запольского ул., 10 (изображение 5)
  • Продаж 2 кімнатної квартири (43,6/29,9/6,4), 4 пов. 5 пов. будинку, <a class="location-link" href="/kiev/" title="Недвижимость Київ">Київ</a>, <a class="location-link" href="/kiev/shevchenkovskij/" title="Недвижимость Шевченківський район">Шевченківський р-н</a>, Довнар-Запольского ул., 10 (изображение 6)
  • Продаж 2 кімнатної квартири (43,6/29,9/6,4), 4 пов. 5 пов. будинку, <a class="location-link" href="/kiev/" title="Недвижимость Київ">Київ</a>, <a class="location-link" href="/kiev/shevchenkovskij/" title="Недвижимость Шевченківський район">Шевченківський р-н</a>, Довнар-Запольского ул., 10 (изображение 7)
  • Продаж 2 кімнатної квартири (43,6/29,9/6,4), 4 пов. 5 пов. будинку, <a class="location-link" href="/kiev/" title="Недвижимость Київ">Київ</a>, <a class="location-link" href="/kiev/shevchenkovskij/" title="Недвижимость Шевченківський район">Шевченківський р-н</a>, Довнар-Запольского ул., 10 (изображение 8)
  • Продаж 2 кімнатної квартири (43,6/29,9/6,4), 4 пов. 5 пов. будинку, <a class="location-link" href="/kiev/" title="Недвижимость Київ">Київ</a>, <a class="location-link" href="/kiev/shevchenkovskij/" title="Недвижимость Шевченківський район">Шевченківський р-н</a>, Довнар-Запольского ул., 10 (изображение 9)
  • Продаж 2 кімнатної квартири (43,6/29,9/6,4), 4 пов. 5 пов. будинку, <a class="location-link" href="/kiev/" title="Недвижимость Київ">Київ</a>, <a class="location-link" href="/kiev/shevchenkovskij/" title="Недвижимость Шевченківський район">Шевченківський р-н</a>, Довнар-Запольского ул., 10 (изображение 10)
  • Продаж 2 кімнатної квартири (43,6/29,9/6,4), 4 пов. 5 пов. будинку, <a class="location-link" href="/kiev/" title="Недвижимость Київ">Київ</a>, <a class="location-link" href="/kiev/shevchenkovskij/" title="Недвижимость Шевченківський район">Шевченківський р-н</a>, Довнар-Запольского ул., 10 (изображение 11)
  • Продаж 2 кімнатної квартири (43,6/29,9/6,4), 4 пов. 5 пов. будинку, <a class="location-link" href="/kiev/" title="Недвижимость Київ">Київ</a>, <a class="location-link" href="/kiev/shevchenkovskij/" title="Недвижимость Шевченківський район">Шевченківський р-н</a>, Довнар-Запольского ул., 10 (изображение 12)
  • Продаж 2 кімнатної квартири (43,6/29,9/6,4), 4 пов. 5 пов. будинку, <a class="location-link" href="/kiev/" title="Недвижимость Київ">Київ</a>, <a class="location-link" href="/kiev/shevchenkovskij/" title="Недвижимость Шевченківський район">Шевченківський р-н</a>, Довнар-Запольского ул., 10 (изображение 13)
  • Продаж 2 кімнатної квартири (43,6/29,9/6,4), 4 пов. 5 пов. будинку, <a class="location-link" href="/kiev/" title="Недвижимость Київ">Київ</a>, <a class="location-link" href="/kiev/shevchenkovskij/" title="Недвижимость Шевченківський район">Шевченківський р-н</a>, Довнар-Запольского ул., 10 (изображение 14)
  • Продаж 2 кімнатної квартири (43,6/29,9/6,4), 4 пов. 5 пов. будинку, <a class="location-link" href="/kiev/" title="Недвижимость Київ">Київ</a>, <a class="location-link" href="/kiev/shevchenkovskij/" title="Недвижимость Шевченківський район">Шевченківський р-н</a>, Довнар-Запольского ул., 10 (изображение 15)
  • Продаж 2 кімнатної квартири (43,6/29,9/6,4), 4 пов. 5 пов. будинку, <a class="location-link" href="/kiev/" title="Недвижимость Київ">Київ</a>, <a class="location-link" href="/kiev/shevchenkovskij/" title="Недвижимость Шевченківський район">Шевченківський р-н</a>, Довнар-Запольского ул., 10 (изображение 16)
  • Продаж 2 кімнатної квартири (43,6/29,9/6,4), 4 пов. 5 пов. будинку, <a class="location-link" href="/kiev/" title="Недвижимость Київ">Київ</a>, <a class="location-link" href="/kiev/shevchenkovskij/" title="Недвижимость Шевченківський район">Шевченківський р-н</a>, Довнар-Запольского ул., 10 (изображение 17)