Цена аренды
350 грн./мес. за кв. м
Комиссия риелтора: коммисия риелтора не указана
Телефоны:
- +38 (099) 848‑31‑86
Отправитель:
Rent SG
тел.
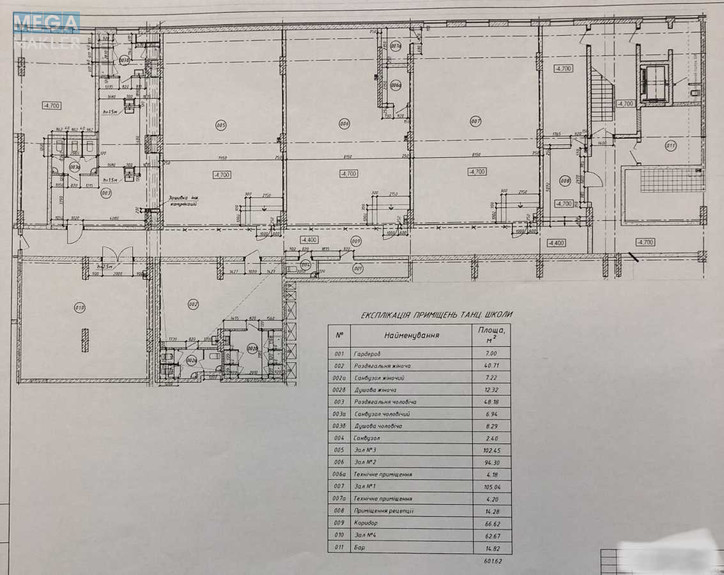
Оренда приміщення з ремонтом 601,62м під любий вид діяльності: офіс, школу танців, йоги, фітнесу, beauty індустрії, та інші види комерційної діяльності, в OLYMPIC PARK в 3 хвилинах від ст. М Бориспільська, вул., Бажана, 17.
ХАРАКТЕРИСТИКИ ПРИМІЩЕННЯ:
- поверх: цоколь
- загальна площа - 601,62м
- вільне планування, без ремонту.
- вистота приміщення - 3,7 м.
- вікна - двокамерні склопакети.
- откремий вхід.
Також є можливість провести ремонтні роботи відповідно до побажань, або надамо канікули на період проведення ремонтних робіт. Кожен випадок ми обговорюється окремо, аби забезпечити максимально комфортні умови.
Розвинена інфраструктура: дитячий садок, дитяча школа, ТЦ, АТБ, супермаркети, аптеки, кафе, магазини, поряд метро.
ОРЕНДНА СТАВКА: 350грн./кв.м ТОРГ!
Комунальні платежі за фактом соживання.
Оренда приміщення з ремонтом 601,62м під любий вид діяльності: офіс, школу танців, йоги, фітнесу, beauty індустрії, та інші види комерційної діяльності, в OLYMPIC PARK в 3 хвилинах від ст. М Бориспільська, вул., Бажана, 17.
ХАРАКТЕРИСТИКИ ПРИМІЩЕННЯ:
- поверх: цоколь
- загальна площа - 601,62м
- вільне планування, без ремонту.
- вистота приміщення - 3,7 м.
- вікна - двокамерні склопакети.
- откремий вхід.
Також є можливість провести ремонтні роботи відповідно до побажань, або надамо канікули на період проведення ремонтних робіт. Кожен випадок ми обговорюється окремо, аби забезпечити максимально комфортні умови.
Розвинена інфраструктура: дитячий садок, дитяча школа, ТЦ, АТБ, супермаркети, аптеки, кафе, магазини, поряд метро.
ОРЕНДНА СТАВКА: 350грн./кв.м ТОРГ!
Комунальні платежі за фактом соживання.
| Тип пропозиції | только аренда |
| Тип об’єкта | окрема будівля/будівля |
| Площа | 600 кв.м |








