Цена аренды
15 990 $/мес. за все
Комиссия риелтора: коммисия риелтора не указана
Телефоны:
- +38 (098) 444‑44‑40
Отправитель:
Алексей Мурин
Без комісії!
Здається офісна будівля в центрі Києва, вул. Шота Руставелі, 18А
До вашої уваги окрема офісна будівля із сучасним ремонтом та якісною інженерією, яка ідеально підійде для бізнесу, що цінує престижне розташування, автономність та комфорт. Обєкт розташований у самому серці Києва на вулиці Шота Руставелі, 18А. Це Печерський район, буквально за хвилину пішки від станцій метро Палац Спорту та Площа Українських Героїв.
Будівля знаходиться на другій лінії від дороги, що забезпечує тишу та затишок, при цьому зберігаючи чудову доступність. У безпосередній близькості Бессарабський ринок, бізнес-центр Гулівер, парк імені Шевченка, а також численні кафе, ресторани та сервісні заклади. Це сформоване ділове середовище, яке сприяє розвитку компаній різного профілю.
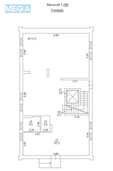
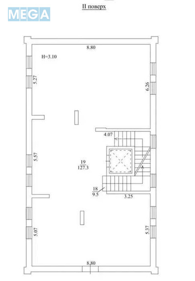
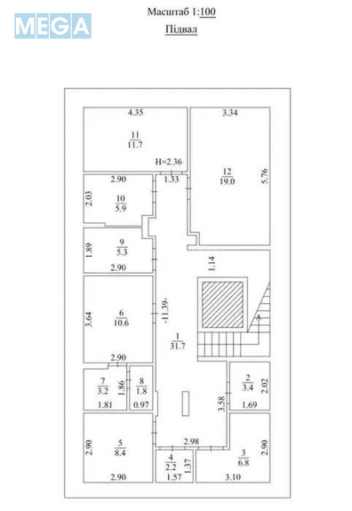
Будівля складається з пяти повноцінних поверхів та цокольного рівня з ремонтом. Загальна площа 800 м#178;. Кожен поверх це світлий open-space простір із вікнами, високими стелями (понад 3 метри) та двома санвузлами. Перший поверх має виводи під кухонну зону. Усі приміщення оснащені системами приточно-витяжної вентиляції, кондиціонування та обігріву. Опалення електричне. Додатково встановлено генератор потужністю 50 кВт.
У будівлю заведено 90 кВт електропостачання, що дає змогу розміщувати енергоємні офісні або технічні процеси. Також є сучасний ліфт та повноцінний підвал, який може виконувати функцію укриття.
За домовленістю можлива оренда паркомісць на території.
Ця локація ідеально підійде для IT-компанії, консалтингового бізнесу, школи, креативного хабу, корпоративного навчального центру або шоуруму. Готова до заїзду і не потребує жодних додаткових вкладень.
Телефонуйте, щоб домовитися про перегляд ця будівля може стати новим ефективним простором для розвитку вашого бізнесу.
Здається офісна будівля в центрі Києва, вул. Шота Руставелі, 18А
До вашої уваги окрема офісна будівля із сучасним ремонтом та якісною інженерією, яка ідеально підійде для бізнесу, що цінує престижне розташування, автономність та комфорт. Обєкт розташований у самому серці Києва на вулиці Шота Руставелі, 18А. Це Печерський район, буквально за хвилину пішки від станцій метро Палац Спорту та Площа Українських Героїв.
Будівля знаходиться на другій лінії від дороги, що забезпечує тишу та затишок, при цьому зберігаючи чудову доступність. У безпосередній близькості Бессарабський ринок, бізнес-центр Гулівер, парк імені Шевченка, а також численні кафе, ресторани та сервісні заклади. Це сформоване ділове середовище, яке сприяє розвитку компаній різного профілю.
Будівля складається з пяти повноцінних поверхів та цокольного рівня з ремонтом. Загальна площа 800 м#178;. Кожен поверх це світлий open-space простір із вікнами, високими стелями (понад 3 метри) та двома санвузлами. Перший поверх має виводи під кухонну зону. Усі приміщення оснащені системами приточно-витяжної вентиляції, кондиціонування та обігріву. Опалення електричне. Додатково встановлено генератор потужністю 50 кВт.
У будівлю заведено 90 кВт електропостачання, що дає змогу розміщувати енергоємні офісні або технічні процеси. Також є сучасний ліфт та повноцінний підвал, який може виконувати функцію укриття.
За домовленістю можлива оренда паркомісць на території.
Ця локація ідеально підійде для IT-компанії, консалтингового бізнесу, школи, креативного хабу, корпоративного навчального центру або шоуруму. Готова до заїзду і не потребує жодних додаткових вкладень.
Телефонуйте, щоб домовитися про перегляд ця будівля може стати новим ефективним простором для розвитку вашого бізнесу.
| Тип пропозиції | только аренда |
| Призначення об’єкта | офіс |
| Площа | 800 кв.м |




