Продаж 4 кімнатної квартири (228/?/23), 5 пов. 5 пов. будинку
Київ, Печерський р-н, Глазунова вул., 13
Київ, Печерський р-н, Глазунова вул., 13
Цена
1 200 000 $
Комиссия риелтора: коммисия риелтора не указана
Телефоны:
- +38 (098) 444‑44‑40
Отправитель:
Алексей Мурин
Без комісії для покупця!
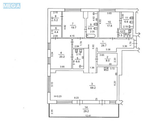
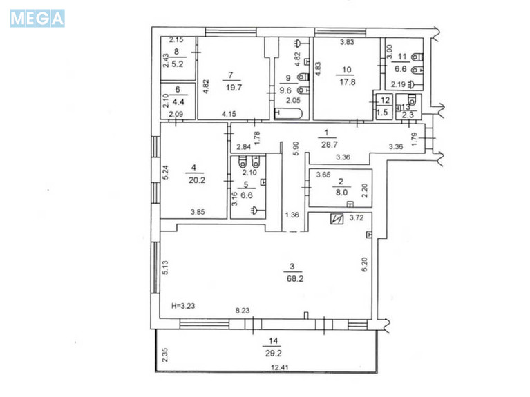
Пентхаус мрії в серці Печерська за адресою Глазунова (вул. Дмитра Годзенка) 13, площею 228 кв.м з власною терасою і панорамним видом, від якого перехоплює подих
Уявіть: ви прокидаєтеся під звуки тиші, виходите на простору терасу 30 м2, де перед вами відкривається панорама Печерська, двір Бульвару Фонтанів і дзеркальна гладь басейну Taryan Towers.
Клубний будинок всього на 10 квартир, закрита територія, що охороняється, відеоспостереження 24/7, власний басейн 25 метрів тільки для мешканців тут панує атмосфера приватності, статусу і спокою.
Квартира займає найкращий 5-й, останній поверх комплексу.
Площа розподілена ідеально:
3 спальні, кожна зі своєю гардеробною і санвузлом;
простора вітальня, обєднана з кухнею прозорими розсувними дверима, що створюють відчуття легкості і простору;
окрема пральня і технічна кімната з системою управління кліматом, вентиляцією і обігрівом.
Деталі, що підкреслюють рівень:
система водоочищення США і проточно-витяжна вентиляція Daikin;
побутова техніка Bosch, холодильник Liebherr, витяжка Elica;
кухня Aster (Італія);
сантехніка Graff, Villeroy Boch, Cielo;
меблі Vittoria Frigerio (Італія) ручна робота, рівень бутик-готелів Мілана;
система захисту від протікання Neptun.
Ремонт виконаний в сучасному люкс-дизайні з використанням натуральних матеріалів. Абсолютно нова квартира, в якій ніхто не жив. Повністю мебльована і готова до заселення.
Додатково:
2 паркувальних місця входять у вартість;
доступність метро 15 хв пішки до станцій Звіринецька, Либідська та Палац Україна.
Це не просто нерухомість.
Це рівень життя, який підкреслює смак, статус і внутрішню гармонію власника.
Така пропозиція зявляється один раз і зникає назавжди.
Хочеш побачити світанок над Печерськом зі своєї тераси?
Зателефонуй. Ця квартира чекає тільки на тебе.
ЖК Richmond
ЖК Бульвар Фонтанів
ЖК Taryan Towers
ЖК Французький квартал
ЖК TRIIINITY
ЖК Престиж Холл
ЖК Greenville
ЖК Новопечерський Квартал
ЖК Панорама
Пентхаус мрії в серці Печерська за адресою Глазунова (вул. Дмитра Годзенка) 13, площею 228 кв.м з власною терасою і панорамним видом, від якого перехоплює подих
Уявіть: ви прокидаєтеся під звуки тиші, виходите на простору терасу 30 м2, де перед вами відкривається панорама Печерська, двір Бульвару Фонтанів і дзеркальна гладь басейну Taryan Towers.
Клубний будинок всього на 10 квартир, закрита територія, що охороняється, відеоспостереження 24/7, власний басейн 25 метрів тільки для мешканців тут панує атмосфера приватності, статусу і спокою.
Квартира займає найкращий 5-й, останній поверх комплексу.
Площа розподілена ідеально:
3 спальні, кожна зі своєю гардеробною і санвузлом;
простора вітальня, обєднана з кухнею прозорими розсувними дверима, що створюють відчуття легкості і простору;
окрема пральня і технічна кімната з системою управління кліматом, вентиляцією і обігрівом.
Деталі, що підкреслюють рівень:
система водоочищення США і проточно-витяжна вентиляція Daikin;
побутова техніка Bosch, холодильник Liebherr, витяжка Elica;
кухня Aster (Італія);
сантехніка Graff, Villeroy Boch, Cielo;
меблі Vittoria Frigerio (Італія) ручна робота, рівень бутик-готелів Мілана;
система захисту від протікання Neptun.
Ремонт виконаний в сучасному люкс-дизайні з використанням натуральних матеріалів. Абсолютно нова квартира, в якій ніхто не жив. Повністю мебльована і готова до заселення.
Додатково:
2 паркувальних місця входять у вартість;
доступність метро 15 хв пішки до станцій Звіринецька, Либідська та Палац Україна.
Це не просто нерухомість.
Це рівень життя, який підкреслює смак, статус і внутрішню гармонію власника.
Така пропозиція зявляється один раз і зникає назавжди.
Хочеш побачити світанок над Печерськом зі своєї тераси?
Зателефонуй. Ця квартира чекає тільки на тебе.
ЖК Richmond
ЖК Бульвар Фонтанів
ЖК Taryan Towers
ЖК Французький квартал
ЖК TRIIINITY
ЖК Престиж Холл
ЖК Greenville
ЖК Новопечерський Квартал
ЖК Панорама
| Кімнат | 4 кімнати |
| Площа (загальна/житлова/кухня) | 228/?/23 кв. м |
| Поверх | 5 поверх, останній |
| Поверховість будинку | 5 поверхів |









