Объявление №4079397

Добавлено 05.11.2025
www.megamakler.com.ua
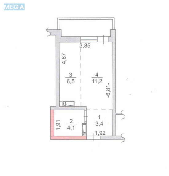
Продаж 1 кімнатної квартири (27/11/6), 7 пов. 25 пов. будинку
Київ, Голосіївський р-н, Академика Глушкова просп., 42
Цена 38 000 $
Комиссия риелтора: коммисия риелтора не указана
Телефоны:
  • +38 (067) 158‑61‑64
Отправитель: Юлиана
Голосіївський район, Теремки, вул. Академіка Глушкова, 42
Будинок зданий в експлуатацію в грудні 2024 року, присвоєна адреса: вулиця Валеряна Підмогильного 5, Київ

10 хвилин пішки до метро Теремки!

Загальна площа 27 кв. м., 7/25 поверх.

Квартира дуже світла, з панорамним вікном, розташована в середині будинку.
Стан після будівельників. Можна заходити на ремонт.
Опалення централізоване, лічильники на воду, опалення, електрику.

Будинок монолітно- каркасний комфорт класу, є укриття в будинку.

У кожному підїзді 3 ліфти, 2 пасажирських і 1 вантажний.
Закрита територія, відеоспостереження, охайний прибудинковий простір, дитячий майданчик, висаджені рослини, зроблена парковка, ЖЕК уже взяв на баланс - прибирається на території і в підїздах.

Житловий комплекс знаходиться не далеко до ТРЦ Respublika, парків ВДНГ, Феофанія, музею Пирогово.
Школи, садочки, амбулаторії - до 10 хвилин пішки
Зручне транспортне сполучення до центру міста, Кільцевої дороги, та виїзд на Одеську трасу.

До метро Теремки 10 хвилин пішим ходом....

Найкращий вибір - новий закритий ЖК з відеоспостереженням та охороною біля метро та в розвиненій інфраструктурі!
Кімнат 1 кімната
Площа (загальна/житлова/кухня) 27/11/6 кв. м
Поверх 7 поверх
Поверховість будинку 25 поверхів
  • Продаж 1 кімнатної квартири (27/11/6), 7 пов. 25 пов. будинку, <a class="location-link" href="/kiev/" title="Недвижимость Київ">Київ</a>, <a class="location-link" href="/kiev/goloseevskij/" title="Недвижимость Голосіївський район">Голосіївський р-н</a>, Академика Глушкова просп., 42 (изображение 1)
  • Продаж 1 кімнатної квартири (27/11/6), 7 пов. 25 пов. будинку, <a class="location-link" href="/kiev/" title="Недвижимость Київ">Київ</a>, <a class="location-link" href="/kiev/goloseevskij/" title="Недвижимость Голосіївський район">Голосіївський р-н</a>, Академика Глушкова просп., 42 (изображение 2)
  • Продаж 1 кімнатної квартири (27/11/6), 7 пов. 25 пов. будинку, <a class="location-link" href="/kiev/" title="Недвижимость Київ">Київ</a>, <a class="location-link" href="/kiev/goloseevskij/" title="Недвижимость Голосіївський район">Голосіївський р-н</a>, Академика Глушкова просп., 42 (изображение 3)
  • Продаж 1 кімнатної квартири (27/11/6), 7 пов. 25 пов. будинку, <a class="location-link" href="/kiev/" title="Недвижимость Київ">Київ</a>, <a class="location-link" href="/kiev/goloseevskij/" title="Недвижимость Голосіївський район">Голосіївський р-н</a>, Академика Глушкова просп., 42 (изображение 4)
  • Продаж 1 кімнатної квартири (27/11/6), 7 пов. 25 пов. будинку, <a class="location-link" href="/kiev/" title="Недвижимость Київ">Київ</a>, <a class="location-link" href="/kiev/goloseevskij/" title="Недвижимость Голосіївський район">Голосіївський р-н</a>, Академика Глушкова просп., 42 (изображение 5)
  • Продаж 1 кімнатної квартири (27/11/6), 7 пов. 25 пов. будинку, <a class="location-link" href="/kiev/" title="Недвижимость Київ">Київ</a>, <a class="location-link" href="/kiev/goloseevskij/" title="Недвижимость Голосіївський район">Голосіївський р-н</a>, Академика Глушкова просп., 42 (изображение 6)
  • Продаж 1 кімнатної квартири (27/11/6), 7 пов. 25 пов. будинку, <a class="location-link" href="/kiev/" title="Недвижимость Київ">Київ</a>, <a class="location-link" href="/kiev/goloseevskij/" title="Недвижимость Голосіївський район">Голосіївський р-н</a>, Академика Глушкова просп., 42 (изображение 7)
  • Продаж 1 кімнатної квартири (27/11/6), 7 пов. 25 пов. будинку, <a class="location-link" href="/kiev/" title="Недвижимость Київ">Київ</a>, <a class="location-link" href="/kiev/goloseevskij/" title="Недвижимость Голосіївський район">Голосіївський р-н</a>, Академика Глушкова просп., 42 (изображение 8)
  • Продаж 1 кімнатної квартири (27/11/6), 7 пов. 25 пов. будинку, <a class="location-link" href="/kiev/" title="Недвижимость Київ">Київ</a>, <a class="location-link" href="/kiev/goloseevskij/" title="Недвижимость Голосіївський район">Голосіївський р-н</a>, Академика Глушкова просп., 42 (изображение 9)
  • Продаж 1 кімнатної квартири (27/11/6), 7 пов. 25 пов. будинку, <a class="location-link" href="/kiev/" title="Недвижимость Київ">Київ</a>, <a class="location-link" href="/kiev/goloseevskij/" title="Недвижимость Голосіївський район">Голосіївський р-н</a>, Академика Глушкова просп., 42 (изображение 10)
  • Продаж 1 кімнатної квартири (27/11/6), 7 пов. 25 пов. будинку, <a class="location-link" href="/kiev/" title="Недвижимость Київ">Київ</a>, <a class="location-link" href="/kiev/goloseevskij/" title="Недвижимость Голосіївський район">Голосіївський р-н</a>, Академика Глушкова просп., 42 (изображение 11)