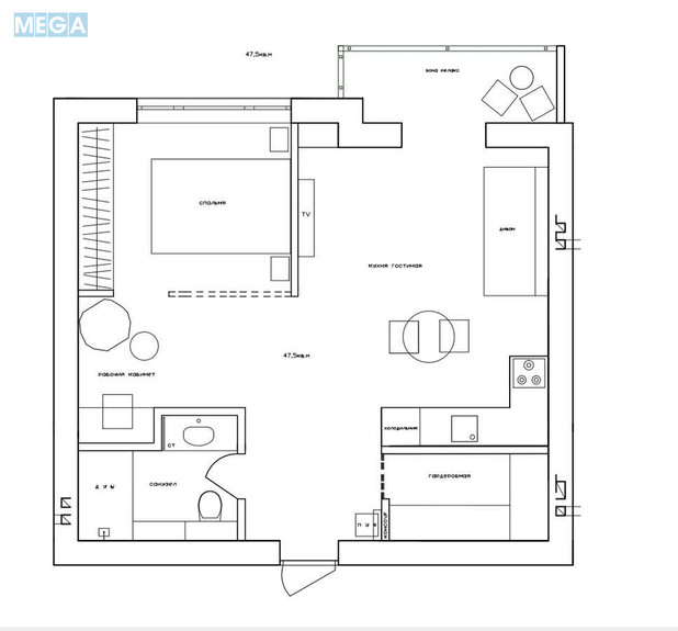
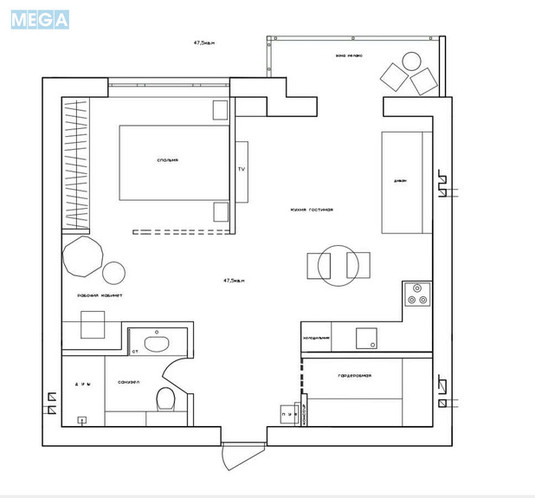
Продаж 1 кімнатної квартири (47,5/20/15), 2 пов. 5 пов. будинку
Київ, Деснянський р-н, Пожарського вул., 70
Київ, Деснянський р-н, Пожарського вул., 70
Цена
50 000 $
Комиссия риелтора: 5
Телефоны:
- +38 (098) 074‑69‑39
Отправитель:
Юлия
Квартира з індивідуальним опаленням у клубному будинку!
Тиша, безпека та власне паркомісце усе для комфортного життя!
На вулиці Мелетія Смотрицького, 70, у спокійному куточку з розвиненою інфраструктурою, продається 1-кімнатна квартира у клубному будинку Light House.
Оселя розташована на 2 поверсі 5-поверхової новобудови з монолітно-цегляною конструкцією.
Будинок утеплений мінеральною ватою, має енергоощадні вікна та сучасну систему індивідуального теплопостачання встановлено двоконтурний газовий котел і лічильники на всі комунікації.
Житло продається від забудовника без оздоблення, тож у вас є можливість реалізувати власне бачення інтер’єру з нуля.
Це ідеальний варіант для тих, хто хоче створити простір, що повністю відповідає особистим смакам і потребам.
Територія комплексу закрита, з відеоспостереженням, дитячим майданчиком, зонами відпочинку та власним наземним паркінгом. За цією квартирою закріплене окреме паркомісце важлива перевага для автомобілістів.
Двір тихий, доглянутий, із відчуттям приватності, яке рідко зустрічається в багатоквартирних будинках.
Район має усе необхідне для щоденного комфорту: поруч школи, дитячі садки, магазини, банки, ТРЦ Район та інші сервіси. До метро Чернігівська або Почайна близько 15 хвилин на авто, а зупинка громадського транспорту буквально за кілька кроків.
Це житло чудова можливість почати з чистого аркуша у просторі, де все вже готове для вашого майбутнього.
Можливий обмін на вашу нерухомість. Усі подробиці про квартиру та про її придбання за телефоном.
Телефонуйте у будь-який час! Ми завжди раді вам допомогти!
Надаємо повний спектр послуг з купівлі та продажу квартир та будинків.
Великий досвід допомоги по купівлі квартир за державними програмами:
1) Є-оселя
2) Житло для ВПО та військових (постанова 280)
3) Сертифікат на зруйноване житло
З нами безпечно, якісно, вигідно!
Тиша, безпека та власне паркомісце усе для комфортного життя!
На вулиці Мелетія Смотрицького, 70, у спокійному куточку з розвиненою інфраструктурою, продається 1-кімнатна квартира у клубному будинку Light House.
Оселя розташована на 2 поверсі 5-поверхової новобудови з монолітно-цегляною конструкцією.
Будинок утеплений мінеральною ватою, має енергоощадні вікна та сучасну систему індивідуального теплопостачання встановлено двоконтурний газовий котел і лічильники на всі комунікації.
Житло продається від забудовника без оздоблення, тож у вас є можливість реалізувати власне бачення інтер’єру з нуля.
Це ідеальний варіант для тих, хто хоче створити простір, що повністю відповідає особистим смакам і потребам.
Територія комплексу закрита, з відеоспостереженням, дитячим майданчиком, зонами відпочинку та власним наземним паркінгом. За цією квартирою закріплене окреме паркомісце важлива перевага для автомобілістів.
Двір тихий, доглянутий, із відчуттям приватності, яке рідко зустрічається в багатоквартирних будинках.
Район має усе необхідне для щоденного комфорту: поруч школи, дитячі садки, магазини, банки, ТРЦ Район та інші сервіси. До метро Чернігівська або Почайна близько 15 хвилин на авто, а зупинка громадського транспорту буквально за кілька кроків.
Це житло чудова можливість почати з чистого аркуша у просторі, де все вже готове для вашого майбутнього.
Можливий обмін на вашу нерухомість. Усі подробиці про квартиру та про її придбання за телефоном.
Телефонуйте у будь-який час! Ми завжди раді вам допомогти!
Надаємо повний спектр послуг з купівлі та продажу квартир та будинків.
Великий досвід допомоги по купівлі квартир за державними програмами:
1) Є-оселя
2) Житло для ВПО та військових (постанова 280)
3) Сертифікат на зруйноване житло
З нами безпечно, якісно, вигідно!
| Кімнат | 1 кімната |
| Площа (загальна/житлова/кухня) | 47,5/20/15 кв. м |
| Поверх | 2 поверх |
| Поверховість будинку | 5 поверхів |


