Продаж 4 кімнатної квартири (237,9/?/31), 16 пов. 17 пов. будинку
Київ, Оболонський р-н, Оболонский просп., 6а
Київ, Оболонський р-н, Оболонский просп., 6а
Цена
300 825 $
Комиссия риелтора: коммисия риелтора не указана
Телефоны:
- +38 (050) 473‑97‑13
Отправитель:
Наталья
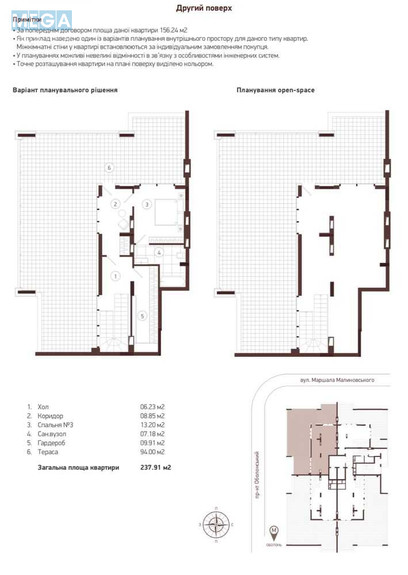
Продам дворівневий пентхаус. Чудовий, світлий, з дуже гарним плануванням. Площа 171,9 м2 та велика тераса 94 м2. Кухня вітальня 31 м2. Спальні 25,5 та 12,5 метрів. Два санвузли на першому поверсі. На другому поверсі спальна кімната 13,2 м2, гардероб 10 м2 та велика тераса 94 м2.
| Кімнат | 4 кімнати |
| Площа (загальна/житлова/кухня) | 237,9/?/31 кв. м |
| Поверх | 16 поверх |
| Поверховість будинку | 17 поверхів |



