Продаж 2 кімнатної квартири (46/29/6), 4 пов. 5 пов. будинку
Київ, Шевченківський р-н, Берестейский просп., 7
Київ, Шевченківський р-н, Берестейский просп., 7
Цена
59 000 $
Комиссия риелтора: 3
Телефоны:
- +38 (063) 361‑02‑60
- +38 (096) 041‑77‑63
Отправитель:
Сергей Кривенок
Видова 2-кімнатна квартира 46 кв.м біля Універмагу Україна майже серце ділової частини Києва!
Пропонується до продажу квартира, де кожен погляд у вікно надихає рухатися вперед. Тут, на перетині важливих міських маршрутів, життя наповнюється динамікою, а щоденний ритм стає ще ефективнішим.
Адреса: м. Київ, Шевченківський р-н, Берестейський проспект, 7
Теплий, цегляний будинок з озелененим і доглянутим двором. Територія закрита шлагбаумом тільки для мешканців.
Паркування: місце для авто є завжди без хаосу та щоденних пошуків.
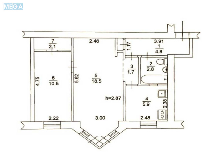
Плануванням квартири передбачено дві кімнати, одна з яких має еркер він формує ширший кут огляду та відкриває красиву панораму на бульвар із каштанами.
Друга кімната має власну гардеробну (2.1 м2), що дозволяє організувати простір без зайвих меблів.
Сумісний санвузол та коридор, де можна облаштувати містку шафу для верхніх і сезонних речей.
Характеристики
Загальна площа - 46,3 кв.м, житлова - 29 кв.м (кімнати 18,5 та 10,5 кв.м), кухня - 5,9 кв.м
Стеля: 2,87 м майже сталінський формат із достатнім відчуттям повітря та простору над головою.
Поверх: комфортний 4-й де буде кращий вид з вікон, стабільний тиск води і чистіше, ніж на більш низьких поверхах.
Стан квартири
Квартира під ремонт, повністю звільнена від речей та меблів це чиста основа для формування вашого дизайну.
Не кутова, тепла та суха.
Без грибку, вологи та прихованих дефектів
Без перепланувань збережене рідне планування.
За останні 30 років у квартирі не проводили косметичних змін, тому її технічний стан повністю передбачуваний і прозорий.
Локація, яка має все, а саме:
В пішій доступності 3 станції метро: ст.м. Вокзальна, КПІ і Лук’янівська!
Тут напевно найбільший розвинений транспортний вузол в вигляді великої кількості маршруток, автобусів, тролейбусів і швидкісного трамваю. Неподалік центральний залізничний вокзал і автостанція. В будь-який час у Вас завжди є альтернатива по транспорту, бо його тут безліч!
Поруч кілька продуктових супермаркетів, універмаг Україна, продуктові і господарчі магазини, кафе і ресторани, суши-бари, відділення банків, нової пошти та багато чого іншого.
Поруч є школи, дит. садки, гімназії, кілька спорткомплексів з басейном, штучним полем для футболу і тенісу, тренажерні зали, все це в пішій доступності і в достатній кількості.
Ціна: 59.000 $
Документи готові. Завдаток беремо.
Телефонуйте вже сьогодні відповім на всі запитання та домовимося про перегляд у зручний для вас час!
Пропонується до продажу квартира, де кожен погляд у вікно надихає рухатися вперед. Тут, на перетині важливих міських маршрутів, життя наповнюється динамікою, а щоденний ритм стає ще ефективнішим.
Адреса: м. Київ, Шевченківський р-н, Берестейський проспект, 7
Теплий, цегляний будинок з озелененим і доглянутим двором. Територія закрита шлагбаумом тільки для мешканців.
Паркування: місце для авто є завжди без хаосу та щоденних пошуків.
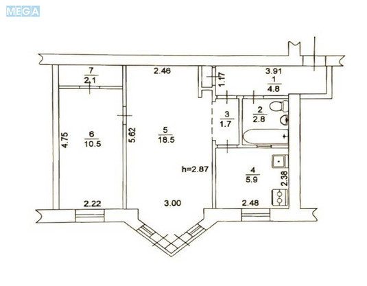
Плануванням квартири передбачено дві кімнати, одна з яких має еркер він формує ширший кут огляду та відкриває красиву панораму на бульвар із каштанами.
Друга кімната має власну гардеробну (2.1 м2), що дозволяє організувати простір без зайвих меблів.
Сумісний санвузол та коридор, де можна облаштувати містку шафу для верхніх і сезонних речей.
Характеристики
Загальна площа - 46,3 кв.м, житлова - 29 кв.м (кімнати 18,5 та 10,5 кв.м), кухня - 5,9 кв.м
Стеля: 2,87 м майже сталінський формат із достатнім відчуттям повітря та простору над головою.
Поверх: комфортний 4-й де буде кращий вид з вікон, стабільний тиск води і чистіше, ніж на більш низьких поверхах.
Стан квартири
Квартира під ремонт, повністю звільнена від речей та меблів це чиста основа для формування вашого дизайну.
Не кутова, тепла та суха.
Без грибку, вологи та прихованих дефектів
Без перепланувань збережене рідне планування.
За останні 30 років у квартирі не проводили косметичних змін, тому її технічний стан повністю передбачуваний і прозорий.
Локація, яка має все, а саме:
В пішій доступності 3 станції метро: ст.м. Вокзальна, КПІ і Лук’янівська!
Тут напевно найбільший розвинений транспортний вузол в вигляді великої кількості маршруток, автобусів, тролейбусів і швидкісного трамваю. Неподалік центральний залізничний вокзал і автостанція. В будь-який час у Вас завжди є альтернатива по транспорту, бо його тут безліч!
Поруч кілька продуктових супермаркетів, універмаг Україна, продуктові і господарчі магазини, кафе і ресторани, суши-бари, відділення банків, нової пошти та багато чого іншого.
Поруч є школи, дит. садки, гімназії, кілька спорткомплексів з басейном, штучним полем для футболу і тенісу, тренажерні зали, все це в пішій доступності і в достатній кількості.
Ціна: 59.000 $
Документи готові. Завдаток беремо.
Телефонуйте вже сьогодні відповім на всі запитання та домовимося про перегляд у зручний для вас час!
| Кімнат | 2 кімнати |
| Площа (загальна/житлова/кухня) | 46/29/6 кв. м |
| Поверх | 4 поверх |
| Поверховість будинку | 5 поверхів |



