Продаж 2 кімнатної квартири (71,8/26/26), 12 пов. 16 пов. будинку
Київ, Солом'янський р-н, Любомира Гузара просп., 13
Київ, Солом'янський р-н, Любомира Гузара просп., 13
Цена
164 500 $
Комиссия риелтора: коммисия риелтора не указана
Телефоны:
- +38 (063) 564‑16‑09
Отправитель:
Денис
Пропонується до продажу дизайнерська простора 2-кімнатна квартира в ЖК Сучасний квартал
Адреса: пр-т Любомира Гузара, 13 (Солом’янський район, мікрорайон Медмістечко)
Квартира розташована на 12-му поверсі 16-поверхового будинку.
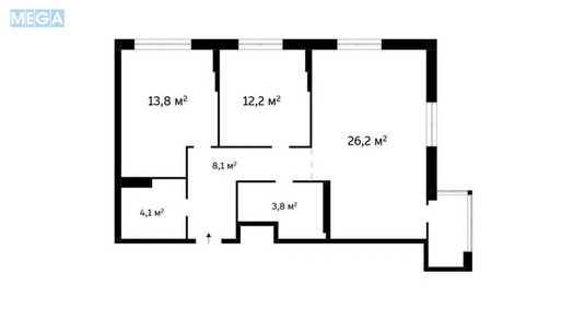
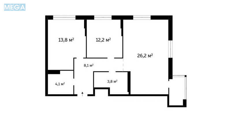
Загальна площа 72 кв.м,
житлова 26 кв.м,
кухня-вітальня 26 кв.м.
Про квартиру:
простора кухня-вітальня з зоною відпочинку
кондиціонери в кожній кімнаті
тепла підлога в санвузлах, коридорі, кухні та балконі
2 санвузли
балкон
власне паркомісце
встановлена сигналізація Ajax
Про комплекс
укриття
закрита територія
охорона та відеоспостереження
консьєрж
власна внутрішня інфраструктура
численні дитячі та спортивні майданчики
зручна транспортна розв’язка
Світло не відключають в будинку під час відключення світла
Адреса: пр-т Любомира Гузара, 13 (Солом’янський район, мікрорайон Медмістечко)
Квартира розташована на 12-му поверсі 16-поверхового будинку.
Загальна площа 72 кв.м,
житлова 26 кв.м,
кухня-вітальня 26 кв.м.
Про квартиру:
простора кухня-вітальня з зоною відпочинку
кондиціонери в кожній кімнаті
тепла підлога в санвузлах, коридорі, кухні та балконі
2 санвузли
балкон
власне паркомісце
встановлена сигналізація Ajax
Про комплекс
укриття
закрита територія
охорона та відеоспостереження
консьєрж
власна внутрішня інфраструктура
численні дитячі та спортивні майданчики
зручна транспортна розв’язка
Світло не відключають в будинку під час відключення світла
| Кімнат | 2 кімнати |
| Площа (загальна/житлова/кухня) | 71,8/26/26 кв. м |
| Поверх | 12 поверх |
| Поверховість будинку | 16 поверхів |





