Цена продажи
35 000 $
Комиссия риелтора: 5
Телефоны:
- +38 (093) 507‑46‑89
- +38 (063) 673‑94‑47
Отправитель:
Станіслав
ЖК Нова Англія
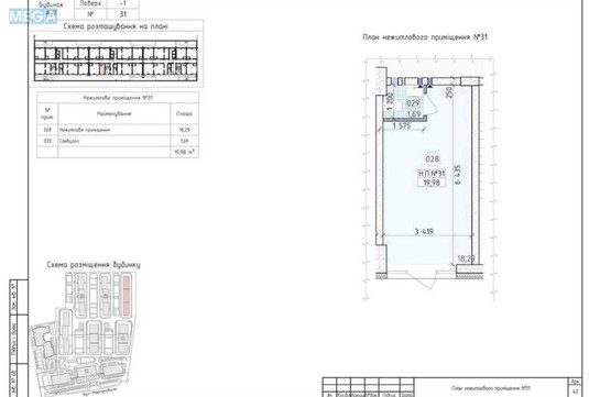
Унікальне приміщеня, дефіцитний метраж! Право Власності
-Цокольне приміщення 20 кв.м, висота стелі Н=3 метри, сусіди з ремонтами, знаходиться біля Головного заїзду і єдиного проїзду в паркінг.
Open space із санвузлом. Велика тераса біля приміщення, яку також можна задіяти під власні потреби! Приміщення ідеально підійде для розміщення магазину, шоуруму, салону, представництва, або під офіс. Лічильники на воду, електрику та тепло (автономна котельня в комплексі), будинок Ньюкасл.
-Для гостей та клієнтів безперешкодний доступ на територію, в телеграм каналі онлайн робиться заявка, отримується номер для гостя.
-Сучасний ЖК Нова Англія це місто в місті, 14 великих будинків, це 4600 квартир. Алея фонтанів, велика школа, дитячий садок, спорт-клуб, спорт майданчик на відкритому повітрі, розвинена інфраструктура. Метро Васильківська 10-15 хвилин пішки.
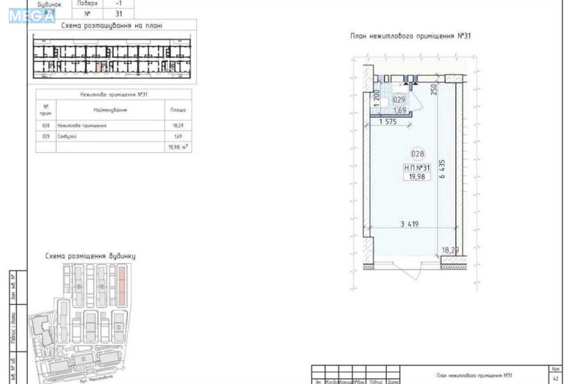
Унікальне приміщеня, дефіцитний метраж! Право Власності
-Цокольне приміщення 20 кв.м, висота стелі Н=3 метри, сусіди з ремонтами, знаходиться біля Головного заїзду і єдиного проїзду в паркінг.
Open space із санвузлом. Велика тераса біля приміщення, яку також можна задіяти під власні потреби! Приміщення ідеально підійде для розміщення магазину, шоуруму, салону, представництва, або під офіс. Лічильники на воду, електрику та тепло (автономна котельня в комплексі), будинок Ньюкасл.
-Для гостей та клієнтів безперешкодний доступ на територію, в телеграм каналі онлайн робиться заявка, отримується номер для гостя.
-Сучасний ЖК Нова Англія це місто в місті, 14 великих будинків, це 4600 квартир. Алея фонтанів, велика школа, дитячий садок, спорт-клуб, спорт майданчик на відкритому повітрі, розвинена інфраструктура. Метро Васильківська 10-15 хвилин пішки.
| Тип пропозиції | только продажа |
| Площа | 20 кв.м |

