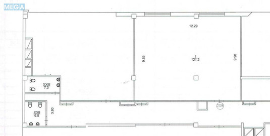
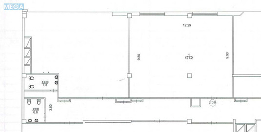
Оренда комерційної нерухомості, 121,20 кв.м, под офис
Київ, Дарницький р-н, Александра Мишуги ул., 10
Київ, Дарницький р-н, Александра Мишуги ул., 10
Цена аренды
45 000 грн./мес. за все
Комиссия риелтора: коммисия риелтора не указана
Телефоны:
- +38 (096) 050‑66‑50
Отправитель:
Владелец
ОРЕНДА приміщення 121,2 м2 в БЦ Паралель, Харьківський масив
Пропоную в оренду нежитлове приміщення 121,2 м2. Генератор великої потужності
Можна використовувати: під офіс, салон краси, майстерню сфери побутових послуг, учбову аудіторію (для курсів)
Приміщення розташоване на 2-му поверсі 4-х поверхового БЦ. Вхід в БЦ ч/з прохідну, 2 входи: з вул.О.Мишуги та з пр-ту М.Бажана. Ст.метро Позняки поряд, 3 хв. пішки. БЦ має підземний паркінг. БЦ під охороною 24/7. Приміщення просторе, з сучасним якісним ремонтом. Кондиціонер. Офісні меблі за бажанням орендаря. Вікна на вулицю. Сан/вузоли (М/Ж) по 2 на поверсі. БЦ знаходиться на Харьківському житловому масиві, з високою щільністю населення.
Вартість 45.000грн/міс + компенсація за комунальні послуги. Власник - юр.особа, без комісії.
На даний час приміщення займає студія школа танців. Приміщення готове до оренди з листопада
Контактний телефон власника:50
Пропоную в оренду нежитлове приміщення 121,2 м2. Генератор великої потужності
Можна використовувати: під офіс, салон краси, майстерню сфери побутових послуг, учбову аудіторію (для курсів)
Приміщення розташоване на 2-му поверсі 4-х поверхового БЦ. Вхід в БЦ ч/з прохідну, 2 входи: з вул.О.Мишуги та з пр-ту М.Бажана. Ст.метро Позняки поряд, 3 хв. пішки. БЦ має підземний паркінг. БЦ під охороною 24/7. Приміщення просторе, з сучасним якісним ремонтом. Кондиціонер. Офісні меблі за бажанням орендаря. Вікна на вулицю. Сан/вузоли (М/Ж) по 2 на поверсі. БЦ знаходиться на Харьківському житловому масиві, з високою щільністю населення.
Вартість 45.000грн/міс + компенсація за комунальні послуги. Власник - юр.особа, без комісії.
На даний час приміщення займає студія школа танців. Приміщення готове до оренди з листопада
Контактний телефон власника:50
| Тип пропозиції | только аренда |
| Призначення об’єкта | офіс |
| Площа | 121.2 кв.м |







