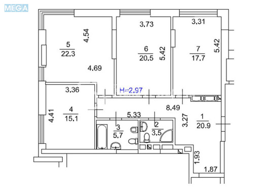
Продаж 3 кімнатної квартири (105,7/57/17,7), 4 пов. 24 пов. будинку
Київ, Печерський р-н, Звіринецька вул., 70а
Київ, Печерський р-н, Звіринецька вул., 70а
Цена
201 000 $
Комиссия риелтора: 3
Телефоны:
- +38 (098) 074‑69‑39
Отправитель:
Юлия
Квартира з панорамою ботсаду в ЖК бізнес-класу!
Престижна локація, сучасна архітектура, свобода для вашого стилю!
Пропонується до продажу трикімнатна квартира в одному з найвишуканіших житлових комплексів столиці ЖК Edelweiss House, що знаходиться за адресою: вулиця Звіринецька, 70а, у самому серці Печерського району.
Розташована на 4 поверсі 24-поверхового будинку, ця оселя ідеальний вибір для тих, хто шукає простір, тишу та можливість створити інтер’єр, що повністю відповідає власному стилю.
Житло передається у стані після будівельників: стіни поштукатурені, стелі вирівняні, підлога підготовлена під фінішне покриття.
Встановлено базові інженерні системи, склопакети, підведено комунікації до санвузлів. Це дозволяє одразу розпочати чистові роботи, не витрачаючи час і кошти на демонтаж попереднього оздоблення.
Будинок зведено за монолітно-каркасною технологією, має вентильований фасад, висоту стелі 3 м, а також 6-рівневий підземний паркінг.
Комплекс складається з двох веж, де реалізовано концепцію бізнес-класу: просторе лобі, лаунж-зони, сучасні ліфти, комерційні приміщення, контроль доступу, відеоспостереження та цілодобова охорона.
Територія закрита, озеленена, з пішохідними алеями, дитячими майданчиками та гостьовими паркомісцями.
З вікон відкривається краєвид на Національний ботанічний сад ім. М. Гришка зелений масив, що створює унікальну атмосферу спокою та свіжого повітря. Це рідкісне поєднання природи й міської інфраструктури, яке важко переоцінити.
У пішій доступності супермаркети Фора, Велика Кишеня, аптеки, банки, спортивні клуби, дитячі садки, школи, медичні заклади.
Через дорогу музичний ліцей ім. М. Лисенка, художня школа ім. Т. Шевченка, хореографічний коледж.
До метро Видубичі близько 500 м, поруч зупинки тролейбуса №15, маршруток, автобусів. Зручний виїзд на основні магістралі міста забезпечує комфортне пересування автомобілем.
Ця оселя ідеальний варіант для життя в одному з найпрестижніших районів Києва, поруч із природою, і водночас створити простір, що повністю відображає ваш характер.
Можливий обмін на вашу нерухомість. Усі подробиці про квартиру та про її придбання за телефоном.
Телефонуйте у будь-який час! Ми завжди раді вам допомогти!
Надаємо повний спектр послуг з купівлі та продажу квартир та будинків.
Великий досвід допомоги по купівлі квартир за державними програмами:
1) Є-оселя
2) Житло для ВПО та військових (постанова 280)
3) Сертифікат на зруйноване житло
З нами безпечно, якісно, вигідно!
Престижна локація, сучасна архітектура, свобода для вашого стилю!
Пропонується до продажу трикімнатна квартира в одному з найвишуканіших житлових комплексів столиці ЖК Edelweiss House, що знаходиться за адресою: вулиця Звіринецька, 70а, у самому серці Печерського району.
Розташована на 4 поверсі 24-поверхового будинку, ця оселя ідеальний вибір для тих, хто шукає простір, тишу та можливість створити інтер’єр, що повністю відповідає власному стилю.
Житло передається у стані після будівельників: стіни поштукатурені, стелі вирівняні, підлога підготовлена під фінішне покриття.
Встановлено базові інженерні системи, склопакети, підведено комунікації до санвузлів. Це дозволяє одразу розпочати чистові роботи, не витрачаючи час і кошти на демонтаж попереднього оздоблення.
Будинок зведено за монолітно-каркасною технологією, має вентильований фасад, висоту стелі 3 м, а також 6-рівневий підземний паркінг.
Комплекс складається з двох веж, де реалізовано концепцію бізнес-класу: просторе лобі, лаунж-зони, сучасні ліфти, комерційні приміщення, контроль доступу, відеоспостереження та цілодобова охорона.
Територія закрита, озеленена, з пішохідними алеями, дитячими майданчиками та гостьовими паркомісцями.
З вікон відкривається краєвид на Національний ботанічний сад ім. М. Гришка зелений масив, що створює унікальну атмосферу спокою та свіжого повітря. Це рідкісне поєднання природи й міської інфраструктури, яке важко переоцінити.
У пішій доступності супермаркети Фора, Велика Кишеня, аптеки, банки, спортивні клуби, дитячі садки, школи, медичні заклади.
Через дорогу музичний ліцей ім. М. Лисенка, художня школа ім. Т. Шевченка, хореографічний коледж.
До метро Видубичі близько 500 м, поруч зупинки тролейбуса №15, маршруток, автобусів. Зручний виїзд на основні магістралі міста забезпечує комфортне пересування автомобілем.
Ця оселя ідеальний варіант для життя в одному з найпрестижніших районів Києва, поруч із природою, і водночас створити простір, що повністю відображає ваш характер.
Можливий обмін на вашу нерухомість. Усі подробиці про квартиру та про її придбання за телефоном.
Телефонуйте у будь-який час! Ми завжди раді вам допомогти!
Надаємо повний спектр послуг з купівлі та продажу квартир та будинків.
Великий досвід допомоги по купівлі квартир за державними програмами:
1) Є-оселя
2) Житло для ВПО та військових (постанова 280)
3) Сертифікат на зруйноване житло
З нами безпечно, якісно, вигідно!
| Кімнат | 3 кімнати |
| Площа (загальна/житлова/кухня) | 105,7/57/17,7 кв. м |
| Поверх | 4 поверх |
| Поверховість будинку | 24 поверха |









