Продаж 2 кімнатної квартири (43/29/6), 5 пов. 5 пов. будинку
Київ, Солом'янський р-н, Миколи Шепелєва вул., 6
Київ, Солом'янський р-н, Миколи Шепелєва вул., 6
Цена
45 000 $
Комиссия риелтора: 3
Телефоны:
- +38 (096) 369‑60‑16
Отправитель:
Инна Александровна
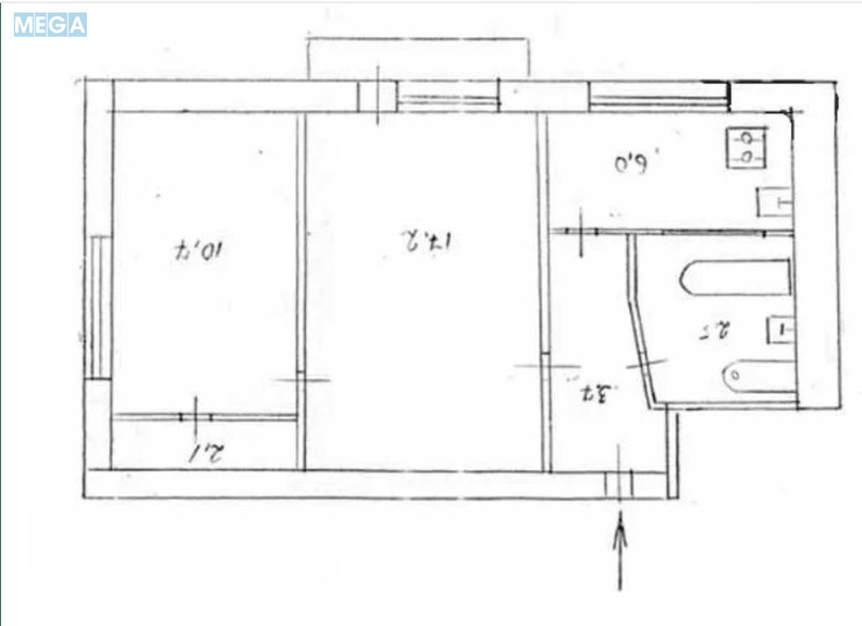
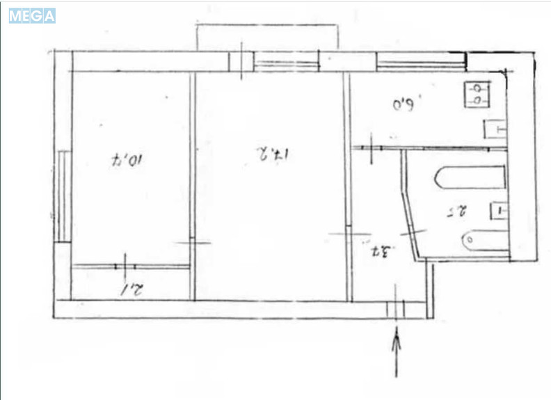
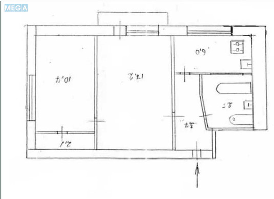
Соломянський , вулия Шепелєва ,6, район відрадний, продам двокімнатну квартиру в цегляному будинку. Загальна площа 43 кв.м. житлова 28 кі.м., кухня 6,5 кв.м. Є окрема гардеробна. В квартирі зроблений ремонт. Є меблі. Кухонний гарнітур новий. Також нова плита та газова колонка. Ще ніхто не користувався. Нові лічильники на газ та воду. Вікна нові та великі. Сучасний ламінат. Квартира дуже світла в стриманих кольорах. Неподалік зупинки транспорту. В будинку гастроном Бадьорий, магазин дитячого одягу Веселий гном, кафе. Неподалік з будинком знаходиться стадіон з футбольним полем та сквер. Ціна квартири 45000 у.є. + 3% агентство. Квартира вільна, ніхто не зареєстрований. Під час відключень є опалення,газ, гаряча та холодна вода.Ключі у мене, покажу в любий час за домовленністю. Працюємо із державними програмами. Відправлю відеоогляд.
| Кімнат | 2 кімнати |
| Площа (загальна/житлова/кухня) | 43/29/6 кв. м |
| Поверх | 5 поверх, останній |
| Поверховість будинку | 5 поверхів |






