Продаж 1 кімнатної квартири (66/30/18), 34 пов. 34 пов. будинку
Київ, Голосіївський р-н, Академіка Заболотного вул., 1а
Київ, Голосіївський р-н, Академіка Заболотного вул., 1а
Цена
151 000 $
Комиссия риелтора: коммисия риелтора не указана
Телефоны:
- +38 (098) 405‑04‑98
Отправитель:
Денис
Продається дизайнерська квартира в ЖК Метрополіс по вул. Академіка Заболотного, 1А, Голосіївський район.
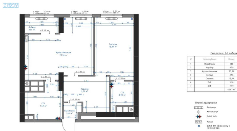
Площа квартири 63м2. Поверх 34.
Функціональне планування:
- кухня - вітальня з обідньою зоною
- майстер-спальня
- гостьовий санвузол
- гардеробна кімната
Квартира укоплектована всією необхідною технікою та меблями. Вся техніка - Whirpool та Gorenje
Встановлений котел для індивідуального опалення, кондиціонери в кожній кімнаті, бойлер.
У будинку : дизайнерське лоббі з зоною відпочинку, косьєрж-сервіс, цілодобова охорона та відеоспостереження, 4 швидкісні безшумні ліфти Mizui. Закрита охоронювана територія. ЖК Метрополіс - сучасний комплекс бізнес-класу від надійного забудовника DIM. Комплекс будується за концепцією місто в місті. Має власний ландшафтний парк 2 Га, дошкільний навчальний заклад, дитячі та спортивні майданчики, бігові та велодоріжки, підземний та гостьовий паркінг. На перших поверхах будинків є все необхідне для комфортного життя: від продуктового супермаркету до фітнес-клубу. Також на території передбачені зона барбекю, кінотеатр та фонтани. Комплекс розташований в унікальній точці мегаполісу, на перетині урбаністичного Києва та розмаїтої природи Голосіївського лісу. Відмінна транспортна розвязка, до метро Теремки та Іподром - 5-7 хв пішки. До центру столиці - 20 хвилин на автомобілі.
В квартирі проживають орендарі. Перегляди за попередньою домовленістю!
Площа квартири 63м2. Поверх 34.
Функціональне планування:
- кухня - вітальня з обідньою зоною
- майстер-спальня
- гостьовий санвузол
- гардеробна кімната
Квартира укоплектована всією необхідною технікою та меблями. Вся техніка - Whirpool та Gorenje
Встановлений котел для індивідуального опалення, кондиціонери в кожній кімнаті, бойлер.
У будинку : дизайнерське лоббі з зоною відпочинку, косьєрж-сервіс, цілодобова охорона та відеоспостереження, 4 швидкісні безшумні ліфти Mizui. Закрита охоронювана територія. ЖК Метрополіс - сучасний комплекс бізнес-класу від надійного забудовника DIM. Комплекс будується за концепцією місто в місті. Має власний ландшафтний парк 2 Га, дошкільний навчальний заклад, дитячі та спортивні майданчики, бігові та велодоріжки, підземний та гостьовий паркінг. На перших поверхах будинків є все необхідне для комфортного життя: від продуктового супермаркету до фітнес-клубу. Також на території передбачені зона барбекю, кінотеатр та фонтани. Комплекс розташований в унікальній точці мегаполісу, на перетині урбаністичного Києва та розмаїтої природи Голосіївського лісу. Відмінна транспортна розвязка, до метро Теремки та Іподром - 5-7 хв пішки. До центру столиці - 20 хвилин на автомобілі.
В квартирі проживають орендарі. Перегляди за попередньою домовленістю!
| Кімнат | 1 кімната |
| Площа (загальна/житлова/кухня) | 66/30/18 кв. м |
| Поверх | 34 поверх, останній |
| Поверховість будинку | 34 поверха |





