Продаж 1 кімнатної квартири (28/14,8/6), 4 пов. 9 пов. будинку
Київ, Деснянський р-н, Мілютенка вул., 7а
Київ, Деснянський р-н, Мілютенка вул., 7а
Цена
40 000 $
Комиссия риелтора: 3
Телефоны:
- +38 (093) 223‑94‑49
Отправитель:
Світлана
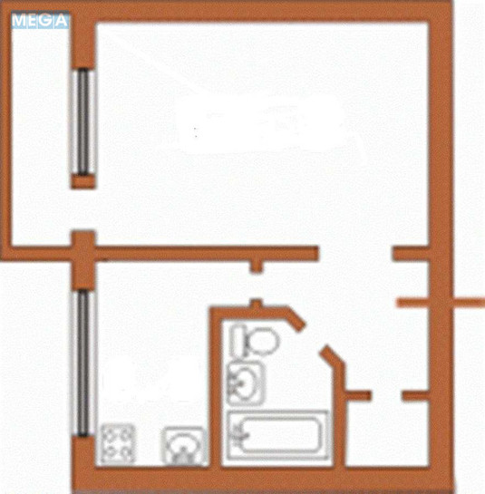
Продаж квартири, Деснянський район, Лісовий масив, вул.Мілютенка, буд.7а. Класна, зручна локація: ст.м. Чернігівська- до 15 хвилин пішки, до зупинки транспорту-5 хвилин, Сільпо, овочевий базарчик, школа-пів хвилини, охороняєма стоянка-хвилина. Не готелька, розташована в середині газифікованого будинку на 4-му поверсі 9-ти поверхового будинку, 28 кв.м. загальна площа, 14,8- кімната, 6- кухня, санвузол суміщений, душова кабіна, місто та вивід для пральної машини. Квартира охайна, напівпорожня, без мотлоху та сторонніх запахів, паркет, склопакети, засклений балкон. Приємний вид з вікон, охайний під’їзд, дуже доглянутий зелений, чистий двір, дуже тихо, є де погуляти або покататися на велосипеді. Торгові та розважальні центри-все поруч. Ніхто не зареєстрований, без боргів, лічильники повірені. Ціна 40000 у.о. Комісія 3%.
| Кімнат | 1 кімната |
| Площа (загальна/житлова/кухня) | 28/14,8/6 кв. м |
| Поверх | 4 поверх |
| Поверховість будинку | 9 поверхів |

