Продаж 2 кімнатної квартири (60/30/15), 12 пов. 21 пов. будинку
Київ, Голосіївський р-н, Михайла Максимовича вул., 24Г
Київ, Голосіївський р-н, Михайла Максимовича вул., 24Г
Цена
139 999 $
Комиссия риелтора: коммисия риелтора не указана
Телефоны:
- +38 (067) 220‑13‑89
Отправитель:
Татьяна
Зверніть увагу на цю красуню! Квартира у стані Заходь та живи з насолодою!)
Двокімнатна квартира зі свіжим дизайнерським ремонтом. Ніхто не жив.
Розглядаємо будь-які умови купівлі. Беремо гривню/безнал на рахунок. Працюємо з усіма державними програмами. Підходить під єоселю!
Розташування у ЖК Нова Англія, вул. Максимовича 24Г, (будинок Нотингем), 12 поверх 21 поверхового будинку.
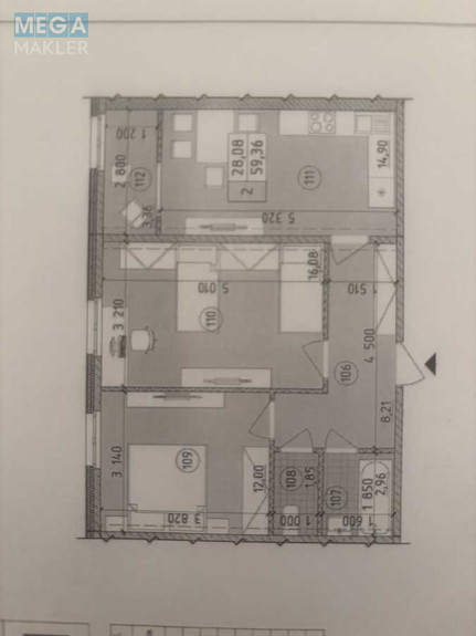
Планування чудове велика кухня-їдальня та дві окремі кімнати + гардеробна.
У квартирі виконаний якісний коштовний дизайнерський ремонт. Загальна площа 60 метрів, але в ній продумано все до дрібниць! Все зроблено в одному стилі та в одній цвітовій гаммі.
У кварирі є все, що додає комфорту та затишку:
- тепла підлога у кухні-ідальні та у ванній кімнаті
- багато світла та підсвітки на декількох рівнях
- три інверторних кондиціонера
- гардеробна із спальні
- обладнана окрема робоча зона
- у ванній кімнаті стільниця зі справжнього білосніжного мармура
- розведення електрики виконано на найвищому рівні, заведено оптоволокно, є розводка під джерело резервного живлення
- сантехніка VELEROY BOCH та GROE
- стильні комфортні меблі
- сучасна техніка: прально-сушильна машина Samsung , бойлер
ELECTROLUX на 80 літрів, вбудована кухонна техніка WHIRLPOOL
- багато місць для зберігання речей.
У буднку обладнане укриття у підземному паркінгу, в який можна потрапити просто спустившись на ліфті. На будинок встановлено генератор, яктй працює на опалення та воду. Питання роботи ліфта привідсутносіт світла обговорюється.
Територія комплексу Нова Англія закрита, цілодобово під охороною та відеоспостереженням. Тут ви знайдете будь-який заклад для комфортного життя. Кафе, салони, кав"ярні, школа, зони відпочинку, дитячі майданчики, відділення нової пошти, фонтани - тощо. Тут дуже красива прибудинкова территорія!!
До метро Васильківська 15 хвилин пішки.
Не має можливості перерахувати всі переваги цієї квартири! Тому я вас запрошую Вас на перегляд і ви самі зможете побачити, що ця квартира створена саме для Вас!
Перегляди можливі лише 28, 29 та 30 березня. Відеоогляд youtu.be/4W_4HmRiewQ
Вартість 139999 у.о. або найкраща пропозиція
Без додаткових платежів та комісій. Умови придбання за безнальний розрахунок обговорюються окремо.
Двокімнатна квартира зі свіжим дизайнерським ремонтом. Ніхто не жив.
Розглядаємо будь-які умови купівлі. Беремо гривню/безнал на рахунок. Працюємо з усіма державними програмами. Підходить під єоселю!
Розташування у ЖК Нова Англія, вул. Максимовича 24Г, (будинок Нотингем), 12 поверх 21 поверхового будинку.
Планування чудове велика кухня-їдальня та дві окремі кімнати + гардеробна.
У квартирі виконаний якісний коштовний дизайнерський ремонт. Загальна площа 60 метрів, але в ній продумано все до дрібниць! Все зроблено в одному стилі та в одній цвітовій гаммі.
У кварирі є все, що додає комфорту та затишку:
- тепла підлога у кухні-ідальні та у ванній кімнаті
- багато світла та підсвітки на декількох рівнях
- три інверторних кондиціонера
- гардеробна із спальні
- обладнана окрема робоча зона
- у ванній кімнаті стільниця зі справжнього білосніжного мармура
- розведення електрики виконано на найвищому рівні, заведено оптоволокно, є розводка під джерело резервного живлення
- сантехніка VELEROY BOCH та GROE
- стильні комфортні меблі
- сучасна техніка: прально-сушильна машина Samsung , бойлер
ELECTROLUX на 80 літрів, вбудована кухонна техніка WHIRLPOOL
- багато місць для зберігання речей.
У буднку обладнане укриття у підземному паркінгу, в який можна потрапити просто спустившись на ліфті. На будинок встановлено генератор, яктй працює на опалення та воду. Питання роботи ліфта привідсутносіт світла обговорюється.
Територія комплексу Нова Англія закрита, цілодобово під охороною та відеоспостереженням. Тут ви знайдете будь-який заклад для комфортного життя. Кафе, салони, кав"ярні, школа, зони відпочинку, дитячі майданчики, відділення нової пошти, фонтани - тощо. Тут дуже красива прибудинкова территорія!!
До метро Васильківська 15 хвилин пішки.
Не має можливості перерахувати всі переваги цієї квартири! Тому я вас запрошую Вас на перегляд і ви самі зможете побачити, що ця квартира створена саме для Вас!
Перегляди можливі лише 28, 29 та 30 березня. Відеоогляд youtu.be/4W_4HmRiewQ
Вартість 139999 у.о. або найкраща пропозиція
Без додаткових платежів та комісій. Умови придбання за безнальний розрахунок обговорюються окремо.
| Кімнат | 2 кімнати |
| Площа (загальна/житлова/кухня) | 60/30/15 кв. м |
| Поверх | 12 поверх |
| Поверховість будинку | 21 поверх |









