Цена продажи
272 550 $
Комиссия риелтора: коммисия риелтора не указана
Телефоны:
- +38 (096) 050‑66‑50
Отправитель:
Владелец
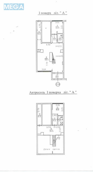
ПРОДАМ. Нежитлове приміщення загал.площею 237 м2. Голосіївський район, ст.м.Деміївська. Розвинена інфраструктура: транспортна розв’язка, відділення банків, пошти, кафе, супермаркети, салони краси, фітнес клуби. Приміщення розташовано на першому поверсі 22-х поверхового житлового будинку. Перший поверх комерційна нерухомість. Має 3 окремих входа.
Якісний, дорогий дизайнерський ексклюзивний ремонт, справляє приємне враження. Комп’ютерна мережа. Кондиціонери. Охоронна, пожежна сигналізація. Відеоспостереження. Італійські офісні меблі. Приміщення відокремлене на 2 незалежних приміщення: 131 м2 і 106 м2. Кожне приміщення має невелику кухню, сан/вузел. Серверна шафа. Міні АТС. Ролети на вікнах. Електромережа 15 кВт. Паркування.
Власник фізична особа. Без комісії. Вартість приміщення 272550 $
Запрошую до співпраці сертифікованих ріелторів, комісійна виногорода 3 %
Телефон:0
Якісний, дорогий дизайнерський ексклюзивний ремонт, справляє приємне враження. Комп’ютерна мережа. Кондиціонери. Охоронна, пожежна сигналізація. Відеоспостереження. Італійські офісні меблі. Приміщення відокремлене на 2 незалежних приміщення: 131 м2 і 106 м2. Кожне приміщення має невелику кухню, сан/вузел. Серверна шафа. Міні АТС. Ролети на вікнах. Електромережа 15 кВт. Паркування.
Власник фізична особа. Без комісії. Вартість приміщення 272550 $
Запрошую до співпраці сертифікованих ріелторів, комісійна виногорода 3 %
Телефон:0
| Тип пропозиції | только продажа |
| Призначення об’єкта | офіс |
| Площа | 237 кв.м |







