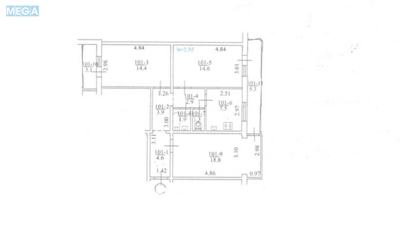
Продаж 3 кімнатної квартири (78/48/7,5), 1 пов. 9 пов. будинку
Київ, Печерський р-н, Евгения Коновальца ул., 37
Київ, Печерський р-н, Евгения Коновальца ул., 37
Цена
135 000 $
Комиссия риелтора: коммисия риелтора не указана
Телефоны:
- +38 (067) 508‑13‑83
Отправитель:
Наталия
Чудова пропозиція на Печерську для коммерційної нерухомості. Три фасадних вікна з можливостю окремого входу, Н-2, 7 м, зручне планування, мінімум несучих стін. Також пропонується продаж смежної квартири. Розвинена інфраструктура, метро - 3 хвилини пішки, супермаркети, ресторани, ВУЗи, військовий госпіталь - 5хв. Просторий двір. У цьому будинку є приміщення з окремою вхідною групою, які вже переведені до нежитлового фонду. Напроти будинку квартал новобудов, БЦ Хвиля, великий трафік клієнтів. Під магазин, салон, клінику, банк, тощо. Активний пішохідний трафік. Квартира вільна, документи готови к продажу. Телефонуйте для запису на перегляд. Эксклюзивный договор.
| Кімнат | 3 кімнати |
| Площа (загальна/житлова/кухня) | 78/48/7,5 кв. м |
| Поверх | 1 поверх |
| Поверховість будинку | 9 поверхів |
