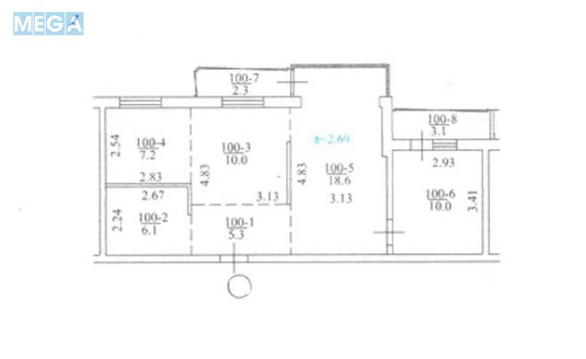
Продаж 3 кімнатної квартири (63/39/7,2), 1 пов. 9 пов. будинку
Київ, Печерський р-н, Евгения Коновальца ул., 37
Київ, Печерський р-н, Евгения Коновальца ул., 37
Цена
81 900 $
Комиссия риелтора: коммисия риелтора не указана
Телефоны:
- +38 (067) 508‑13‑83
Отправитель:
Наталия
Невеличка трикімнатна поруч з метро Печерська. Розібрана до бетона, підготовлена для втілення ідей з перепланування в велику двокімнатну квартиру. У квартирі є балкон та лоджія, усі вікна виходять у просторий двір- сквер з дитячою площадкою. Дуже зручне та безпечне місце у центрі для прожівання. Метро Печерська в 5 хвилинах. Багато супермаркетів, два ВУЗа, дитсадки та ліцеї. Ціна 1300у.е./кв.м. Без коміссії. Эксклюзивный договор.
| Кімнат | 3 кімнати |
| Площа (загальна/житлова/кухня) | 63/39/7,2 кв. м |
| Поверх | 1 поверх |
| Поверховість будинку | 9 поверхів |




