Цена аренды
20 000 грн./мес. за все
Комиссия риелтора: коммисия риелтора не указана
Телефоны:
- +38 (096) 050‑66‑50
Отправитель:
Владелец
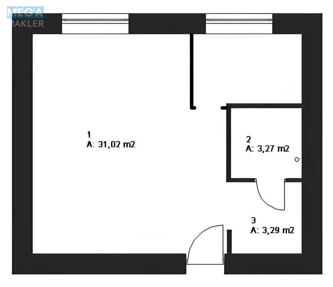
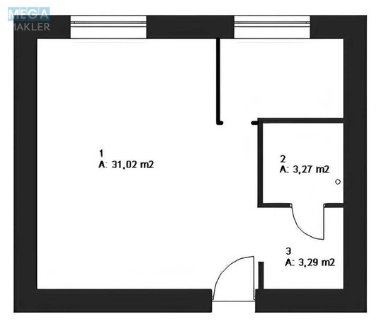
Пропоную в оренду офіс, загал.площа 36 м2. Однокімнатна квартира, розділена на 2 робочих кабінета. Перший поверх житлового 5-ти поверхового будинку. Вікна виходять на фасад. Сан/вузел. Будинок знаходиться поблизу двох гілок метро: Червоної - ст.м. Університет та Синьої гілки ст.м. Героїв України. Офіс чистий, свіжий ремонт, без меблі. Інтернет, кондиціонер, бойлер, сейф. Вартість оренди: 20.000грн/місяць + оплата комунальних. Офіс готовий до заселення
Власник, без комісії:0
Власник, без комісії:0
| Тип пропозиції | только аренда |
| Призначення об’єкта | офіс |
| Площа | 36 кв.м |








