Продаж комплексу будівель та споруд, 310 кв.м, под производство
Київ, Дарницький р-н, Евгения Харченко ул., 42
Київ, Дарницький р-н, Евгения Харченко ул., 42
Цена продажи
150 000 $
Комиссия риелтора: коммисия риелтора не указана
Телефоны:
- +38 (077) 178‑88‑17
Отправитель:
Константин
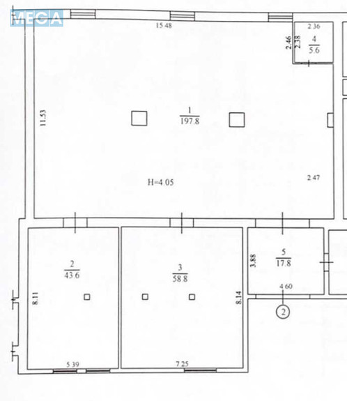
вулиця Євгенія Харченка 42. Дарницький район. Бортничі. Продаж нежитлового приміщення, Окремо стояча будівля. S-310м.кв., Окремий вхід. Висота стелі 4 метри. Матеріал стін цегла. Охоронна сигналізація. Поруч склади Баядери.
Відео перегляд по запиту.
без комісійних!
Відео перегляд по запиту.
без комісійних!
| Тип пропозиції | только продажа |
| Тип об’єкта | комплекс будівель та споруд |
| Призначення об’єкта | виробництво |
| Площа | 310 кв.м |
