Продаж 2 кімнатної квартири (52,4/35/7,1), 7 пов. 9 пов. будинку
Київ, Дніпровський р-н, Райдужна вул., 71
Київ, Дніпровський р-н, Райдужна вул., 71
Цена
65 500 $
Комиссия риелтора: коммисия риелтора не указана
Телефоны:
- +38 (098) 400‑34‑84
- +38 (050) 462‑38‑32
Отправитель:
Василь Береговий
Продаж 2-к квартири з ремонтом. Райдужна 71. Воскресенка. Без комісії.
2х-кімнатна квартира, яка не просить компромісів вона їх вже вирішила за вас.
У продажу світла, доглянута та по-справжньому комфортна двушка в Дніпровському районі Києва, масив Воскресенка, вул. Райдужна, 71. Розташована на 7-му поверсі 9-поверхового будинку 1986 року (перевірена часом 134-та серія). Тут не чути ліфт на кожному русі й не доведеться знайомитись із дахом ближче, ніж потрібно.
Раціональне планування без зайвих фантазій:
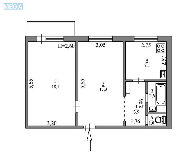
Загальна площа 52,4 кв.м
Житлова 35,4 кв.м
Кухня 7,1 кв.м (затишна, не для показу, а для життя)
Дві повноцінні великі кімнати без квестів із диваном у проході.
Роздільний санвузол тому ранкові збори без дипломатичних переговорів.
Засклена лоджія для кави, робочих дзвінків або просто подивитись у двір і подумати про хороше.
Висота стелі 2,6 м.
Вікна виходять у тихий двір, південна сторона світло, тепло
Квартира в чудовому житловому стані та вже укомплектована всім необхідним: пральна машина, холодильник, три телевізори, бойлер, кондиціонери, витяжка та інша побутова техніка.
Встановлено лічильники на воду та електроенергію комунальні платежі не викликають бажання переїхати в ліс.
На поверсі лише 4 квартири. Охайний під’їзд, адекватні сусіди, прибудинкове паркування.
Юридична частина:
1 власник, без податків, ніхто не зареєстрований.
Квартира вільна ключі передаються на угоді, без нам ще трохи часу пожити.
І вишенька на торті для тих, хто цінує баланс міста й природи:
у пішій доступності озеро Радунка та парк Перемога. Ранкові пробіжки, вечірні прогулянки, велосипед, ролики, дитячі атракціони або просто свіже повітря після робочого дня усе поруч.
Це варіант, де можна жити одразу, а не планувати ремонт до пенсії.
Телефонуйте покажемо без сюрпризів, зате з приємним післясмаком.
Пропозиція без комісійних для покупця. Не дублювати рекламу!
2х-кімнатна квартира, яка не просить компромісів вона їх вже вирішила за вас.
У продажу світла, доглянута та по-справжньому комфортна двушка в Дніпровському районі Києва, масив Воскресенка, вул. Райдужна, 71. Розташована на 7-му поверсі 9-поверхового будинку 1986 року (перевірена часом 134-та серія). Тут не чути ліфт на кожному русі й не доведеться знайомитись із дахом ближче, ніж потрібно.
Раціональне планування без зайвих фантазій:
Загальна площа 52,4 кв.м
Житлова 35,4 кв.м
Кухня 7,1 кв.м (затишна, не для показу, а для життя)
Дві повноцінні великі кімнати без квестів із диваном у проході.
Роздільний санвузол тому ранкові збори без дипломатичних переговорів.
Засклена лоджія для кави, робочих дзвінків або просто подивитись у двір і подумати про хороше.
Висота стелі 2,6 м.
Вікна виходять у тихий двір, південна сторона світло, тепло
Квартира в чудовому житловому стані та вже укомплектована всім необхідним: пральна машина, холодильник, три телевізори, бойлер, кондиціонери, витяжка та інша побутова техніка.
Встановлено лічильники на воду та електроенергію комунальні платежі не викликають бажання переїхати в ліс.
На поверсі лише 4 квартири. Охайний під’їзд, адекватні сусіди, прибудинкове паркування.
Юридична частина:
1 власник, без податків, ніхто не зареєстрований.
Квартира вільна ключі передаються на угоді, без нам ще трохи часу пожити.
І вишенька на торті для тих, хто цінує баланс міста й природи:
у пішій доступності озеро Радунка та парк Перемога. Ранкові пробіжки, вечірні прогулянки, велосипед, ролики, дитячі атракціони або просто свіже повітря після робочого дня усе поруч.
Це варіант, де можна жити одразу, а не планувати ремонт до пенсії.
Телефонуйте покажемо без сюрпризів, зате з приємним післясмаком.
Пропозиція без комісійних для покупця. Не дублювати рекламу!
| Кімнат | 2 кімнати |
| Площа (загальна/житлова/кухня) | 52,4/35/7,1 кв. м |
| Поверх | 7 поверх |
| Поверховість будинку | 9 поверхів |

