Цена продажи
150 000 $
Комиссия риелтора: коммисия риелтора не указана
Телефоны:
- +38 (067) 408‑60‑51
Отправитель:
Татьяна Ивановна
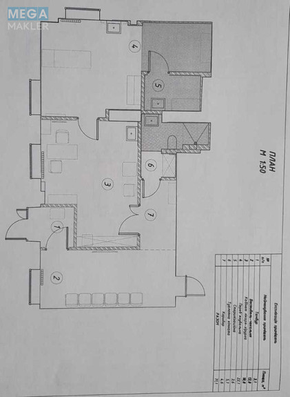
Продається приміщення під клініку 73 м.кв.,на першому поверсі з окремим входом, фасад.Приміщення повністю відповідає вимогам для медичної діяльності. Дуже вдале планування: вестибюль-чекальня, кабінет лікаря, перев`язувальна, стерилізаційна, туалетна кімната з душем. Опалення централізоване + підігрів підлоги, кондиционери, бойлер. Гарна транспортна розв`язка, неподалік ст.метро Дорогожичи та Почайна. Є гостьова стоянка. 150000у.е.
| Тип пропозиції | только продажа |
| Площа | 73 кв.м |













