Продаж дома, 3 поверху, 605 кв.м, 10 кімнат, ділянка 10 соток
Київ, Дарницький р-н, 2-й Бортничский пер., 1
Київ, Дарницький р-н, 2-й Бортничский пер., 1
Цена
210 000 $
Комиссия риелтора: коммисия риелтора не указана
Телефоны:
- +38 (096) 011‑43‑17
- +38 (096) 011‑43‑17
Отправитель:
АЛЛА
Продаж готелю в Києві (Дарницький район, перша лінія біля озера)
Обєкт ідеально підходить розміщенню готелю, пансіону, реабілітаційного центру, будинок догляду чи оздоровчого комплексу.
Пропонується до продажу сучасна будівля готельного типу в Дарницькому районі Києва, розташована на першій лінії біля озера.
10 окремих номерів із власними санвузлами та душовими
Основні характеристики:
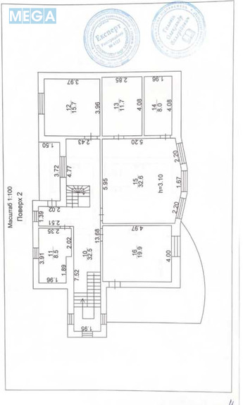
Загальна площа: 605 кв.м
Поверховість: 3 поверхи
Вартість: 210 000 $
Висота стель: понад 3 метри
Планування та стан:
Кожен номер обладнаний власним санвузлом
Виконано якісний ремонт під чистове оздоблення
Встановлені міжкімнатні двері
Змонтовані радіатори опалення
Облаштовані сходи
Переваги:
Перша лінія біля озера чудове розташування для готельного бізнесу
Вигідна ціна лише 347 $/кв.м
Підходить як для запуску готелю, так і під апартаменти або орендний бізнес
Чудова пропозиція для інвестицій у перспективному районі Києва.
Телефонуйте для отримання додаткової інформації та організації перегляду!
Обєкт ідеально підходить розміщенню готелю, пансіону, реабілітаційного центру, будинок догляду чи оздоровчого комплексу.
Пропонується до продажу сучасна будівля готельного типу в Дарницькому районі Києва, розташована на першій лінії біля озера.
10 окремих номерів із власними санвузлами та душовими
Основні характеристики:
Загальна площа: 605 кв.м
Поверховість: 3 поверхи
Вартість: 210 000 $
Висота стель: понад 3 метри
Планування та стан:
Кожен номер обладнаний власним санвузлом
Виконано якісний ремонт під чистове оздоблення
Встановлені міжкімнатні двері
Змонтовані радіатори опалення
Облаштовані сходи
Переваги:
Перша лінія біля озера чудове розташування для готельного бізнесу
Вигідна ціна лише 347 $/кв.м
Підходить як для запуску готелю, так і під апартаменти або орендний бізнес
Чудова пропозиція для інвестицій у перспективному районі Києва.
Телефонуйте для отримання додаткової інформації та організації перегляду!
| Поверхів | 3 |
| Кімнат | 10 |
| Площа будинку | 605 кв.м |
| Площа ділянки | 10 соток |
| Матеріал будинку | кирпич |






