Цена
                                            64 000 $
                        
                                                
        
        
        Комиссия риелтора: коммисия риелтора не указана
        
            
                Телефоны:
                
                                        
        - +38 (097) 286‑02‑46
            Отправитель:
            
                 
                    Юрий                            
        
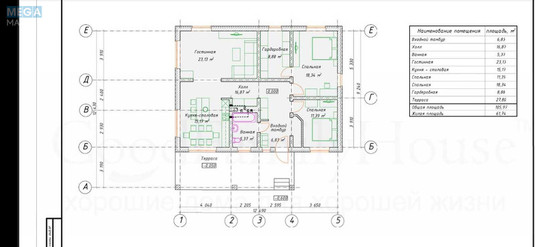
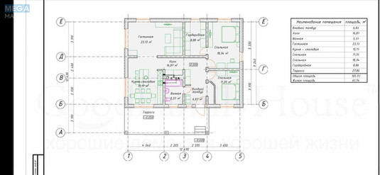
                                    Предлагается дом без отделочных работ Княжичи. Общая площадь 106 кв.м. Жилая 61.7 кв.м. Второй этаж 44 кв.м. Чердак - два помещения по 18 кв.м.
ФУНДАМЕНТ: бетонная подушка шириной 600мм, два ряда ФБС, армопояс над ФБС.
СТЕНЫ: газоблок стунлайт, толщина стены 300мм, марка Д500. Каждые четыре ряда заложены два ряда арматуры. Перемычки бетонные (заводские).
ФАСАД: Пенополистирол 100мм eps 80
КРОВЛЯ: Металлочерепица (европа), толщина 0.5мм. Чердачное перекрытие - утеплитель 200мм минвата. Второй этаж - стены и потолок 200 мм минвата
СТЕКЛОПАКЕТЫ: Veka, профиль 70, 5 камер, стекло - двухкамерное.
ИНЖЕНЕРИЯ: электричество - 16 кВт, три фазы.
Скважина 80 м.
Септик 9м. Две ямы по два кольца (диаметр 2 м).
Вся инженерия заведена в дом. Вода и канализация разведены согласно проекту
ПОЛЫ: черновая стяжка, ЭППС 50мм. Полы готовы под укладку тёплого пола.
ИТОГ. Дом построен в 2018. На стенах не единой трещины. Фасад утеплён и готов под нанесение декоративной штукатурки. Вся инженерия заведена. Частично сделан электромонтаж. Внутри дом готов под отделку. Дизайн интерьера в подарок), скину по звонку для ознакомления. Реальным покупателям - торг. Звоните.
                        ФУНДАМЕНТ: бетонная подушка шириной 600мм, два ряда ФБС, армопояс над ФБС.
СТЕНЫ: газоблок стунлайт, толщина стены 300мм, марка Д500. Каждые четыре ряда заложены два ряда арматуры. Перемычки бетонные (заводские).
ФАСАД: Пенополистирол 100мм eps 80
КРОВЛЯ: Металлочерепица (европа), толщина 0.5мм. Чердачное перекрытие - утеплитель 200мм минвата. Второй этаж - стены и потолок 200 мм минвата
СТЕКЛОПАКЕТЫ: Veka, профиль 70, 5 камер, стекло - двухкамерное.
ИНЖЕНЕРИЯ: электричество - 16 кВт, три фазы.
Скважина 80 м.
Септик 9м. Две ямы по два кольца (диаметр 2 м).
Вся инженерия заведена в дом. Вода и канализация разведены согласно проекту
ПОЛЫ: черновая стяжка, ЭППС 50мм. Полы готовы под укладку тёплого пола.
ИТОГ. Дом построен в 2018. На стенах не единой трещины. Фасад утеплён и готов под нанесение декоративной штукатурки. Вся инженерия заведена. Частично сделан электромонтаж. Внутри дом готов под отделку. Дизайн интерьера в подарок), скину по звонку для ознакомления. Реальным покупателям - торг. Звоните.
| Поверхів | 2 | 
| Кімнат | 4 | 
| Площа будинку | 106 кв.м | 
| Площа ділянки | 8 соток | 
 
    















