Цена продажи
                                            45 500 $
                        
                                                
        
        
        Комиссия риелтора: коммисия риелтора не указана
        
            
                Телефоны:
                
                                        
        - +38 (067) 563‑73‑04
- +38 (067) 214‑69‑17
- +38 (067) 372‑41‑18
- +38 (050) 379‑52‑57
            Отправитель:
            
                                    Тетяна                            
        
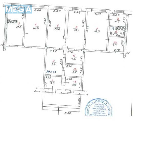
                                    Пропонується на продаж нежитлове приміщення 106,7 кв., за адресою м.Кривий Ріг, пр.Перемоги,13 (Інгулець). Можливо використовувати під магазин, відділення банку, аптеку, офіс та ін. Власник - юр.особа. Вартість з ПДВ.
                        | Тип пропозиції | только продажа | 
| Призначення об’єкта | офіс | 
| Площа | 106.7 кв.м | 
 
    




